怀山望售楼处电话:400-880-0703✔✔【预约热线】怀山望售楼处营销中心:400-880-0703怀山望售楼处电话/地址☎:400-880-0703(开发商热线)如有问题欢迎来电咨询,专业一对一热情服务,让您用专业眼光去买房。
浦东惠南宣桥
容积率仅0.87纯墅区
建面约160-260㎡叠加、联排
预计下半年入市
怀山望
如有问题欢迎来电咨询,来电即可享受买房优惠!
怀山望售楼处电话☎:400-880-0703✔✔
预约来电尊享购房优惠,可预约案场内部销售人员,专业一对一热情服务,让您用专业眼光去买房
怀山望售楼处电话:400-880-0703✔✔【预约热线】怀山望售楼处营销中心:400-880-0703怀山望售楼处电话/地址☎:400-880-0703(开发商热线)如有问题欢迎来电咨询,专业一对一热情服务,让您用专业眼光去买房。
建面约160-200㎡叠加
怀山望售楼处电话:400-880-0703✔✔【预约热线】怀山望售楼处营销中心:400-880-0703怀山望售楼处电话/地址☎:400-880-0703(开发商热线)如有问题欢迎来电咨询,专业一对一热情服务,让您用专业眼光去买房。
建面约200㎡-260㎡联排
约1600㎡全栖心灵宅度假打造张江南的全新会所标杆
一圆万般的六识会所,凌空而置,划界峯与谷。虚怀若谷间,激发「心灵直觉」的第六感通天地自然力量·感知律动生命力量·感怀艺文哲思力量在此汇聚,创造曲水全新抵。
怀山望售楼处电话:400-880-0703✔✔【预约热线】怀山望售楼处营销中心:400-880-0703怀山望售楼处电话/地址☎:400-880-0703(开发商热线)如有问题欢迎来电咨询,专业一对一热情服务,让您用专业眼光去买房。
六识·觉醒
「天廊」约30×约18米悬浮景观廊架
「地谷」约6米叠水流瀑的下沉式坡地花园
「观园」室内恒温泳池
「入庭」健身区&瑜伽室
「浮台」多功能海上浮台概念SALON厅
「流觞」庭院里的lounge流水吧台
开发商:上海益流置业发展有限公司
板块位置:浦东惠南板块
产品类型:叠加+联排物业类型:住宅
占地面积:约8.9万方
建筑面积:约15.6万方
容积率:约0.87
绿地率:约40%
户型面积:约160-260㎡
装修配置:装修交付(中央空调、新风、地暖等)项目配套:约1600㎡下沉会所(恒温泳池、健身房等)


如果对项目有兴趣,欢迎点击下方专属看房报名通道。三万平方用专业角度,带您选优质好房。在您通过小程序报名之前,请确保您已阅读并同意《用户服务协议》及《隐私政策》。在报名之后,我们将视为您已知晓。
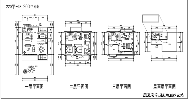
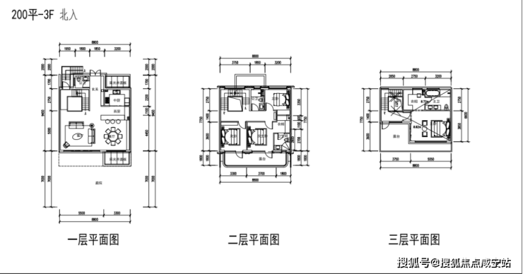
户型过程稿曝光:
4层叠墅户型平面图过程稿





6层叠墅户型平面图过程稿







联排户型图过程稿











怀山望售楼处电话:400-880-0703✔✔【预约热线】怀山望售楼处营销中心:400-880-0703怀山望售楼处电话/地址☎:400-880-0703(开发商热线)如有问题欢迎来电咨询,专业一对一热情服务,让您用专业眼光去买房。
浦东2035核心镇
作为东上海轴心区核心板块之一,惠南已由原南汇行政中心,逐步转变为了东上海竖向走廊核心。项目位于浦东新区惠南板块,紧邻“东方枢纽国际商务合作区”这一国家战略要地,未来将直接受益于千亿级投资规划,区域发展动能澎湃!
惠南镇正全力推进“三个圈层”建设,总投资近120亿元,涵盖现代产业、商业综合体、高端住宅等多元业态,未来将崛起为集商务、居住、休闲于一体的综合性新城。
浦东核心圈×红利交汇心
自驾:邻近S32申嘉湖高速、S2沪芦高速、G1503绕城高速等主干道,可快速连接市区核心区域及浦东机场。🚇地铁:邻近地铁16号线野生动物园站,7站可达龙阳路,换乘2号线可达陆家嘴和静安寺;换乘11号线可达前滩;也可换乘13号线、7号线及18号线;立体交通脉络。🚌公交:小区周边分布多个公交站点,如人民西路一灶港桥、大川公路人民西路等,覆盖浦东59路、浦东71路、惠南3路等10余条线路。
怀山望售楼处电话:400-880-0703✔✔【预约热线】怀山望售楼处营销中心:400-880-0703怀山望售楼处电话/地址☎:400-880-0703(开发商热线)如有问题欢迎来电咨询,专业一对一热情服务,让您用专业眼光去买房。
醇熟商业悦享生活
项目周边商业齐全,有大型超市大润发,繁华商业上海浦东禹悦汇、浦东商场、惠南镇步行街等,另有金梅商业广场、弘基商业休闲广场等环伺。
全龄教育书香沁润
幼儿园:惠南幼儿园(市一级)、新场幼儿园(分园)、听潮艺术幼儿园;小学:惠南小学、惠南第二小学、浦东逸夫小学中学:上海工商外国语学校附属、南汇第二中学、建平南汇实验学校;大学城:南汇大学城(含上海工商外国语学院等高校)。
医养双全乐活无忧
项目附近医院:复旦大学附属浦东医院(三级),光明中医医院(中医医院),浦东新区南华医院(综合医院)等。
生态客厅得天独厚
林-田-湖-园-游,诗意栖居。林:南六公路约70%绿化覆盖+环城港约1.2公里生态带;
田:千亩桃林农业景观基底(南汇桃花村IP);
湖:惠南湿地+天然河道构成蓝绿网络;
园:古钟园(明代文化遗产)+市政双公园环绕;
游:迪士尼旅游度假区、野生动物园、福泉古寺、惠南老街。
怀山望售楼处电话:400-880-0703✔✔【预约热线】怀山望售楼处营销中心:400-880-0703怀山望售楼处电话/地址☎:400-880-0703(开发商热线)如有问题欢迎来电咨询,专业一对一热情服务,让您用专业眼光去买房。
第一次买房的朋友擦亮眼睛,别踩坑里。头回买房都是刚需,大家伙辛辛苦苦攒的首付和装修钱,选房时可不能马虎。下面这些注意事项,全是过来人踩过坑总结的经验,句句实在。好好看看这些建议,能让你在买房路上少走弯路,把钱花在刀刃上。
1、刚需房,地段很重要
第一次买房的记住,交通和配套是生活刚需。出门步行500米有地铁公交最方便,不然刮风下雨赶公交都不好走。
买房子就是买日子,周边没配套是不行的,1公里内得有大超市和菜市场,买菜做饭、周末囤货才方便,总不能天天点外卖吧?
医院和学校更是刚需,老人看病、孩子上学都要近点才方便。选地段别信销售画的未来大饼,什么三年后建商场、五年后通地铁,规划这东西说变就变。
刚需买房就认眼前能看见的,楼下有没有便利店、路口有没有公交站,这些实实在在的配套才是当下能用上的,别拿血汗钱赌不确定的未来。
2、不要只看价格
买房要注重性价比,便宜是好事,但得把房子的优缺点摸透。比如楼层采光好不好、小区物业靠不靠谱、周边有没有噪音源,拿这些条件横向对比,只有好处多于坏处的房子,才值得下手。
算账时也别只算房价,契税、物业费、维修基金这些隐藏开支提前算清楚。装修改造费、月供和利息更是大头,建议拿纸笔列个清单,看看自己的收入能不能扛住。买房不是一锤子买卖,把账算明白了,住进去后才不会天天为钱发愁。
3、长远看,房子保值比增值更重要
买房是家里的大头开支,房子除了能住,本身还是项资产。不管是自己住还是想投资,谁都想低价买进去,以后高价卖出去,但未来几十年的事儿,谁能说得准呢?
你看现在的房地产行情,去年买的房,今年可能就降价了,说不定明年又涨回来。而且房子也会变老,等个十年二十年,甚至五十年后,你现在买的房子要是能保值,那就已经很厉害了。谁也没法准确预测市场怎么走,能让房子不贬值,就已经算赢了。
4、房子的流通性
第一次买房的朋友注意,如果以后要换户型改善住房,现在买的房子就得好卖。
流通性差的房子别碰,像老城区破破烂烂的低价房、远郊荒郊野岭的楼盘,还有户型奇葩的房子,住着难受,以后想转手或许都没人接盘。
选房时想清楚,过几年卖的时候,什么样的房子更好卖?地段靠近地铁公交的、周边配套齐全的、户型方正通透的,这类房子流通性强,就算以后置换也能更快出手。买房不只是买当下的居住体验,更要提前规划好未来转手的可能性,别让自己的房子砸在手里。
5、户型、朝向和楼层
买房要考虑清楚家人同住需求,打算三代人一起住或者生二胎,房子至少要有三个房间。89㎡左右的紧凑型小三房就很实用,不会因为面积太大增加购房压力,又能满足多口之家的居住需求,每个房间都不局促,空间利用也更合理。
选房时朝向和楼层也是有讲究的,客厅和主卧要朝南,采光好,冬天晒着太阳暖洋洋的,北向房间容易阴冷,住久了不舒服。
楼层方面,槽钢层、腰线层和设备层尽量避开。槽钢层可能存在漏水隐患,腰线层容易积灰还影响采
光,设备层楼上楼下可能会有噪音,选房时记得跟销售问清楚楼层分布,别踩了这些坑。
6、尽可能的选现房
第一次买房建议优先选现房,现在新房期房交付风险太大了,烂尾楼新闻不少见,没拿到钥匙前啥都不好说。
不要死磕新房,有些二手房的房子质量、小区环境、物业服务和周边配套都是肉眼可见的,实地考察时能看得明明白白,不像期房全靠销售口头描述。买二手房时,能直接看到墙面有没有裂缝、水管是否漏水,还能跟小区业主聊聊物业管得严不严,周边超市、学校走路几分钟能到。
这些实实在在的情况摸清楚了再下手,比押宝期房靠谱,至少不用担心交了钱却收不到房,刚需买房选这种看得见摸得着的才踏实。
7、别碰小产权房
第一次买房别碰小产权房,虽说这类房子买房限制少,价格也便宜,但住起来全是坑。
产权只有40年,比普通住宅少一半。水电按商业标准收费,比民用贵近一倍,有的还不通燃气,想在家做顿饭得用电。最关键的是不能落户,以后孩子上学都是麻烦事。而且以后很难转手,很可能砸在手里。
咱辛辛苦苦凑首付买房,是为了有个安稳的家,宁愿多攒两年钱买正规住宅,也别踩这种终身后悔的雷。
8、不要执着于“学区”
很多人第一套房子是婚房,买的时候会考虑孩子上学,觉得“学区”能给房子加分,但放现在,这也不是必须的。
现在出生率越来越低,好多城市还实行教师轮岗、学区改革、学校合并这些政策。以后啥情况谁也说不准,说不定过个七八年,上学都能自己选学校了呢。先把当下住得舒服、交通方便、配套齐全这些刚需满足了更实在。