宝山·杨行全新地铁盘「新四季都会」1号线旁400米,首付168万起品质三房!约92-122m²3-4房,均价5.12万!正在热销中!
宝山,这个市中心买家认为有点远,被五大新城买家诟病有点土的区域,在近期被买房者频频扫货,大有呈现逆袭之势。
而在提到宝山的新房时,有个近轨交的项目,刚需购房者不得不看的项目那就是新四季都会。

宝山·杨行全新地铁盘「新四季都会」1号线旁400米,首付168万起品质三房!约92-122m²3-4房,均价5.12万!正在热销中!
四季都会十三开、十三捷
2019年6月:一期首开,劲销335套!
2019年9月:一期2批次,开盘当日去化超9成!
2020年1月:一期3批次,开盘当日去化超9成!
2020年7月:晓风来一期,开盘当日去化超9成!
2020年9月:晓风来二期,开盘当日售罄!
2020年12月:繁星启一期,开盘当日售罄!
2020年12月:晓风来三期,开盘当日售罄!
2021年4月:月城西,开盘当日售罄!
2021年7月:五期1批次,认购951组,61.7分!
2022年1月:五期2批次,认购1101组,66.8分!
2022年3月:五期3批次,认购1333组,63.1分!
2022年9月:五期4批次,认购1060组,63.2分!
2022年11月:五期5批次,开盘当日售罄!


13场开盘告捷、4326组家庭的一致选择,造就四季都会宝山红盘标杆!
作为上海“造城系”新生代,四季都会自2019年开始深耕宝山四年打造近90万方的城市改造体量,已逐渐展现出生活的丰盛姿态,以“15分钟社区生活圈”为总纲,集住宅、交通、商业、教育、公园休闲等多元业态。
通过业态场景的持续创新,不断优化生活体验,稳定落地配套,联动属地政府、高校提升片区城市界面等,擎动北上海跃升为主城区宜居热地。

首推6栋高层位置如下,共384套房源,其中,90㎡户型192套(160套装修交付、32套毛坯交付)、100m㎡户型128套(全装修交付)、120㎡户型64套(装修+毛坯各一半)。

9月25日,项目开盘,最终售出约200套房源,去化率约52%!
宝山·杨行全新地铁盘「新四季都会」1号线旁400米,首付168万起品质三房!约92-122m²3-4房,均价5.12万!正在热销中!
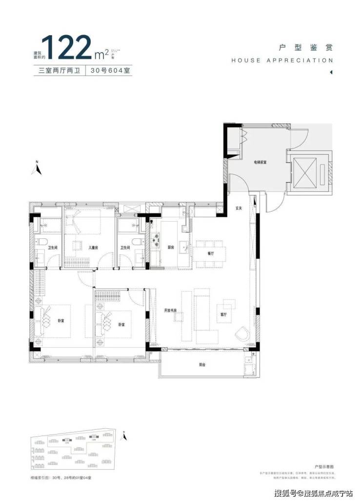
户型图赏鉴
92m²户型,3开间朝南,双阳台设计,阳台的南向面宽接近6米,更具视觉延展性;
餐厅与厨房空间,非常符合当代年轻人的设计审美:吧台延展式餐厅空间,完全可以视业主需求,做成半开放式厨房,做开放式台面,下厨之时享受主厨般的乐趣,如下图示意,中岛既可以做成U型厨房的补充台面,又可以作为两人的用餐空间:

再来看看本次101㎡户型与大一期103㎡户型的对比:

新版户型,处于边套,不会有连廊;
新版面宽更大,加上阳台打通,起居空间更为舒适;
这次的主卫也带飘窗,且动静分离做得更好一些;
最后就是动线的设置,原来的客餐厅空间是一个长方形的空间,一家人用餐、进出房间、去客厅,动线会重叠;
而新户型,在各个区域门口,设置了一个近乎正方形的空间(户型图看是长方形的,实地看下来空间更方正一些),动线呈X交叉型,空间更灵动,而且肉眼看上去,房间感觉更宽敞!
宝山·杨行全新地铁盘「新四季都会」1号线旁400米,首付168万起品质三房!约92-122m²3-4房,均价5.12万!正在热销中!
122㎡是3+1户型,大横厅设计,3+1开间朝南,大尺度阳台,南向面宽优秀,超大的客厅完全可以隔出一个灵动空间,无论是作为书房,还是家庭活动空间;
亲子阅读、电竞空间等等,都能作为维系家庭关系的纽带存在;
新四季都会,携前期成功开发经验,再度回归,并在一期基础上,全面升级,是北上海毫无疑问的王炸产品。
项目的物业由万科物业来操盘,这对于小区后期的价值提升有非常大的推动作用,
俗话说:“买房一阵子,物业一辈子!”评价一个楼盘的价值,除了价格、地段、配套等硬性指标外,物业服务也是一个十分关键的标准。
万科物业是业内第一批使用互联网产品的物业管理企业,开启智能化物业服务基础工程和精细化物业管理模式,智慧化服务。
1 项目信息
项目位于杨北路北侧,距离1号线富锦路地铁站直线约500米!也就是说,除了四季都会以及近期的山东健康宝钰澜庭以外,杨行又有了新供应!
据悉,新四季都会项目为旧城改造,并无设置联动价。
地块位置:东至02B-12地块,南至杨北路,西至02B-02地块,北至02B-03地块容积率:2.0总占地面积:49754.6㎡总建筑面积:143889.92㎡绿地率:25%建筑密度:25%建筑限高:≤50m
根据方案,项目15幢14-16F高层住宅,以及三幢5层别墅住宅,容积率2.0。
项目设计方案:
宝山·杨行全新地铁盘「新四季都会」1号线旁400米,首付168万起品质三房!约92-122m²3-4房,均价5.12万!正在热销中!
2 板块信息
项目位于宝山区杨行板块,杨行重点规划上海北站,拥享杨行镇生活北枢纽的轴心发展区。
据悉,上海北站规模仅次于虹桥站,将串联长江经济带,连接长三角、中三角、成渝地区,与虹桥枢纽相辅相成,是未来重要的交通枢纽。而杨行镇,位居大宁北,毗邻吴淞副中心,成为难得的城市发展双重战略的辐射区,未来可期。

3 周边配套
交通方面:项目距离轨道交通1号线富锦路站仅约500米。
在上海,地铁1号线是当仁不让的“主心骨”,沿线楼盘本就稀缺,如今四季都会以距离富锦路站仅约300的优势出场,自然备受瞩目。
商业方面:海德名门西北侧自带商业,周边四季都会和中铁北城时代都有一定商业,附近还有宝山招商花园城、友谊西路地铁站旁的昊耀商业广场等。
教育方面:项目东侧有规划的教育用地,周边有华师大附属杨行中学、华二附中宝山校区、上师大附属宝山外国语学校等。
90万方大盘家门口的15分钟社区生活圈
四季都会约90万方的体量本就难得,其配套量级更体现了居住和生活价值。除住宅外,四季都会自带的约7.4万方商业及约3.3万方公共配套,并配建2所幼儿园(规划中),在自成一体的大城,凭借地铁出行有事,基本实现“15分钟生活圈”。
约34万方大型水景白沙公园
四季都会内部已有多重景观节点,而家门口就是白沙公园。这种出门走走就是公园的生活,在魔都是很难得是,更是很多人的居住向往。
宝山·杨行全新地铁盘「新四季都会」1号线旁400米,首付168万起品质三房!约92-122m²3-4房,均价5.12万!正在热销中!