引言:
占据了潜力之城的热土,更需要过硬的产品来承载居者的生活梦想。绿地集团,作为全球经营的多元化领军企业,其地产开发实力有目共睹。“云缦世家”作为其在嘉兴的重要作品,从案名便透露出一种对“慢生活”与“品质感”的追求。本篇我们将聚焦产品本身,看它如何诠释宜居生活。

一、 品牌实力:世界500强绿地的品质承诺
绿地的品牌影响力是其项目的首要加分项。作为头部房企,绿地意味着:
•
强大的开发实力与交付保障:
大品牌在资金、施工、资源整合上具有明显优势,能极大降低购房风险,确保项目顺利交付。
•
成熟的产品系经验:
绿地拥有多个成熟的产品线,“云缦系”通常定位
改善型住宅
,注重社区氛围的营造和居住舒适度的提升。
二、 户型设计:兼顾功能性与舒适度
云缦世家的户型设计预计会充分考量嘉兴本地及外来置业者的需求,主力户型可能覆盖
约90㎡的三房到140㎡以上的四房
。
产品核心优势分析:
1.
户型方正,实用性强:
绿地产品的户型通常讲究方正实用,空间利用率高,减少过多的通道浪费,确保每个功能空间都规整可用。
2.
注重采光与通风:
主流户型会坚持
南北通透
或
大面宽朝南
的设计,保证客厅和主卧等主要空间拥有良好的采光和通风,提升居住的健康度与舒适感。
3.
全龄段设计考量:
•
紧凑三房(约90-110㎡):
面向刚需和首改家庭,在有限面积内实现三房功能,可能配备双卫,满足多口之家的基本居住需求,总价控制得当。
•
舒适四房(约120㎡以上):
面向改善家庭,尺度更为宽裕。可能出现
横厅设计
,增加家庭的互动空间;
主卧套房
设计(带独立卫浴和衣帽间)开始成为标配,提升主人的居住尊严。
4.
细节亮点:
如
双阳台设计(观景阳台与生活阳台分离)、飘窗全赠送或半赠送、玄关收纳系统
等,这些细节体现了对现代生活需求的深入洞察。
桥映月,飞虹卧波。
桥面在水中倒映,宛若新月,出自中国古代书院的状元桥,寓意跨桥及第、诸事顺遂的。拱桥一侧有落水瀑布,形成道道波纹,行走在虹桥之上,感受烟雨江南的宁静与神秘。
静立于此,时空凝固,
对话古今,
乌桕树下,耳畔传来风云往事。
自然流畅的岸线曲折变化,结合岛屿绿地勾勒出世外桃源般的绝美佳境。设六座岛屿错落池中,以岛寓山、以池寓水,山水从容。水体被绿岛自然划分,形成水形中的最佳形态——水形水,整体呈S状,蜿蜒曲折、顺盼有情。
从外而内、从自在过渡到尊贵,抬高的户廊架与标识景墙强调了入户空间的尊享感。观之于外,静谧的水景与岛屿穿透朦胧的玻璃,影影绰绰,营造“久在樊笼里,复得返自然”的惬意心境。
可能的考量点:
•
作为大型开发商的项目,户型设计可能偏向“标准化”,创新性和独特性上可能不及一些定制化程度高的高端楼盘。
•
装修标准(若为精装)可能选用主流品牌,追求性价比,而非顶级奢侈品牌。
三、 社区规划:营造温馨和谐的世家氛围
•
新中式建筑风格:
“世家”二字往往暗示项目可能采用
新中式建筑风格
,白墙黛瓦、错落有致,体现江南韵味与现代审美的结合。
•
园林景观:
可能会打造
主题园林
,如“一轴八景”等,融入亭台水榭等中式元素,并规划儿童活动区、健康跑道、会客庭院等全龄段活动空间。
•
物业服-务:
绿地自有或合作的物业公司将为未来社区的长期维护和保值提供重要保障。
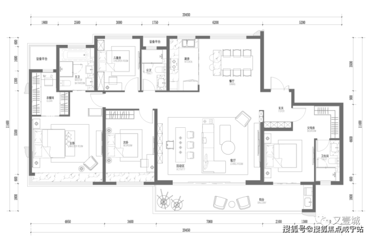
接下来,是项目主力的建面约165㎡的超级户型!总占比六成以上!
我坚定的认为这是科技城现有最好160㎡级户型之一!
五开间朝南
南北通透
独立入户
朝南三阳台+双主卧套房
厨房空间灵活开合
未来轻轨站旁+清华附属公立学校旁+面积段高改善价值,三者构成了这款户型的价值高地!
户型设计上,我认为最牛的在于约6.2米的无柱横厅。
如此,我们基本可以把这款户型看做五开间朝南,从实用性上来说,直接碾压各种小面积的联排产品,甚至对早期近200㎡级的大平层,都能战而胜之。
在这样一个约24㎡的空间里,我们可以去做很多事情。
我做了数个方案,大家可以看一下,这才是全生命周期的标准样板!

客厅无柱空间的优势,可以轻松布置工作区、读书区等功能区。
北侧的餐厅空间,“全明、独立通风”,尽享舒适。
所以,这种方厅的多元化功能就体现出来了:
在多重家庭成员的生活情场下,可以在餐厅吃饭,可以在客厅躺平,更可以在读书区看书、刷微信。


如果你想坐在沙发上获得整个约6米开间的客厅既视感,只要简单地把沙发往墙边摆放,便享受到了双开间的无柱空间!
电视矮墙的背后空间,可以利用为一个西式岛台的手工桌,一两个人吃点早餐、洗个水果,都能解决。

空间的可打开、可闭合,在约6米净面宽的开间面前,游刃有余!
这个时候,原有户型里的餐厅位置,可以摆放六人标准圆桌,多家庭成员用餐的仪式感,尽在这里体现。

或者我们更极致一些……
原先的餐厅区域可以不再拘泥于传统思路,尽情发挥成中西双厨的区域,朝南5开间的大平层,遇见大面积的中西双厨,绝配!

亲子活动的场景,搭载早餐桌,一张这样的吧台就可以实现。

中西双厨的生活场景之下,可以在约6米的净面宽客厅中,把餐厅的功能打造出极致般的仪式感。
结合入户壁饰,让餐厅的既视感达到近4米的尺度,媲美约300㎡别墅的餐厅概念。
不用觉得餐厅侵占了客厅的空间,因为客厅可以去融入阳台。

除了洗晒阳台继续保留之外,其他双开间的阳台可以通过大型折叠门,让客厅和阳台形成令人赞叹的活动空间!
客厅和阳台打通之后,整个活动空间约40㎡,相当于一套约50㎡高层小户型的套内净面积!

如果,嫌客厅两个开间分别使用不大气……
如果,嫌客厅被情景化吧台占用不大气……
那么!足足约24㎡净面积、约6米净面宽,我们都可以把它边做客厅。
这个客厅的既视感,早就超出了约165㎡的户型标配,甚至可以直接对标200㎡级超级大平层!

三人位转角沙发,双人位,单人位,儿童玩耍区……你想到的,你没想到的,各种生活场景都被容纳进这样一个客厅中了。
餐厅的长条吧台桌,则大胆向过道空间做了延伸,既增加了就餐区,又是空间的过渡延伸!

上面五种居住方案,都是大开大合的做法,恨不得让自己觉得是住在城堡里。
但如果是追求更多的功能区划分,那下面的方案可能更适合你:
只需要简单地在大横厅中用玻璃移门隔出书吧区,便有了通透的个人空间。

人少的时候,自己可以在里面享受清闲的时光。
人多的时候,打开书吧区的隔断,三代同堂的天伦时光,不在话下!

此外,项目还有科技城板块绝对稀缺的“精装大平层”。
建面约210㎡的终极改善户型。

这是非常标准的“大面宽短进深”的黄金户型格局,东西面宽约20.45米,南向宽阔4+1开间。
不算阳台,进深仅9.6米,整体面宽比超过2.13:1,当世绝品。光照好的时候,一天下来,估计整屋80%的面积都能都到阳光直射。

推门而入,就能看到一整个约7m长的大方厅,通透感极强。
可以很任性的容纳下整个家庭需要的公共空间需求。随手摆上一架钢琴,生活的高贵油然而生;或者开辟一个小型的运动室,铺上瑜伽垫、放上跑步机,就着城市星光点点,挥洒汗水。

餐厅区域的宽阔尺度,超乎我的想象,放得下一张6人长款餐桌的同时,还能在一侧打造西厨吧台和餐边柜,西式生活的惬意自然油然而生。
这种朝南无柱宽幕客厅的设计,即使是精装房,仍能随着业主生活的不同需要,进行空间的不断升级,实现全龄段生活的可能!

主卧面宽约4.85米,总面积超39㎡,完全媲美传统140㎡级户型的客厅尺度,妥妥的豪宅顶配。
主卧外,一侧的老人房同样是星级套房格局。转角大型衣帽间+约3.4米的卧房+朝南内卫的1+1开间舒适格局,自带生活的仪式感。

宽阔4+1开间,朝南20.45米面宽
南北通透,餐厅独立采光
独立玄关入户
朝南约10.4米跑道式阳台
五星级双套房
一堆优点的枚举,我总结一句话:
即使在大平层户型层出不穷的当下,云缦世家这款建面约210㎡的大平层户型,仍能稳居市区前三甲之列。
NO. 4|肆
除了面积段和产品的突破,云缦世家为板块带来的,还有实打实的高装标。
回望这么多年来,科技城鲜有精装大平层。
做精装本就需要勇气,做精装大平层,更需要勇气。
大到设计理念、空间规划、装修用材,小到主卧套房的衣帽间、卫生间、亦或是储藏室,都需要为业主考虑到极致,客户才会愿意买单。
绿地香港通过深研嘉兴人居习惯,为云缦世家打造了独一无二的户型装标和生活设计,带来品质人居空间的代表作品。
我们从精装品牌、人性化设计、公区设计三个方面,展开描述。

➤ 精装品牌
云缦世家的装标品牌,几乎是不计成本的清一色国际一线品牌堆叠。
日立中央空调、德国威能地暖、狄耐克新风三件套齐备;
蒙娜丽莎的客厅、厨房墙地砖,南阳艺家的主卧地板;
西门子燃气灶+油烟机两件套;
迪曼斯顿前置+后置净水器,美国百年净水品牌;
厨房龙头、台盆,卫生间台盆、坐便器、龙头、花洒等,品牌清一色的均是西班牙乐家。
一个比较小众,绝对高端的品牌。在同类产品的卖价上,是远超TOTO、科勒的存在。
这个装标,放在一线城市都称得上出类拔萃,在嘉兴,则可以称为“降维打击”。
➤ 精装细节
好的精装设计,仅靠品牌的堆叠是不够的,生活的体验才是更为重要的存在。
显然云缦世家考虑到了这点,在保证了大品牌运用的同时,真正站在服务业主的角度,设计了数十个精装细节。随便站在哪个维度,都能感受到ta的匠心。

入户门采用钢制子母门。
同级别的子母门售价大概是普通门的1.3-1.5倍。
并且云缦世家不仅做到了子母门,还在门扇上做了木纹和图案装饰,更显高贵大气。

大横厅上方采用双层吊顶设计,吊顶内设置的整体光源大概有三层,筒灯+吊顶内环绕灯带+中央主灯(预留灯座)。
地面使用定制款的蒙娜丽莎非标90砖,更大气,成本更高。

厨房采用石英石台面。造价高,美观耐用,适配多种风格……
台下盆为嵌入式,做了弯角处理,打理和耐用性大大增加。

➤ 公区设计
入户公区,嘉兴top级标准打造。
特选高级灰为主色调,墙面深色云纹砖铺装,以“窄边细框”的金属线条勾线;地砖石材花纹的1.2*0.6m蒙娜丽莎哑光砖,加了双层波打线。
整个空间静谧而高贵,与五星级酒店的入户大堂无异。

电梯厅两侧嵌入灯带,按钮上方更是竖直拉槽艺术玻璃造型,增加艺术感。
结语:
绿地·云缦世家的产品力,体现了品牌房企的成熟与稳健。它通过实用且舒适的户型、精心规划的社区环境,旨在为嘉兴的置业者打造一个
功能齐全、氛围温馨、品质可靠
的“世家”居所。它或许不追求极致的奢华,但力求在合理的总价范围内,提供超越期待的居住体验,这正是大多数改善家庭的核心诉求。
预约咨询热线:400-960-1656☎, 加微咨询:139 1616 5691(加微,不要来电,备注楼盘名字)