徐汇滨江的楼市,一直都是上海高净值购房者关注的重点。
去年8月份,徐汇滨江原小米地块以30%溢价率触顶成交,折合楼板价约13.1万,轰破时隔八年的全国地王记录!业内预测最终售价可能会超过18万+!
随后上海土地推介会中,徐汇滨江龙华西路334弄地块,也受到了广泛的关注。据了解,该地块此前一套51㎡的房源,最终到手742万,收储成本折合约14.2万/㎡!(以上数据来源上海土地市场)
沪徐协示(2025)第1号协议出让公示东安新村首幅住宅用地,徐汇区C030301单元127b-23地块协议出让给上海新枫安企业发展有限公司(上海地产集团),出让价格为83.5亿,折合楼板价12.6万元/㎡。扣除公共设施后,东安新村的可售楼板价接近13.3万元/㎡。
除了土拍方面,徐汇滨江的新房也是被受追捧。
徐汇滨江某新房加推开盘,连续触发积分,最高认购率约295%!
不仅如此,徐汇滨江的云锦东方还是全上海为数不多的满分楼盘,最高认购率约903%!

实景图,仅供示意
地王!日光盘!满分盘!为什么总是徐汇滨江?
一切的一切都源于地段本身,作为上海最具活力和魅力的区域之一,徐汇滨江早已跻身顶流豪宅区,凝聚着上海极尽松弛的现代生活方式。
而且得益于整体开发以及高能级城市资源荟萃的优势,徐汇滨江城市界面更加崭新,圈层更加纯粹,居住氛围更偏向年轻化!

实景图,仅供示意
不过随着开发节奏的逐渐饱和,徐汇滨江也有部分“美中不足”。
首先就是上车门槛,据了解目前徐汇滨江新房最低的上车门槛都是2500万+,二手房成交价更是高达18万+!
再者就是社区规模,无论是小米地王、还是龙华地块,土地规模均不超过2万方,而且从徐汇滨江的开发节奏来看,未来同样很难有成规模的小区入市。

上海地产长桥项目位于徐汇区长桥街道,东至龙川路,南至罗香路,西至长桥路,北至地块边界,临近中环高架!直线距离徐汇滨江约800米!
上海又一现象级热销红盘问世,徐汇滨江海上·清和玺开盘圆满举办!首开实现100%去化,圆满清盘!
滨江之上,热度始终引领。自海上·清和玺去年8月面市以来,频频热力引动吸粉丝无数,累计近万组客户来访。此次首次开盘,呈现出清和玺超高的认购率,如此热销的数字背后,更是源于对新玺品质的认可和青睐。
现在全面取消了联动价,由开发企业自主定价,地价上涨,房价上涨是必然。
土拍热度蔓延到整个中环沿线,一片涨势四起。位于浦东内中环的新杨思项目,业内预判至少单价在12万+;中环大宁板块项目,据传预计单价也在16万+。上海市区热势难减,沿中环线一眼望去价格涨势令人咋舌。
能够千万级入住徐汇的机会未来将会越来越少,海上·清和玺是当下徐汇千万级稀缺供应,三开三罄热盘!更是徐汇很长一段时间内,居住舒适度的上佳之选。

“市区,新房,洋房”这三个词,组合在一起,基本就是上海无脑入的珍藏版产品。当下,在取消联动价的上海市场,地价一再刷新,当前市场环境下,能做洋房产品的项目少之又少。
徐汇+6-7层真洋房,可以说是当下市场最能扛得住周期的产品了。在此之前,徐汇洋房已断供多年,二手市场的洋房产品单价基本在17-18万/㎡。新房项目中,据传龙华地块规划有洋房,但据小编了解,未来销售单价预计可达18万元/㎡或更高,足见洋房的市场热度。
这次在徐汇中央公园生活区,海上·清和玺即将加推两栋建面约143㎡四房,而且是6-7层真洋房,也是目前徐汇唯一在售的洋房产品,有且仅有25套!这一次真要比拼手速了!

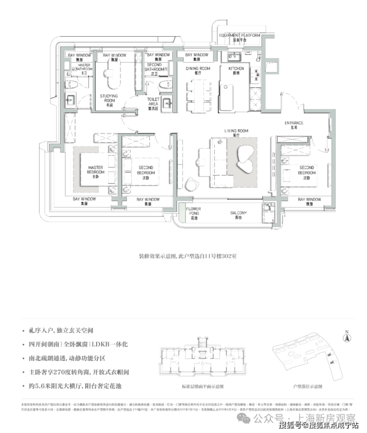
徐汇上海中学旁「海上·清和玺」加推两栋建面约143㎡四房;6-7层真洋房,总价2000万左右终极改善!均价12.7万/m²!认购金180万;认购时间6月19日-6月23日;售楼处线上火热预约中!
预约咨询热线:400-960-1656☎, 加微咨询:139 1616 5691(加微,不要来电,备注楼盘名字)
售楼处接待实景:









展示区实拍图展示区实拍图展示区实拍图展示区实拍图展示区实拍图展示区实拍图
177㎡艺术贵雅奢邸是海上·清和玺压轴力作,延续玺系经典的设计理念和思路,阔朗的四面大开间设计,客厅做到了大横厅设计,延续了曲面流体的阳台,并赠送了独具特色的阳台迷你花园。
整体动线依然选用了动静分离的高效率归家生活设计,双套房设计,保证家人居住的私密性,将用户居住的体验细节做到了更细微的层次。
前所未及的超大尺度,结合曲面的艺术设计,使得整个室内的居住品质得到了质的飞跃!功能区的设计也充满了人本的细节设计和思考,阔朗的超大厨房设计,定制岛台,升降式插座,实现大家族式的社交式烹饪。
作为徐汇滨江为数不多的超大规模社区,招商在海上·清和玺上的用心也是诚意满满。从产品来看,项目延续招商顶级产品系“玺”系产品力基因,而且在汲取徐汇滨江高净值业主对于前者的建议,迭新了多项更人性化的细节,让新一代定制级“玺”系的海派品质再度升级!

效果示意图,仅供参考
海上·清和玺产品在打造过程中,深入解读了徐汇地脉价值,既承袭了徐汇梧桐区的丰富文化底蕴,又与滨江带的现代生活方式相契合。用定制级“玺”系产品体现了对城市精神的尊重,这一尊重体现在每一处精心设计的细节之中。
比如,充满武康大楼元素风格的武康印象、参考徐汇公学建筑制式的会所入口、参考西岸美术馆设计的西岸艺廊……

示意图,仅供参考
建筑方面,海上·清和玺采用独特的香槟金色格栅塔冠及壁柱,以香槟金与白色调搭配,形成“金镶玉”的立面造型,充分以“玺系”的品质结合在地文化海派以及人群品质需求。大面积的玻璃与精致的层间金属飘板相结合,营造出公建化的立面视觉效果,既保证了通透性,温润雅致且历久弥新。
在基座设计上,使用大面积石材配合艺术玻璃及古铜色金属窗框,辅以奢石和艺术元素进行点缀,以此打造极致的归家体验。

效果示意图,仅供参考
项目特别定制了中央景观轴线,通过水景与植被的连贯布局,形成了整体的景观效果。整条景观轴上设有双下沉式庭院,以此增强社区的精致感和层次感。
同时,项目还配备了西岸艺廊,并且社区内景观完美链接,确保业主在晴雨天气中均能保持从容自如的归家体验。

示意图,仅供参考
1、2000平超配会所,全实景开放展示!在海上·清和玺,招商蛇口首次提出“垂直会所体系”的空间布局设计,将原本扁平式的功能布局以立体的方式重新构建,实现复合空间的多元利用。

其中会所及架空层总体量约3000㎡,如此大规模的定制,在整个上海高阶产品中同样也是超前列的存在。

约2000㎡会所内含璀璨星空顶泳池、私宴厅、室内高端健身器材(沃特罗伦或同等档次品牌)甚至高尔夫场所(高尔夫尊或同等档次品牌)。


其中,星空顶泳池用纯天然优质石材打磨的罗马柱点缀。这不仅仅是一个活动空间,更是一个艺术的门庭,让业主足不出户尽享法式惬意优雅。

区实拍图
2、约1000平主题架空层,作为业主生活的延伸。海上·清和玺部分楼栋还为业主定制了1000平架空层、七大主题!其中包含艺术品鉴、社交娱乐、品茗阅读、亲子互动、儿童娱乐等全覆盖。其中阅读主题“龙门书院”、儿童娱乐架空层已部分实景呈现。
3、全域风雨连廊,顶豪级的归家居住体验!海上·清和玺将风雨连廊扩容为一个完整的归家体系,将整个社区以约500米全域连廊体系贯通,真正做到全住宅楼栋无风雨归家。

4、殿堂级车库,领创中央车站!地上空间的美学感受随着车行归家动线也延伸到了地下,海上清和玺的地下车库,不仅精装交付,还首次提出“中央车站”概念。
作为地下的驱车通道,本身也是整个空间的枢纽平台,连通海派会所、地下庭院,高效抵达的同时,保证了业主的私密性,营造独一份的尊崇体验。
此外,海上·清和玺将奢宅的功能充分融入空间思考,留有专属的访客车位,私人司机休憩室、VIP业主洗车等。在场域设计中,空间展开成星级酒店式、可社交的中央场所,访客和业主可实现无界的会所观赏和交互。

“中央车站”的出现,打破了原有车行通道的理念,让空间更像一个可以短暂停留的开放式空间。

5、超50米的气派门庭,焕新徐汇归家仪式感的尺度。
6、社区含“奢材”量很高。门庭延街的外立面,以精工定制弧形米色石材为主调,镶嵌典藏级老虎玉大理石,点缀古铜色现代海派艺术感灯器,整体呈现出百年海派的贵雅气质。
在门庭的环岛空间,景墙面采用中轴对称的设计布局,定制了奢石镶嵌装饰,将曲面艺术与经典石器之美圆融交融。
预接待厅地面瓷砖采用威尼斯白与爵士白石材拼花设计,纯人工铺装保证花纹的奢华质感。甚至壁面装饰的水晶灯,都选用高规格的E9级进口水晶制作。

展示区实拍图

7、海上·清和玺的空间不是简单的功能间,而是化身艺术空间。在酒店式归家环岛中心,海上·清和玺原创了艺术装置——海派漩心。首创经典山茶花图腾设计,其灵感源于海派建筑中的山茶花图腾,其采用了300余枚鳞片定制,超过2000次折叠锻造,最终才营造出眼前这般美轮美奂的冰裂纹视觉图样。

8、不仅是金钱上的奢侈,更是时间广度的奢侈。比如,整个下沉式庭院材料选用土耳其进口老虎玉,由匠人耗时60天手工打磨定制,可见海上·清和玺对业主归家仪式感设计的用心与苛求。海派光厅之外的归家迎宾树木更是由设计师辗转多个城市才寻到的、树龄超60年的福木“紫薇”。
在物业服务方面,海上·清和玺项目同样不遗余力。
项目为业主定制“8S”玺系尊崇物业服务,与最近大火“交房即交证”的虹玺享受同级别物业,礼宾安防、金玺管家、倾心五感、智慧服务、应急服务、特色服务、圈层服务、定制服务以更具品质的服务渗透在无数个细节和洞察中,确保业主的生活品质。

示意图,仅供参考
另外,海上·清和玺还有精装地库、地上/地下双入户大堂等豪宅标配全部呈现。
不仅如此,项目更是在地下融入了硬件设施与软性服务的双重魅力,局部楼层具备地下采光,即使在车库也能感受到温暖的阳光照耀,同时配备的洗车空间,让每一次归家都更加便捷与舒心。

温故至新,时间深处,静水流深的徐汇精神正绵延延续。近日,“徐汇长桥项目”正式发布案名为「海上·清和玺」。一次致敬百年徐汇的文脉的全新作品,于此优雅亮相。百年「清和」,至此新生;长桥在地文化的传承与唤醒
徐汇长桥,一段跨越860年的时代往事,由此娓娓道来。海上·清和玺,源自百年「清和」的传承。长桥因桥而名,公元1163年南宋隆兴年间,长桥时名“清和桥”,迄今已有860多年历史,从历史到现在,一座桥见证历史的变迁,记录上海城市巨变的缩影。后因清和桥之南属于华亭县,桥之北属上海县,清和桥横跨两县,民间又称之为“长桥”。这也是长桥港、长桥镇得名的由来。
图片来源于网络

时间潮去,时代潮来,“清和”虽留驻于历史,但“清和”的美好期盼依旧流淌于老徐汇人的心田。楚辞《九思·伤时》中提到“声噭誂兮清和”,“清和”寓意着清静和平,社会升平。正如今天的长桥,岁月静好温润如初。当目光穿越时间,海上清和玺,正是一次百年长桥源址的续写,一次海派在地文化的薪火传承。
海上·清和玺,基于百年长桥在地文化的传承,以海派历史为底蕴,在过于与未来之间,奢享一座城市罕有的文脉资产。
翻阅历史,徐汇始终被时代所铭记。世界各地的文化于此交融,海派文化于此兴盛,艺术、文化、建筑、时尚等多元绽放,展现属于徐汇的荣耀与风采。
百年书香底蕴,这里是城市的文脉殿堂,经典百年名校汇聚于此,如南阳公学(上海交大)、 龙门书院(上海中学)、 徐汇中学(创办于1850年),百年人文教育沉淀,让徐汇一直充斥着人文气息。
实拍图,来源于网络

漫步街巷,时代名人在此留下印记,诉说着徐汇的向往与思忖。从巴金、宋庆龄到赵丹、周璇故居,徐汇百年时光中留存众多名家、达官显贵的历史门牌,一栋栋名家故居背后,是徐汇为人所羡慕的深厚底蕴。
艺术如生活的调剂,总有一刻时光,我们从艺术的空间中寻回生活的真谛。徐汇云集百年海派艺术的启蒙之源,我国首个音乐高等学府上海音乐学院、亚洲第一剧院美琪大戏院、最古老的交响乐团上海交响乐团,以及唱片工业的发源地百代小红楼等,每一席皆在历史留有盛名。
实拍图,来源于网络

建筑源脉生长在徐汇街巷,经典Art deco建筑博览于此。汇集衡山路特色住宅群落,衡复风貌区等,百年Art Deco建筑博览地,无不彰显着徐汇的海派魅力。行走在街头,抬头望去皆是小红书中经典出片的打卡场景。
实拍图,来源于网络

徐汇滨江,时代潮头;汇聚城市的领先势能;从过去到现在。历史在我们脚下,时代在我们眼前。
上海沿江而兴,滨江始终潮头。入主徐汇滨江,是上海人共有的向往。海上·清和玺所处板块,正值徐汇滨江1英里。自上海取消土地联动价后,首个高溢价地王“小米地块”选址徐汇滨江,7家品牌房企竞逐该地块,最终被绿城以总价约48亿元夺得,楼板价13.1万元/平方米,溢价率触及最高限制,达到30%,可见徐汇滨江的市场热度之高。而区别于徐汇滨江北段的置业高门槛,徐汇长桥所处地理位置,承徐汇滨江的发展浪潮,一枝独秀。
徐汇滨江热度之高,是得益于远瞻世界的战略规划,徐汇滨江打造“世界卓越水岸”,规划有百万方规划组团。徐汇滨江迄今已规划六个百万方组团,聚焦⼀港、⼀⾕、⼀城、⼀场、⼀湾、⼀心的六个百万⽅空间布局(⻄岸⾦融城、⻄岸数字⾕、⻄岸数智中心、⻄岸传媒港、⻄岸热⼒秀场和⻄岸⽣命蓝湾),而第七大组团“中央公园”,完美覆盖海上·清和玺所在上海植物园区域,未来将无界链接城市生态资源,促进徐汇滨江与城区无界融合、兑现徐汇滨江的高质量发展。
信息来源于网络

从徐汇开发趋势来看,徐汇向南延伸已成态势。近年来,徐汇作为热门的主城板块,住宅土地供应日渐紧张。随着内徐汇向南延伸,徐汇滨江以绝对实力承接了内徐汇的高单价,而随之南向开发的不断深化,上海南站区域暂无新房供应,而更靠近滨江的长桥板块相较之靠近徐汇腹地的田林、南站板块置业门槛更低,是典型的土地发展红利期。
信息来源于网络

从百年底蕴到滨江规划潮头,站位1英里徐汇滨江的时代宝地,海上·清和玺未来的发展潜力,不容小觑。
交通配套:距离15号线罗秀路站约1.2公里,步行不算近,但是也能接受。
自驾方面,约800米即可上中环,距离龙吴路、上中路隧道、外环直线距离约1公里,距离虹梅南路、沪闵高架路也仅约2公里。因此,不仅是浦西,去浦东也很方便。

商业配套:项目2公里内有凌云壹街坊、百安居、东阔生活广场、规划了北杨人工智能小镇。

教育配套:海上·清和玺除了位居徐汇滨江一英里的板块之上,项目正处在徐汇文教区的核心,名牌高校、重点中学不胜枚举,上海交通大学、华东理工大学、上海音乐学院等落址于此。
优质教育资源密集且近距离地环绕在项目四周,让海上·清和玺的教育配套水准达到了全市少见的程度。

距上海“四校”之首的百年名校——上海中学直线距离仅约320米;距园南中学直线距离约650米,该校近年来中考升学成绩在徐汇区排于前列,连续三年中考区内公办第一;距公办二梯队小学园南小学直线距离约400米,对口初中即为实力不俗的园南中学;距九年一贯制上汇实验学校直线距离约500米,虽为成立于2021的新校,但作为上海中学的“亲孙子”,其影响力早已扩张开来。
而且据悉,附近的长桥第二小学即将被口碑优秀的上海小学合并,由上海小学同一管理,无疑是板块内教育配套的有一次重要升级!

(仅为介绍周边教育资源,不作为开发商对购房人家庭及相关未成年人的入学承诺。入学政策以政府教育主管部门及校方的最新政策为准。)
休闲配套:距离上海植物园直线距离约1.3公里。
徐汇「海上·清和玺」即将加推建面约143㎡四房,总价2000万左右终极改善!