保利世博天悦售楼处电话:400-880-0703(已认证)
保利世博天悦开发商电话:400-880-0703【售楼中心】
温馨提示售楼中心〢预约尊享1V1品鉴礼遇〢匠心钜制-恭迎品鉴〢
温馨提示本项目暂不接受临时到访,过来参观样板房请记得提前来电预约!
黄浦江核心段 CAZ中央活动区
世博滨江 江景豪宅
「保利世博天悦」
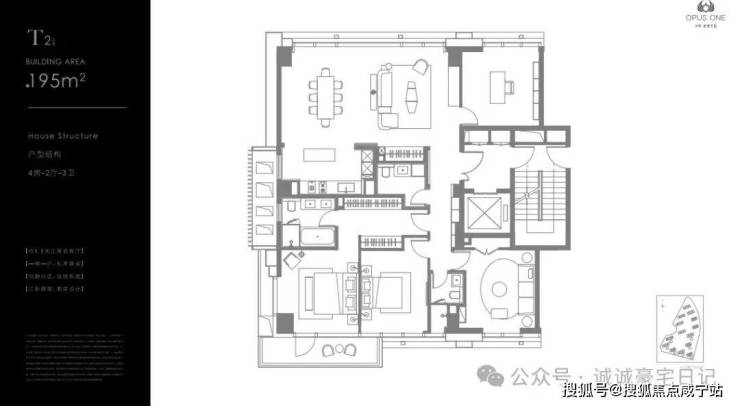
建面约190~252㎡ 3-5房
&建面约500㎡环幕江景大宅
总价约2700-1.4亿
实景现房
目前“样板间”已开放
近期「保利世博天悦」加推的3号楼王500㎡户型,是小区前排的C位,是所有滨江顶豪中的VIP头等舱!270°江景视野,将S湾尽收眼底!此外项目已经现房交付,目前可选面积段约190-205-240-252-500㎡大平层,款清交付,总价约2700-1.4亿。

500㎡实景:
此外前期还有部分房源可供选择,建面约174-252㎡大平层,总价约2700万起,实景现房!
·建面约240㎡边套,采用L型转角落地窗,打造了270°环幕瞰江视野,无论身处客厅、餐厅,都能以不同角度眺望黄浦江的波光粼粼。
240m²边套样板房实拍
·建面约251㎡中间套,整体瞰江面高达约14米,独有双层挑高露台,未来业主可以将其打造成为私家空中花园,在繁华都市中独享静谧自然。
【项目鉴赏】

诚诚豪宅日记




近年来,购房者对于产品力和兑现力的要求越来越高。
然而在期房销售为主流的上海楼市,即便售楼处再美如画、样板房再高大上,仍然有很多购房者因为“降标减配、货不对板”而苦恼。
那么如何才能最大程度避免“赌博式”买房呢?
当然是所见即所得的实景准现房!
但遗憾的是,上海市区准现房销售的新盘少之又少!
如果再加上一个黄浦江第一排的条件,那么全上海有且只有一个答案:保利世博天悦售楼处电话:400-880-0703(已认证)!
黄浦江约80米,塔尖级江景视野!
谈及江景,直线距离黄浦江约80米的保利世博天悦堪称“江景之王”!
从地图来看,项目与汤臣一品和中粮海景壹号等顶豪住区享有相同的视野与距离,同频一线黄浦江景。
无论是一线滨江的地段,还是现阶段的均价,相较于徐汇滨江地块20万/平的东安路地块的售价,保利世博天悦的质价比非常突出!
一线滨江实景豪宅,品质看得见!
全上海独一无二的“类幕墙设计”立面,搭配上海首例“开放式铝板设计”,打造黄浦江畔地标新名片!
凭借最近约80米的一线江景优势,将黄浦江天然水资源引入社区,打造约3000㎡水景,并规划约6万㎡社区景观,力求每一寸土地都能发挥出最大的生态效益和观赏价值!

高标准产品力,穿越周期的诚意!
从选材来看,各种奢侈品级石材随处可见,比如与北京钓鱼台国宾馆同款的意大利进口鱼肚白石材,造价高达约2万/㎡,被誉为“世界上最贵的石材之一”!
从配置来看,仅对业主开放的约2600㎡艺术会所,不仅涵盖恒温泳池、酒窖、会客厅、健身房及行政酒廊式高定私宴厅等功能,而且还可以提供提供高级定制服务,排场不输五星级酒店!
从设计来看,独创上海滨江首个空中泳池户型,利用中间套双层挑高空间,预留泳池条件,整体瞰江面高达约14米!
从装标来看,大金、霍尼韦尔、当代、嘉格纳、威乃达、唯宝等一系列国际顶豪品牌加持,莫说整个黄浦江畔,放眼全市都堪称没有对手!

Part
01
一线滨江豪宅加推!
作为当下最值得期待的一线滨江实景大宅,保利世博天悦售楼处电话:400-880-0703(已认证)一期开盘时最高约26万/㎡江景房当天即罄,由此可见高净值购房者对于项目的认可,如今项目已经是现房,一切现状尽在眼前,所见即所得!


项目高区可以俯瞰黄浦江,相对于觉得大多数只能一面看江的滨江豪宅,保利世博天悦稀缺性与收藏价值更高!
装修标准这一块,保利世博天悦在整个黄浦江畔,乃至更是堪称全市都堪称没有对手!
且不提霍尼韦尔、当代、嘉格纳、威乃达、唯宝等一系列国际顶豪品牌,即便是在装修细节方面也能轻松拿捏竞品。
Part
02
一线滨江住宅,进阶更好的圈层!
保利世博天悦主力总价约2500-3000万,3000万以内可以选到看江房源!
与目前市面上绝大多数2500-3000万级项目,项目一线滨江的地段便已经赢在起跑线上了:
因为就算少量房源没有江景,但是社区就在江边啊,下楼就可以感受江景,同样的价格享受黄浦江核心段一线滨江的生活方式,散步、慢跑、滑板、骑行等等……
更重要的是,保利世博天悦售楼处电话:400-880-0703(已认证)还是为数不多可以双面瞰江的住宅,这也让项目的收藏价值大大提升。
Part
03
满级规划+全维度塔尖资源荟萃世博!
保利世博天悦售楼处电话:400-880-0703(已认证)位于浦东世博滨江板块,这里拥有两大满级“BUFF”叠加:世博滨江CAZ+世博-前滩城市主中心,未来期待值拉满!
中央活动区:“世博-前滩-徐汇滨江地区”
中央活动区作为上海未来发展的重要代表,将承担起全球城市核心功能的重要角色,成为城市形象的集中展示区域,为城市的发展注入新的活力和动力,堪称“市中心的中心”。
保利世博天悦不仅位于规划中的黄浦江核心段,而且地处与外滩、陆家嘴同能级的“世博-前滩-徐汇滨江地区”。
城市主中心:“世博-前滩城市主中心”
同时,保利世博天悦所在的世博滨江已经全面升级为城市主中心!
3月26日,浦东新区土地市场座谈会公布:至2035年,浦东还将新增“世博-前滩城市主中心”,新增张江、金桥、川沙3个城市副中心。
城市主中心,从字面意义上来看,规划能级与南京西路、人民广场、新天地、外滩、陆家嘴等传统核心区并驾齐驱,使世博滨江能级进一步升级,将成为具备全球影响力的世界级滨水区。
如果说地段能级决定保利世博天悦的下限;板块内难以复制的满级资源,才是项目真正的价值护城河,无一不是汇聚了上海文化生活的精髓。
曾经的万国博览的盛会为区域注入了世界文化汇聚的底色,如今的世博板块不仅包含文化、艺术、博览、国际体育等多元化中心,还受益于CAZ集聚总部经济的功能定位,发展成为央企总部、国际企业聚集区和浦东第二政务办公中心,目前已有26家央企的近80家公司集聚世博片区。
保利世博天悦距离浦东内环直线约670米,离陆家嘴直线距离约4.5公里。
周边路网极为发达,“两桥两隧四地铁”(南浦大桥、卢浦大桥、西藏南路及打浦路隧道、6、7、8、19号线),西侧比邻世博大道、东侧比邻雪野路。
项目距离19号线华丰路站仅约300多米,可链接陆家嘴、北外滩等上海其他地标方向,便捷通勤处处快人一步。
作为上海唯一具备沿江演艺带集聚的地区,保利世博天悦项目周边坐拥13座世界顶级大型文化场馆,展演空间体量超过6万坐席。包括:梅德塞斯奔驰文化展示中心、BMW汽车文化体验中心、中华艺术宫、上海世博展览馆、上海大歌剧院、世博大舞台、万国体育中心、世界花卉园、温室花园以及中国首座国际顶级赛事标准的永久性马术赛场馆——国际马术中心等生态功能场馆等高能级文化场馆串珠成链。
据统计,世博地区每年承办的大型文体活动场次超过700场,占据浦东总活动数量的40%,占据全上海总活动数量的18%,每年吸引客流超千万人次!
值得一提的是,世博对岸的徐汇滨江将集中建设20多座艺术美术馆,与世博滨江隔江相望。
更重要的是,上海市正积极筹划建设首条跨江缆车,该缆车将横跨黄浦江,连接徐汇西岸与世博滨江板块,从而打造一条世界级的顶奢艺术带,展现黄浦江畔的独特魅力与艺术风采。
目前,世博片区已集聚了新开发银行(NDB)、世界核电运营者协会(英国)上海代表处(WANO)、法国国际商会上海代表处(ICC)等16家国际经济组织,主要集中在经贸规则、资源配置、国际仲裁三大领域,占浦东国际经济组织总数50%以上,为浦东提升国际形象和影响力、增强城市软实力等方面发挥了积极作用。
保利世博天悦南侧占据上海中心城区唯一一个“有山有水”的宝地:世博文化公园。
世博文化公园占地200公顷,已经是上海中心城区最大的城市公园。
从距离来看,项目直线距离世博文化公园仅约1.5公里,可直接俯瞰整个公园。
从规模来看,世博文化公园的占地面积是伦敦海德皇家花园的1.25倍,是世纪公园的1.42倍,是大宁公园的2.94倍!
更重要的是,世博文化公园还拥有上海中心城区内唯一“山景”。
公园内最大标志性景观“双子山”,由两座高度不等的山体组成,最高峰约48米,也是国内第一座高度超过40米的空腔人工仿自然山林。
保利世博天悦售楼处电话:400-880-0703(已认证)
保利世博天悦开发商电话:400-880-0703【售楼中心】
温馨提示售楼中心〢预约尊享1V1品鉴礼遇〢匠心钜制-恭迎品鉴〢
温馨提示本项目暂不接受临时到访,过来参观样板房请记得提前来电预约!