中建春合境明洋房/叠加/平层,多种户型,公寓均价2.81万/m²,叠加均价3.29万/m²,整体均价3.24万/m²。虽然是上海的刚需房价,但品质却是高端标准。
百年药铺同仁堂的店训为:品味虽贵必不敢减物力,炮制虽繁必不敢省人工。同样中建春合境明的开发商中建东孚就是一家这样的企业。
名企背书,品质有保障:中建东孚,2023年中国房地产行业综合实力第29位,责任地产第1位;全球最大的投资建设集团中国建筑股份有限公司骨干企业;中国建筑第八工程局有限公司旗下专业从事城市综合开发服务业务的平台公司。聚焦“精优生活畅享家”的品牌定位。名企匠造,品质更有保证。
中建春合境明整体容积率仅为1.15
1.15容积率代表什么?
了解土地政策的朋友就会知道,2006年就开始执行“限墅令”,期间多次加大规范力度,低密产品越发珍贵。
2010年上海叫停容积率低于1.0住宅土地供应。
2023年上海首轮土拍可以看到,出让的19幅宅地,仅有青浦区的一幅地块达到1.2的低容积率。由此可见,中建春合境明的低密度是有多难得。
懂建筑,更懂生活
中建春合境明以白鹭的生活姿态为灵感,精心考量老、幼、中、青四大人群所需,在社区中规划心享·客厅、心享·童趣、心享·书屋、心享·活力、心享·禅修等5大全龄配套,为不同年龄段业主提供专属休闲空间,重塑崇明人居新高度。以国匠手笔打造崇明诗意生活。
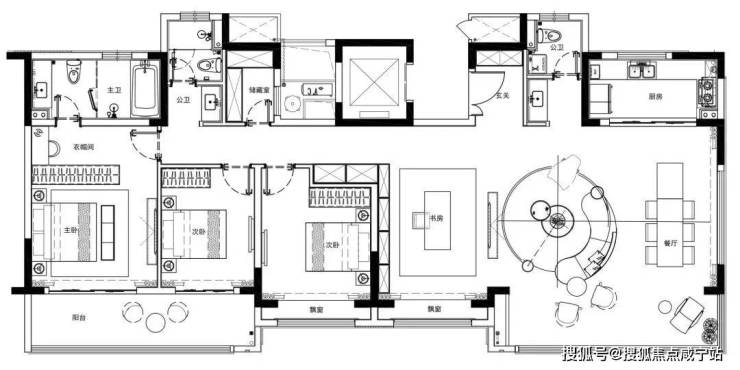
全面积段户型:中建春合境明全面积段户型,可以满足刚需、刚改、改善各种家庭需求。在户型设计上,也颇具亮点:
以这套建面约203㎡的叠加平层户型为例:主要功能区一字排开,全朝南,光照充足,有光的生活才惬意。最让人意想不到的是它的横厅竟然达到10.7米,要知道这种超大横厅通常都是千万级豪宅的配置,但是在这里,拥有豪宅同款品质生活变得触手可得。
这套建面约147㎡平层,电梯独立入户,保证私密性的同时也使得归家更具有仪式感;客餐厅同样是大横厅的布局;奢华主卧规划了独立衣帽间,臻享生活的纯粹与套房带来的便捷。
再来看看很有梦想指数的上叠产品:
南向约6.9米开间客餐厅,让视野无限延伸;朝南主卧套房,在保证主人私密性的同时,更是无形之中提升了生活质量;二层南北露台,全明采光,亲朋小坐,为生活赋予诗意。
这套175㎡上叠是奢华四房布局,满足不同家庭需求,无论是二胎家庭还是三代同堂,于此处皆可其乐融融;顶层南北双露台设计,让生活起居尽显高雅格调。
最有别墅居住感的下叠,建面约145㎡:主卧配备专属南向观景飘窗,在窗前可与光影进行一场艺术的交流;约6.9m宽厅,生活从容不迫,营造优雅生活领地;约5.25m层高的地下灵动空间,可根据自身喜好,打造专属自己的趣味空间。
这套建面约190㎡下叠,上层空间是南向三卧室的设计,光照充足;奢享光影生活,主卧套房配置步入式衣帽间、独立卫浴;也附赠5.25m层高地下空间。
刚需门槛最低的就是90㎡精致洋房:南向三开间,带有观景阳台,不论是观景或是晾晒衣物,再或是和家人一起休闲小坐统统可以容纳;L型宽敞厨房,在有效阻断油烟的情况下,相比一字型厨房更加实用,与家人一起,为爱下厨。
项目为区域内少有的高品质全装修社区,甄选国际知名品牌打造装修细节,配备地暖及中央空调两大健康人居系统,提升家居智能化体验,升级崇明人居标准 。
说起崇明,人们往往想到五一、十一假期长江隧桥的大堵车。作为中国生态大岛,长江门户、东海瀛洲,上海的后花园,这里是很多人心中的“度假胜地”。
但度假和居所之间,往往有着生活设施的隔阂。中建春合境明在这个33万方大城,让度假成为了回家。
离城不离繁华:上海的行政中心在人民广场,而在它的周边有南京路商圈、淮海中路商圈、新天地商圈等商圈,这是城芯的繁华。
而中建春合境明所在的城桥镇则是崇明区政府的所在地,和人民广场一样,城桥镇也拥有着崇明繁华的商业配套,万达广场、八一路商业街,多元化商业,近在咫尺。
那些在上海其他区域需要排队的网红店,在这里可以轻松享受,即使宅家也不用担心外卖配送时间过长,在家饥肠辘辘。项目与繁华咫尺,离城不离城,多元缤纷业态,在中建春合境明随时感受商业便捷。

多元路网,即刻出发:项目周边交通便捷,三大公路环伺。陈海公路可快速连接G40直达市区。崇明大道、北沿公路均为崇明岛主轴交通。
因其崇明独特的地理位置,项目周边还有吴淞码头、宝杨路码头与石洞口码头,三大水路可以直达上海市区。
除了水路与公路,板块内还有多条公交线路可以到达上海城区,无论是自驾还是公共交通,都可以享受便捷出行带来的感受。
菁英教育,肇启精英生活:项目所在板块内有崇明区明珠小学、城桥中学、明志中学、崇明中学等优质学校,多元教育赋能,书香蕴染锦绣未来。
一座城、一个区域如果仅仅是满足于现状,那么过不了多久便会被其他区域赶超,人口也将向外迁移,所以未来是否值得期待,是否有落地的规划,成为了这个区域是不是值得入驻的重要考核标准。
未来规划,是房子价值提升的重要载体。而崇明,这个上海最后的净土,其实留给了人们无限的想象,每一个前进的步伐,都相当“重磅”!
根据上海崇明2035规划,崇明区将发展为世界级生态岛,到2035年将崇明世界级生态岛打造成绿色生态“桥头堡”、绿色生产“先行区”、绿色生活“示范地”,未来生态环境与宜居程度自然不必多说。
宜居更要出行便捷,目前岛上有公路与水路以及公交线路可以快速到达上海市区,但未来绝不会止步于此。
未来崇明也将迎来属于自己的轨交时代,上海轨交崇明线途经浦东新区和崇明区2个行政区。
该线起自浦东新区金吉路站,总体沿申江路、东靖路开行,穿越长江南港航道、长兴岛、北港航道后,在崇明区陈家镇上岛,终至崇明岛裕安站(暂命名)。可与上海地铁9,12号线换乘从而接入轨道交通路网,使得崇明至人民广场的时间大大缩短。
崇明高铁小镇位于项目所在的城桥镇以西1.5公里,一期项目占地3.26平方公里,将建成产城融合、低碳发展的绿色小镇。
随着高铁小镇相关规划的落地,城桥镇产城融合发展迈出了重要一步。同时,围绕提升核心镇区服务保障能级,多个民生保障项目和城市功能配套建设也按下了快进键。