近两年的金桥新房不是一般的火,「涌潮府售楼处电话:400-8800-703」两前年开盘的仁恒金桥世纪74.6分,2022年开的金鼎首府无样板间开盘售馨,2023年上半年开的金鼎阅府开盘一个礼拜售馨,可以看到金桥金鼎九宫格的火爆。崇明线的即将开通对金鼎及曹路的巨大利好,金鼎天地一半在曹路地界,地铁2站到曹路,12批金鼎睿府联动价8.25万,2站地铁距离的凌空北路才5.15万/平,3万多的价差在上海放眼全国都是少见的。
地铁3站直达金桥
浦东500万级全新地铁房
「涌潮府」取证
售楼处电话:400-8800-703
看房请务必致电与销售确认时间,避免空跑
12月14日已认购
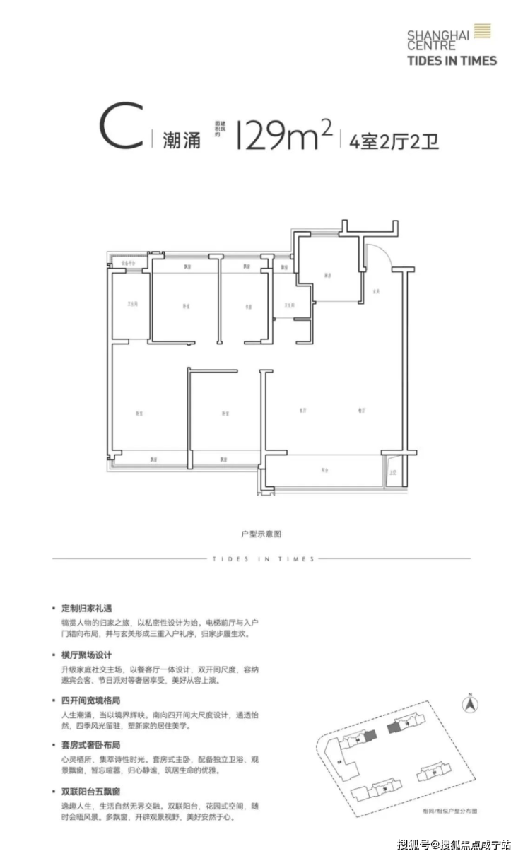
建面约88-129㎡3-4房
均价约5.15万/㎡
已开盘 直接认购中
1地段
交通方面,周边目前在建崇明线一期凌空北路站,步行约650米左右,预计2026年通车,地铁开通后2站申江路可换乘12号线、3站金吉路可换乘9号线,可满足日常通勤需求。
商业方面,周边有中惠·棠里、恒越广场等商业配套,可满足日常生活所需;如果说要满足更丰富的消费需求,未来通过地铁换乘12号线可达金鼎天地(在建)、嘉里中心(在建)、森兰印象城(在建)等商业中心,自驾过去的话,也比较方便,时间基本能控制在20分钟以内。

教育方面:12-01地块东侧在建幼儿园,预计2023年7月份竣工,15-01地块南侧在建初中和小学,预计2024年6月份竣工备案完成移交教育局开办,预计招生时间2024年9月(具体以教育局为准)。


医疗方面:距离项目3.7公里左右,目前在建上海长征医院浦东分院,定位为公办三甲综合医院,预计23年底竣工,24年投入使用。
2产品
2023年7月13日,浙江钱江房地产集团有限公司、宁波维科置业有限公司以及杭州市城建开发集团有限公司以总价77033万元竞得浦东新区曹路基地12-01地块,楼板价28348元/㎡,溢价率10%,房地联动价51500元/㎡!
四至范围:东至12-02地块,南至12-03地块,西至金开南路,北至:海福路。基本参数:普通商品房用地,占地面积约1.36万方,计容面积约2.72万方,容积率2.0,限高50米,住宅套数下限288套,套均面积约94.4㎡!
根据出让合同显示,项目需配建5%以上的保障性住房,全装修比例50%,要求中小套户型不得低于住宅总建筑面积的60%!

地块周边实拍





户型图鉴赏




地铁3站直达金桥
浦东500万级全新地铁房
「涌潮府」取证
售楼处电话:400-8800-703
看房请务必致电与销售确认时间,避免空跑
12月14日已认购
建面约88-129㎡3-4房
均价约5.15万/㎡
已开盘 直接认购中