2026一文读懂陆家嘴中国石化大厦优缺点!分析一下中国石化大厦值得买吗?

咸宁楼市发布

2026-01-19 20:43:50

购房群

买房如何避坑,加入购房群,看看他们怎么说

立即进群

只有2席!单价3万+,浦东陆家嘴全新整栋公寓 【中国石化大厦】约180㎡大平层,开阔视野,全明通燃气台,双阳台配置,地铁口步行达

浦东陆家嘴滨江太古里旁

面积:179平,总价650w简装,东南

面积:179平680w是毛坯+产权车位,西南可看三件套

现状交付,南北通+双阳台 整栋居住通燃气

预约咨询热线:400-960-1656☎, 加微咨询:139 1616 5691(加微,不要来电,备注楼盘名字)

点击输入图片描述(最多30字)

点击输入图片描述(最多30字)

点击输入图片描述(最多30字)

一、项目简介

区位:

点击输入图片描述(最多30字)

二、立体轨交路网

项目位于陆家嘴北滨江豪宅区域板块,高端生活圈,民生路与浦东大道交界处,距陆家嘴核心区仅2公里。周边有4条轨道交通:环线4号线浦东大道站,6号线民生路站,14号线(黄金线)以及18号线昌邑路站。

点击输入图片描述(最多30字)

2座跨江大桥:杨浦大桥,南浦大桥3条轴心大道:浦东大道,世纪大道,滨江大道。6条过江隧道:延安路隧道,江浦路隧道,复兴路隧道,人民路隧道,大连路隧道,新建路隧道。

点击输入图片描述(最多30字)

🛍🛍繁华商业荟萃

项目隔壁就是(在建)太古里和滨江光合新座步行5分钟,三公里范围内国金中心、正大广场、第一八佰伴、置地旭辉、源深体育中心、联洋大拇指等供你选择。

点击输入图片描述(最多30字)

🏥🏥医疗配套

东方医院,仁济医院,上海浦滨儿童医院为您的健康保驾护航。

点击输入图片描述(最多30字)

💒💒名校林立

公立福山外国语,上海交大附属中学浦东实验高中,建平香梅中学,洋泾中学南校;私立上海民办福山正达外国语小学,国际上海德威英国国际学校,上海纽约大学,上海协和国际学校等都在附近,教育配置雄厚。

🔥开发商:中石化集团

🔥物业公司:港联物业

🔥在售:2套高区(含产权车位)

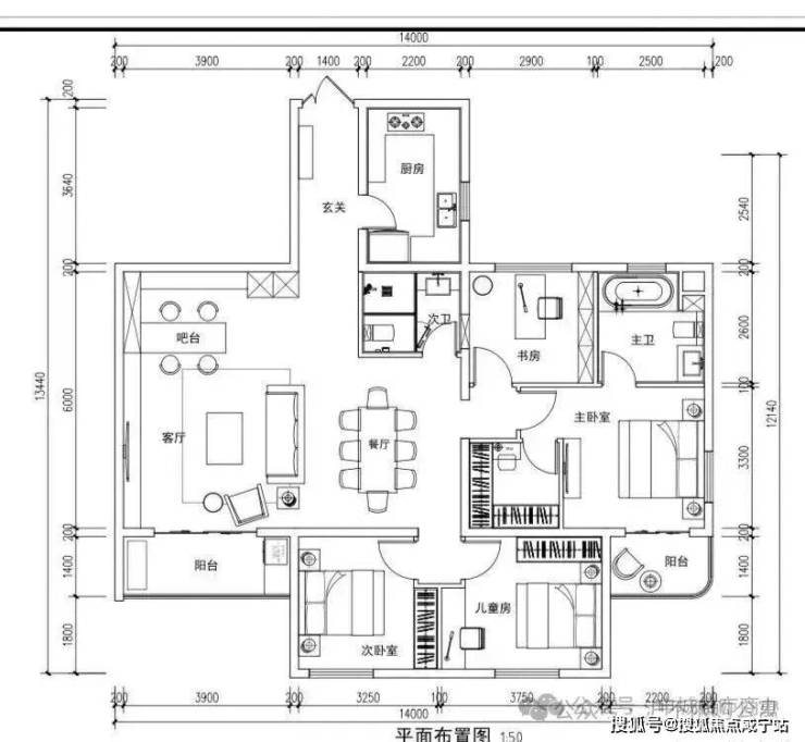
🏡面积:179.18㎡

💰价格: 650-680万

🔥拿地:1995年,骏工1999年

🔥水6元/吨,电0.79元/度,燃气4.39元/立方

🔥物业费:4.18元

🔥得房率:80%

🔥总层:29层

🔥层高:3米

🔥梯户比:2梯4户、户型方正全明

🚗停车:临停10元/小时,500/月

🔥交付标准:现状

🔥独立上下水💧

—————————————————

1.西南04室毛胚看三件套,送车位仅售680万

2.东南03室精装修,650万

点击输入图片描述(最多30字)

点击输入图片描述(最多30字)

点击输入图片描述(最多30字)

点击输入图片描述(最多30字)

点击输入图片描述(最多30字)

点击输入图片描述(最多30字)

预约咨询热线:400-960-1656☎, 加微咨询:139 1616 5691(加微,不要来电,备注楼盘名字)

全部

相关资讯

报名成功
稍后会有专业的置业顾问联系您
返回楼盘

频道导航

返回首页

看房小程序

APP下载

电话拨通后,请您手动拨打分机号

确定拨打电话

电话号码:

分机号:(可能需要拨分机号)