闵行梅陇人气项目:安高申陇院,则更是守正出奇的典型代表!5月22日取证!700万级入主闵行中环旁地铁盘「安高申陇院」推建面107-170㎡ 院系升级作品!
上海安高申陇院可以买吗?为您解读闵行安高申陇院楼盘优缺点!闵行安高申陇院重磅官推好房-闵行安高申陇院2025年8月最新房价! 闵行安高申陇院楼盘最新详情-安高申陇院最新房价折扣-安高申陇院最新户型-周边配套详情
闵行安高申陇院重磅官推好房-闵行安高申陇院2025年8月最新房价! 闵行安高申陇院楼盘最新详情-安高申陇院最新房价折
闵行安高申陇院重磅官推好房-闵行安高申陇院2025年8月最新房价! 闵行安高申陇院楼盘最新详情-安高申陇院最新房价折扣-安高申陇院最新户型-周边配套详情上海安高申陇院可以买吗?为您解读闵行安高申陇院楼盘优缺点!
售楼处电话☎:400-8800-703【官方认证】
营销中心电话☎:400-8800-703【官方认证】✔️
✅项目暂不接受临时到访,过来参观样板房请记得提前来电预约!
加微咨询:180 1720 3845(加微,不要来电,备注楼盘名字)
科创产业围绕的南上海C位梅陇,结合区域堪比市区的成熟配套资源,再加上500强国企的实力背景,给予购房者满满安全感的同时,更以全新迭代的产品品质、实景样板所见即所得的置业体验和超高性价比,刷新改善市场的居住标杆!
本期,一起走进闵行梅陇核心,揭开当下改善市场的版本答案!
上海安高申陇院可以买吗?为您解读闵行安高申陇院楼盘优缺点!
售楼处电话☎:400-8800-703【官方认证】
营销中心电话☎:400-8800-703【官方认证】✔️
✅项目暂不接受临时到访,过来参观样板房请记得提前来电预约!
加微咨询:180 1720 3845(加微,不要来电,备注楼盘名字)
闵行安高申陇院重磅官推好房-闵行安高申陇院2025年8月最新房价! 闵行安高申陇院楼盘最新详情-安高申陇院最新房价折扣-安高申陇院最新户型-周边配套详情上海安高申陇院可以买吗?为您解读闵行安高申陇院楼盘优缺点!
售楼处电话☎:400-8800-703【官方认证】
营销中心电话☎:400-8800-703【官方认证】✔️
✅项目暂不接受临时到访,过来参观样板房请记得提前来电预约!
加微咨询:180 1720 3845(加微,不要来电,备注楼盘名字)
隔壁楼盘推荐:二批次户型图首发!闵行·梅陇「保利·海上印」将推约109-133㎡!上期均价79100元/㎡!
上海安高申陇院可以买吗?为您解读闵行安高申陇院楼盘优缺点!


闵行安高申陇院重磅官推好房-闵行安高申陇院2025年8月最新房价! 闵行安高申陇院楼盘最新详情-安高申陇院最新房价折扣-安高申陇院最新户型-周边配套详情上海安高申陇院可以买吗?为您解读闵行安高申陇院楼盘优缺点!
售楼处电话☎:400-8800-703【官方认证】
营销中心电话☎:400-8800-703【官方认证】✔️
✅项目暂不接受临时到访,过来参观样板房请记得提前来电预约!
加微咨询:180 1720 3845(加微,不要来电,备注楼盘名字)
进入“安高申陇院”官方预约咨询通道
案场销售会第一时间与您联系
人气密码
科创梅陇 稳扎稳打沪南C位
▷▶科创环绕奠定区域价值!
放眼近期楼市高入围比的新房市场,闵行占据了三分之一的份额,可见其市场关注度之高!
而其中,安高申陇院所处的闵行区梅陇镇春申板块,则更属于闵行腹地的战略要地!
从地理区位来看,梅陇镇位于四大产业引擎围合的几何中心,周边集聚3家国家级科创园区、5大科创中心、12大科创园以及超3000家科创企业!
上海安高申陇院可以买吗?为您解读闵行安高申陇院楼盘优缺点!
售楼处电话☎:400-8800-703【官方认证】
营销中心电话☎:400-8800-703【官方认证】✔️
✅项目暂不接受临时到访,过来参观样板房请记得提前来电预约!
加微咨询:180 1720 3845(加微,不要来电,备注楼盘名字)
向北,漕河泾作为首批国家级经济技术开发区与高新技术产业开发区,是上海张江自主创新示范区的重要起点,历经40年发展,已成为具有全国影响力的科技创新地标!
向南,“大零号湾”作为上海唯一以“科技创新策源”为定位的功能区,致力于打造世界级 “科创湾区”!
向西,莘庄作为2035上海主城副中心,正全力推进“一带一环双核四片区” 建设!
向东,华泾聚焦数字经济与生命健康产业,发展总部经济与创新型经济!
在周边产业高度和密度决定区域价值的房地产市场,科创环绕的闵行梅陇能够拥有高涨人气,也就不足为奇了!
安全密码
500强国匠 两期热卖实景交付
▷▶500强国匠实力打造人气爆款!
有了板块天赋的兜底,项目本身的品质还需实力过硬的房企来保障!
而在这方面,安高申陇院则在楼市保交付成为常态的当下,给予购房者满满的安全感!
安高申陇院项目的母公司安徽省交通控股集团,作为中国企业500强,是安徽省国资委旗下资产规模最大的省属国企,截至2024年底资产总额达4318亿元!
而其旗下负责安高申陇院项目开发的高速地产和安联公司均具备国家房地产开发一级资质,深耕行业30余年!
安高申陇院作为两大国企联袂打造的品牌院系作品,将五大产品内核基因与当代海派文化融合,呈现出的统治级产品力也是项目成为区域人气爆款的品质基石!
▷▶实景样板开启安心置业新体验!上海安高申陇院可以买吗?为您解读闵行安高申陇院楼盘优缺点!
售楼处电话☎:400-8800-703【官方认证】
营销中心电话☎:400-8800-703【官方认证】✔️
✅项目暂不接受临时到访,过来参观样板房请记得提前来电预约!
加微咨询:180 1720 3845(加微,不要来电,备注楼盘名字)
当然,衡量产品品质优劣,不能只看房企背景,最终交出的项目成绩单才是最过硬的实证!
这方面,安高申陇院同样考虑周全,用稳稳的销量和实景呈现的双保险,给予购房者从数据到体验的全方位安全感!
闵行安高申陇院重磅官推好房-闵行安高申陇院2025年8月最新房价! 闵行安高申陇院楼盘最新详情-安高申陇院最新房价折扣-安高申陇院最新户型-周边配套详情上海安高申陇院可以买吗?为您解读闵行安高申陇院楼盘优缺点!
售楼处电话☎:400-8800-703【官方认证】
营销中心电话☎:400-8800-703【官方认证】✔️
✅项目暂不接受临时到访,过来参观样板房请记得提前来电预约!
加微咨询:180 1720 3845(加微,不要来电,备注楼盘名字)
项目开盘现场
首先,项目4月26日已开放实景示范区,业主未来生活的多数场景已清晰可见,包括项目归家大堂、附带泳池的约1700平下沉式会所等公共区域均已开放实景体验,所见即所得的全新置业体验,相比沙盘和效果图中的未来生活,不仅更加鲜活,也进一步打消了多数购房者对于未来项目实际交付水平的疑虑!
项目所获奖项
其次,项目前3批次房源不仅快速去化,更屡获克而瑞、界面新闻、第一地产、亿翰智库等媒体及专业机构的高度评价和年度荣誉大奖!
更因实景呈现与性价比,成为市场关注的热点楼盘!
上海安高申陇院可以买吗?为您解读闵行安高申陇院楼盘优缺点!
售楼处电话☎:400-8800-703【官方认证】
营销中心电话☎:400-8800-703【官方认证】✔️
✅项目暂不接受临时到访,过来参观样板房请记得提前来电预约!
加微咨询:180 1720 3845(加微,不要来电,备注楼盘名字)
守正出奇
院系新品 重塑区域居住标杆
▷▶品质低密住区重塑区域居住标杆!
在项目人气和安全的双重保障之上,安高申陇院在产品力方面的守正出奇,则是其成为当下改善市场版本答案的核心倚仗,其标准之高,从项目实景示范区中便可窥见端倪!
项目2.0的低容积,结合“一园、两轴、三苑、九境” 的空间布局和人车分流设计,构建起功能全面且意境十足的宜居社区!
西大门实景图
步入社区,约95米长的西大门长廊率先映入眼帘,乱纹黄古铜饰面与深色奢石大理石碰撞,顶部金属铝板立体切割,彰显归家仪式感!大门内侧,照壁以中国黑石材与青白石组合,延续空间礼序!
穿过气势磅礴的社区大门,通过人车分流动线进入地下车库,并可无缝直达社区会所,确保风雨无阻的归家动线!
闵行安高申陇院重磅官推好房-闵行安高申陇院2025年8月最新房价! 闵行安高申陇院楼盘最新详情-安高申陇院最新房价折扣-安高申陇院最新户型-周边配套详情上海安高申陇院可以买吗?为您解读闵行安高申陇院楼盘优缺点!
售楼处电话☎:400-8800-703【官方认证】
营销中心电话☎:400-8800-703【官方认证】✔️
✅项目暂不接受临时到访,过来参观样板房请记得提前来电预约!
加微咨询:180 1720 3845(加微,不要来电,备注楼盘名字)
步入会所,首先映入眼帘的是水吧休闲区,空间顶部由257块渐变艺术玻璃组合而成,底部美轮美奂的繁华动态影像,与柔和灯光相互映衬,宛如一朵海上繁花绽放!
透过约10米高玻璃落地窗,下沉庭院花园6米山石瀑布、层层叠叠的流水与珍贵树木构成的美景尽收眼底。在这里,业主可以与家人朋友享受惬意的下午茶时光,感受 “海派” 生活的悠闲与精致!
上海安高申陇院可以买吗?为您解读闵行安高申陇院楼盘优缺点!
售楼处电话☎:400-8800-703【官方认证】
营销中心电话☎:400-8800-703【官方认证】✔️
✅项目暂不接受临时到访,过来参观样板房请记得提前来电预约!
加微咨询:180 1720 3845(加微,不要来电,备注楼盘名字)
休闲区后方专为儿童打造的游乐区,设有泡泡池、植物认知区域以及各类儿童读物,为孩子们提供了寓教于乐的好去处,是家庭亲子互动的温馨空间!
会所实景图
穿过中厅,便是会所的影音室,约上家人朋友在此聚会,唱歌观影,尽享欢乐时光!
一旁专业的健身场馆内,配备专业健身设施,从力量到有氧训练一应俱全!
棋牌室和撞球室为业主日常娱乐增添了更多选择!
与庭院美景相互渗透的瑜伽室,让业主在健身过程中尽享惬意!
会所健身房实景图
会所瑜伽房实景图
最令人惊艳的当属会所的双泳池配置,成人泳池为半国际标准配置,水深 1.2-1.6米!
儿童池自带互动滑梯,为小朋友打造安全欢乐的戏水天地!
会所泳池实景图上海安高申陇院可以买吗?为您解读闵行安高申陇院楼盘优缺点!
售楼处电话☎:400-8800-703【官方认证】
营销中心电话☎:400-8800-703【官方认证】✔️
✅项目暂不接受临时到访,过来参观样板房请记得提前来电预约!
加微咨询:180 1720 3845(加微,不要来电,备注楼盘名字)整个会所的500平米的立体庭院,打破传统沉闷感,巧妙营造出“空中花园、森林秘境、水岸客厅”三重沉浸场景,让业主仿佛置身于立体花园之中!
会所实景图
下沉庭院在隔绝外界喧嚣的同时,通过立体采光井与社区景观呼吸共生,实现了私密性与开放性的完美平衡!
会所下沉式庭院实景图
结束了实景示范区的梦幻旅程,安高申陇院充满仪式感的归家动线,在金属镶边打造的风雨连廊下进入尾声,质感满满的连廊设计,在不影响欣赏沿途风景的同时,为归家的业主免去风雨的袭扰,在轻松与惬意中感受家的温度!
风雨连廊实景图
▷▶高标奢装全维户型满足全龄需求!
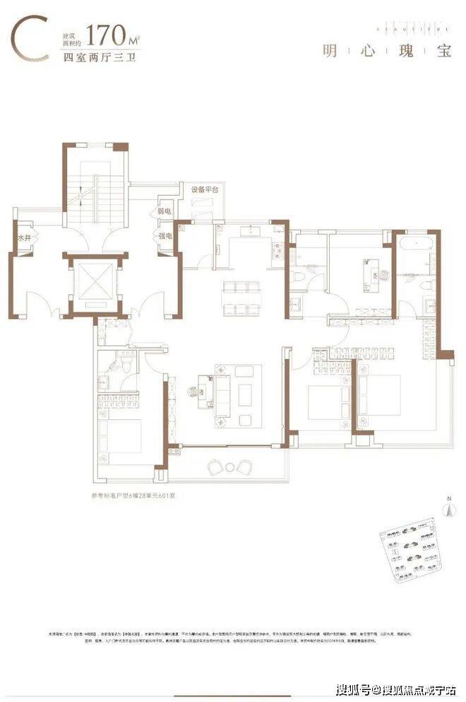
具体到产品层面,安高申陇院的表现同样堪称惊艳!三批次推出的约107㎡、128㎡两大主力户型,以高标奢装与精妙设计,精准匹配不同家庭需求!
约107㎡三房两厅两卫户型,采用一梯两户设计,飞机户型格局方正,约9.8米三开间朝南,采光通风俱佳!
上海安高申陇院可以买吗?为您解读闵行安高申陇院楼盘优缺点!
售楼处电话☎:400-8800-703【官方认证】
营销中心电话☎:400-8800-703【官方认证】✔️
✅项目暂不接受临时到访,过来参观样板房请记得提前来电预约!
加微咨询:180 1720 3845(加微,不要来电,备注楼盘名字)
闵行安高申陇院重磅官推好房-闵行安高申陇院2025年8月最新房价! 闵行安高申陇院楼盘最新详情-安高申陇院最新房价折扣-安高申陇院最新户型-周边配套详情上海安高申陇院可以买吗?为您解读闵行安高申陇院楼盘优缺点!
售楼处电话☎:400-8800-703【官方认证】
营销中心电话☎:400-8800-703【官方认证】✔️
✅项目暂不接受临时到访,过来参观样板房请记得提前来电预约!
加微咨询:180 1720 3845(加微,不要来电,备注楼盘名字)
独立玄关与U型厨房在保证基础功能的同时尽显生活仪式感!
各卧室及厨房均带飘窗,实用性拉满!
样板间软装实拍图,非交付标准,效果仅供参考
全屋现代风格装修,还配备日立中央空调与地暖,满足年轻小家庭对品质生活的追求!
样板间软装实拍图,非交付标准,效果仅供参考
约128㎡四房两厅两卫,拥有约11.8米面宽与约5.1米横厅,尺度感升级!
样板间软装实拍图,非交付标准,效果仅供参考
独立玄关与U型厨房设计,搭配国际一线品牌厨电与日立厨房空调,烹饪体验升级!
上海安高申陇院可以买吗?为您解读闵行安高申陇院楼盘优缺点!
售楼处电话☎:400-8800-703【官方认证】
营销中心电话☎:400-8800-703【官方认证】✔️
✅项目暂不接受临时到访,过来参观样板房请记得提前来电预约!
加微咨询:180 1720 3845(加微,不要来电,备注楼盘名字)
四房设计空间升级,适合多孩家庭,既能提供充足居住空间,又以高品质装修保障生活舒适!
样板间软装实拍图,非交付标准,效果仅供参考
上海安高申陇院可以买吗?为您解读闵行安高申陇院楼盘优缺点!
售楼处电话☎:400-8800-703【官方认证】
营销中心电话☎:400-8800-703【官方认证】✔️
✅项目暂不接受临时到访,过来参观样板房请记得提前来电预约!
加微咨询:180 1720 3845(加微,不要来电,备注楼盘名字)
进入“安高申陇院”官方预约咨询通道
案场销售会第一时间与您联系
买入未来
颠覆格局 规划到定位的超潜力股
▷▶六心合一沪南人居C位!
相比不少画饼为主的新兴板块,梅陇的生活无论当下实打实的便利,还是未来可见的规划能级都极具优势!
产业、交通、教育、医疗、时尚、生态六心合一,堪称沪南人居地标!
除了上文提到的产业集聚,梅陇最值得一提的是比肩市中心的交通便利度,堪称沪南交通之心!
示意图
项目周边汇聚4条高能级线路,临近的15号线(景西路站)和刚刚通车的机场联络线,一纵一横高效对接上海高能级商圈及东西两大交通枢纽!
未来还可与在建的19号线、23号线实现无缝换乘,实现市区少有的四线轨交覆盖!
自驾层面,嘉闵高架、沪闵高架、虹梅高架与中环、外环及银都路共同组成高效路网,可快速通达城市各核心区域!
注:最终以政府相关部门的正式公告为准,开发商无法保证所有信息均与实际情况完全一致。
示意图
人文教育方面,双一梯队的闵行实验小学、莘松中学距离项目都在350米范围内,蔷薇小学、七宝中学附属闵行金都实验中学、上海市第二中学梅陇校区(上海市重点高中)、莘松中学的畹町校区等优质教育资源也基本在项目步行可达的范围之内!
免责声明:以上教育资源整理仅代表楼盘与学校的距离,该房屋所在项目暂未划分学区,开发商不对项目交房后所属学区、学校做任何承诺。教育资源分配或学校/学区划分以及学校的具体招生规则等请以政府相关主管部门、教育机构公开的最新信息为准。
闵行安高申陇院重磅官推好房-闵行安高申陇院2025年8月最新房价! 闵行安高申陇院楼盘最新详情-安高申陇院最新房价折扣-安高申陇院最新户型-周边配套详情上海安高申陇院可以买吗?为您解读闵行安高申陇院楼盘优缺点!
售楼处电话☎:400-8800-703【官方认证】
营销中心电话☎:400-8800-703【官方认证】✔️
✅项目暂不接受临时到访,过来参观样板房请记得提前来电预约!
加微咨询:180 1720 3845(加微,不要来电,备注楼盘名字)
医疗配套方面,华东医院(闵行分院)、复旦大学附属儿科医院等三家三甲综合性医院及社区卫生服务中心,全方位守护居民健康!
上海安高申陇院可以买吗?为您解读闵行安高申陇院楼盘优缺点!
售楼处电话☎:400-8800-703【官方认证】
营销中心电话☎:400-8800-703【官方认证】✔️
✅项目暂不接受临时到访,过来参观样板房请记得提前来电预约!
加微咨询:180 1720 3845(加微,不要来电,备注楼盘名字)
区域内的时尚商业更是丰富多元,从家门口的社区底商到1公里范围内的大润发、海梦一方等大型商业综合体,再到规划中的梅陇新中心与华泾西站 GIC 购物中心,百万方商业体量,满足日常所需的同时,紧跟潮流时尚!
示意图
最后,项目位于梅陇绿地与徐汇绿廊两大区级生态配置的交汇处,莘庄梅园、梅陇生态公园、春申公园、华泾公园、上海植物园、漕溪公园等各具特色的生态园林密布周边,仅最大的梅陇生态公园体量就高达约60万平米,项目周边的生态环境可见一斑!
▷▶闵行核心天时地利归一!
除了已经眼见为实的区域成熟配套和过硬产品力,超前的产品定位和选址逻辑,也使得安高申陇院成为独具超性价比的楼市潜力股!
首先,宏观视角下,梅陇地处闵行物理中心,作为闵行五大地区中心之一,担当闵行“中部崛起”战略重要承载,重点培育科技创新功能和树立城市门户形象!
上海安高申陇院可以买吗?为您解读闵行安高申陇院楼盘优缺点!
售楼处电话☎:400-8800-703【官方认证】
营销中心电话☎:400-8800-703【官方认证】✔️
✅项目暂不接受临时到访,过来参观样板房请记得提前来电预约!
加微咨询:180 1720 3845(加微,不要来电,备注楼盘名字)
同时,梅陇镇还是全上海距离中环最近的外环所在,绵延70公里的中环线在梅陇距离外环直线距离仅1.3公里,这一优势使其近距离直面徐家汇、前滩CBD、漕河泾开发区等中心城区,成为离尘不离城的完美居所!
对比同区位板块动辄10万+的房价,安高申陇院仅7万+的过会单价可谓性价比超群!
区位示意图
其次,微观到板块层面,安高申陇院项目所处更是梅陇镇的核心腹地!
项目东侧的梅陇新中心就是《梅陇镇"十四五"规划》的重中之重,规划总用地面积约127公顷,商务核心区总建筑量54.19万平方米,未来将建成地区级商业中心,与北部的华泾站 TOD 形成联动,共同开启梅陇高速发展的第二曲线!
▷▶告别7090领跑改善未来!
再到产品层面,安高申陇院从拿地之初,就站在了上海楼市转向“好房子”改善时代的风口!
自2024年3月上海取消7090政策后,安高申陇院作为首批集中供地项目,其产品规划充分契合市场需求!
项目中大户型配比约50%,与周边竞品小户型占比较高的产品结构形成差异化竞争!
同时,今年住建部最新提出的“好房子”标准,安高申陇院已抢先兑现!
今年3月住建部明确“好房子” 层高不低于3米的标准,项目1幢、5幢层高约3.05米,其余楼栋层高约3.1米,以超越未来改善标准的空间尺度,为业主带来更通透舒适的居住体验!
超前的产品定位使得小区业主群体更偏向改善型需求,居住人群更为纯粹,有助于提升小区整体居住品质和升值潜力!
同时,项目配置在整个闵行都是鹤立鸡群的存在,引领区域改善居住未来发展方向的同时,也势必将成为区域高端置业人群趋之若鹜的改善首选,在本就供不应求的梅陇板块,开启新的热销神话!
闵行安高申陇院重磅官推好房-闵行安高申陇院2025年8月最新房价! 闵行安高申陇院楼盘最新详情-安高申陇院最新房价折扣
上海安高申陇院可以买吗?为您解读闵行安高申陇院楼盘优缺点!
闵行安高申陇院重磅官推好房-闵行安高申陇院2025年8月最新房价! 闵行安高申陇院楼盘最新详情-安高申陇院最新房价折扣-安高申陇院最新户型-周边配套详情上海安高申陇院可以买吗?为您解读闵行安高申陇院楼盘优缺点!
售楼处电话☎:400-8800-703【官方认证】
营销中心电话☎:400-8800-703【官方认证】✔️
✅项目暂不接受临时到访,过来参观样板房请记得提前来电预约!
加微咨询:180 1720 3845(加微,不要来电,备注楼盘名字)
)
700万级起坐拥闵行核心成熟生活,抢鲜体验后7090时代“好房子”典范!更可乘区域规划和政策转向的市场风口!
如此稳定可期的改善市场版本答案实属难得!