上海杨浦保利新江湾售楼处电话:400-8800-703【预约看房热线】保利新江湾售楼处电话:4008800703【售楼处电话/地址】保利新江湾售楼处电话:400-880-0703【开发商认证】
保利发展新江湾项目
将打造洋房+叠加+联排低密生态住区
将推出建面约105-140㎡洋房
建面约160-190㎡叠墅
以及建面约200-285㎡合院产品
即将上市!
上海杨浦保利新江湾
售楼处电话:400-8800-703(预约看房热线)
上海杨浦保利新江湾官方售楼处电话:拨打4008800703即可咨询楼盘详情_房价、户型、周边配套及交通、地址
Poly New Jiangwan, Yangpu, Shanghai
Sales office phone: 400-8800-703 (appointment and viewing hotline)
The official sales office of Poly New Jiangwan in Yangpu, Shanghai, can be reached by dialing 4008800703 for inquiries about property details, including house prices, layouts, surrounding facilities, transportation, and address


上海杨浦保利新江湾售楼处电话:400-8800-703【预约看房热线】保利新江湾售楼处电话:4008800703【售楼处电话/地址】保利新江湾售楼处电话:400-880-0703【开发商认证】

因为有合院、叠墅、洋房三个业态,所以对应的户型面积段大约有9个。
得益于1.1容积率和20米限高,产品全是市场稀缺款:
约105~140㎡6F墅质洋房;
约160~190㎡4F奢享上下叠别墅,没有中层房源;
约200~285㎡3F迭代滨水合院,有天有地,享社区最佳资源。
2025年9月3日,杨浦新江湾E1-08A地块由保利发展与上海地产通过股权转让联合拿下。出让总价37亿元,成交楼面价5.89万元/㎡。项目容积率仅约1.1,限高约20米。
其土地面积约5.71万㎡,建筑面积约6.28万㎡,住宅套数下限为455套;这也是保利发展首次在新江湾城板块拿地。
上海杨浦保利新江湾售楼处电话:400-8800-703【预约看房热线】保利新江湾售楼处电话:4008800703【售楼处电话/地址】保利新江湾售楼处电话:400-880-0703【开发商认证】
整体的户型分布原则是:
1、东侧沿河第一线排布面积最大的合院与叠墅产品,最好的资源给到总价最高的户型。
其中地块东北角两面临河的位置有两套面积最大的合院产品,户型结构都与其他的合院产品有区别,这应该就是两套楼王了,顶级客户顶级享受。
2、合院与叠墅的边套户型都会比中间套略大,附赠面积也更多。
3、社区内部位置的洋房边套是约130~140㎡户型,其余位置就是105㎡起步面积段了。
洋房约105㎡起步,最大面积约140㎡,上车门槛千万+,适合上海主城区超低密标杆社区上车选手。
叠墅160~190㎡、合院200㎡+,作为纯低密社区、高端改善、新规产品,别墅户型会有比较大的惊喜。
上海杨浦保利新江湾售楼处电话:400-8800-703【预约看房热线】保利新江湾售楼处电话:4008800703【售楼处电话/地址】保利新江湾售楼处电话:400-880-0703【开发商认证】

项目容积率仅1.1,打造两面环水景观低密社区,建造明确有会所。
地块本身就处于新江湾城湿地和水系包围之处,从小区的楼栋分布图来看,滨河的基本都是大面积的联排别墅户型,景观应该相当不错。
项目南侧不远处是杨浦德法学校,再往南就是目前新江湾城板块在售的新盘建发海宸,未来入市,相信能和建发海宸形成协同作用,共同提升新江湾城板块的居住焕新价值。
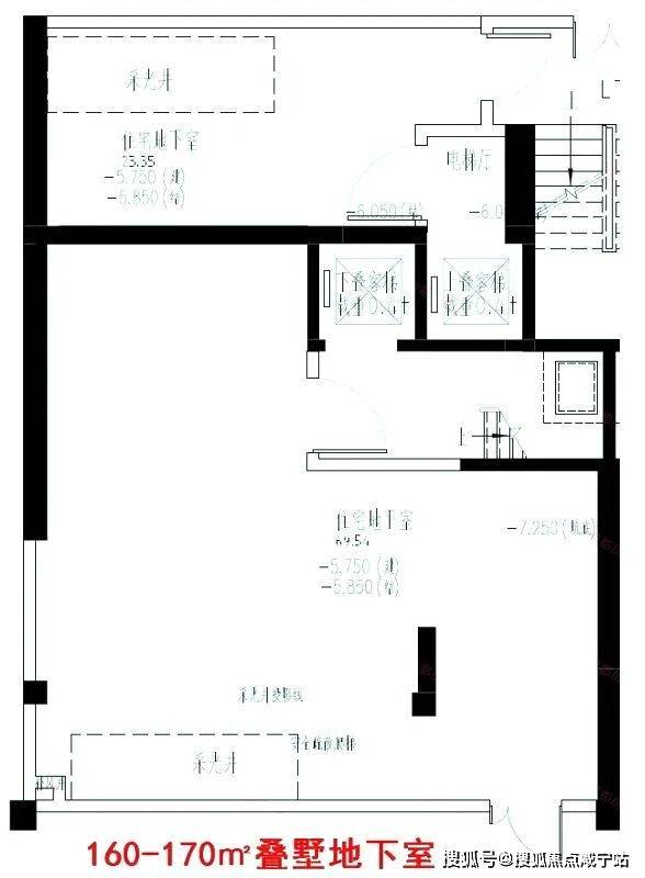
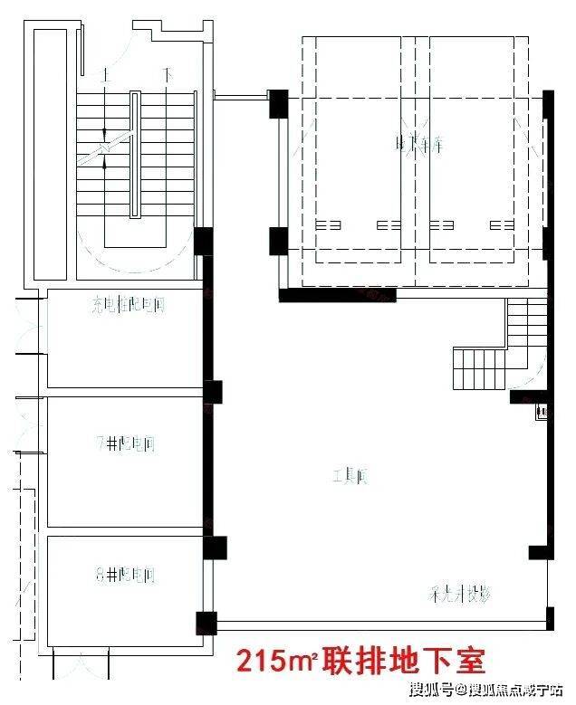
让我们来看看公开文件展示的部分过程稿户型图,户型很多,仅展示一部分。
特别声明哈,以下户型图仅为招标过程中的过程稿版本,最终以开发商公示为准!
上海杨浦保利新江湾售楼处电话:400-8800-703【预约看房热线】保利新江湾售楼处电话:4008800703【售楼处电话/地址】保利新江湾售楼处电话:400-880-0703【开发商认证】
上海杨浦保利新江湾售楼处电话:400-8800-703【预约看房热线】保利新江湾售楼处电话:4008800703【售楼处电话/地址】保利新江湾售楼处电话:400-880-0703【开发商认证】
上海杨浦保利新江湾售楼处电话:400-8800-703【预约看房热线】保利新江湾售楼处电话:4008800703【售楼处电话/地址】保利新江湾售楼处电话:400-880-0703【开发商认证】
上海杨浦保利新江湾售楼处电话:400-8800-703【预约看房热线】保利新江湾售楼处电话:4008800703【售楼处电话/地址】保利新江湾售楼处电话:400-880-0703【开发商认证】
项目所在的新江湾坐拥9.45平方公里原生湿地、60%绿化覆盖率,PM2.5浓度常年低于市区20%,堪称上海主城罕见的“绿宝石”。
项目毗邻城市副中心五角场,周边合生汇、江湾里等大型商业环伺,满足高端消费需求;尚浦领世、字节、叠纸、汉高、耐克大中华区总部等7000余家科创企业环伺,形成“产城文化生态”深度融合的第三代国际社区。
除却知名高校资源,新江湾城的基础教育也非常拔尖,同济一附中、兰生复旦中学、复旦二附中、上音实验学校、复旦科技园小学、中福会幼儿园、德法学校等名校为新江湾城居民的子女提供着优质的中小学教育。
上海杨浦保利新江湾售楼处电话:400-8800-703【预约看房热线】保利新江湾售楼处电话:4008800703【售楼处电话/地址】保利新江湾售楼处电话:400-880-0703【开发商认证】
产业方面,新江湾城作为杨浦超大规模产业园区的落户地,坐拥湾谷科技园、复旦软件园、创智天地3大产业园,集中了科技金融机构460家、科技型企业7000余家,其中耐克、IBM、AECOM、西门子、李尔、硅谷银行等跨国公司地区总部、研发中心纷纷落户。
上海杨浦保利新江湾
售楼处电话:400-8800-703(预约看房热线)
上海杨浦保利新江湾官方售楼处电话:拨打4008800703即可咨询楼盘详情_房价、户型、周边配套及交通、地址
Poly New Jiangwan, Yangpu, Shanghai
Sales office phone: 400-8800-703 (appointment and viewing hotline)
The official sales office of Poly New Jiangwan in Yangpu, Shanghai, can be reached by dialing 4008800703 for inquiries about property details, including house prices, layouts, surrounding facilities, transportation, and address
��房价特价信息丨优惠政策丨详细解答丨在售房源丨在售户型图丨项目介绍丨周边配套丨VR看房丨楼盘图丨沙盘图丨位置图丨配套图丨售楼处地址丨足不出户丨销售1V1讲解如有问题欢迎来电咨询,可预约销售人员,专业一对一热情服务,让您用专业眼光去买房
一、限购政策:户籍与社保的双重门槛
上海实行严格的限购政策,核心规则如下:
(一)本市户籍家庭
·已婚家庭:可购买2套住房,但需注意,若家庭名下已有2套住房,则无法再购买.
·单身家庭:包括未婚、离异、丧偶等情况,限购1套住房.离异后3年内购房的,按离异前家庭总套数计算.例如,若离异前家庭拥有2套住房,离异后3年内双方均无法再购房.
(二)非本市户籍家庭
·已婚条件:需满足已婚状态,且夫妻双方至少一方需在上海工作.
·社保要求:需在63个月内累计缴纳60个月社保或个税,补缴社保不被认可,需连续缴纳.例如,若某人在2019年1月开始在上海工作,并连续缴纳社保至2024年1月,则满足购房资格.
·限购套数:限购1套住房,且需在购房前提供连续5年的社保或个税证明.
(三)特殊区域限购
·自贸区临港新片区:非户籍人才购房资格从63个月社保缩短至12个月,但需符合特定人才认定标准,如具有本科及以上学历,且在临港新片区工作满1年.
·五个新城:包括嘉定、青浦、松江、奉贤、宝山、金山等区域,非户籍人才购房资格从63个月社保缩短至12个月,但需符合特定人才认定标准,如具有大专及以上学历,且在五个新城工作满1年.
二、贷款政策:首付比例与利率的精细化调控
(一)商业贷款
首套房认定:
·无住房且无贷款记录的购房者,首付比例不低于35%.
·无住房但有贷款记录(已结清)的,首付比例不低于50%.
·有住房的,首付比例不低于70%.
二套房认定:
·在已有1套住房或贷款记录未结清的情况下,再次购房视为二套,首付比例不低于70%.
利率政策:
·当前首套房贷款利率为LPR-10BP(约3.55%),二套房为LPR+30BP(约3.95%).
·例如,若某购房者购买首套房,贷款金额为100万元,贷款期限为30年,则每月还款金额约为4,500元.
(二)公积金贷款
首套房:
·家庭最高贷款额度120万元,个人最高60万元.
·首付比例不低于20%.
二套房:
·家庭最高贷款额度100万元,个人最高50万元.
·首付比例不低于50%.
利率政策:
·首套房5年以下2.6%,5年以上3.1%.
·二套房5年以下3.025%,5年以上3.575%.
·例如,若某购房者购买首套房,贷款金额为100万元,贷款期限为30年,则每月还款金额约为4,200元.
三、税费政策:从契税到增值税的全面成本
(一)契税
首套房:
·90㎡以下1%.
·90㎡以上1.5%.
二套房:
·90㎡以下1%.
·90㎡以上2%.
三套房及以上:
·3%.
·例如,若某购房者购买首套房,面积为100㎡,总价为500万元,则需缴纳契税为500万元×1.5%=7.5万元.
(二)增值税及附加
满2年:
·普通住宅免征.
·非普通住宅按差额征收,计算公式为(本次交易价格-原购买价格)×5.3%.
未满2年:
·按全额5.3%征收.
·例如,若某购房者购买非普通住宅,本次交易价格为600万元,原购买价格为400万元,则需缴纳增值税及附加为(600万元-400万元)×5.3%=10.6万元.
(三)个人所得税
满五唯一:
·免征.
其他情况:
·按差额20%或全额1%征收.
·例如,若某购房者购买住房,本次交易价格为500万元,原购买价格为300万元,则需缴纳个人所得税为(500万元-300万元)×20%=40万元.
四、特殊政策:人才引进与多子女家庭的倾斜
(一)人才引进政策
临港新片区:
·符合条件的人才可享受社保年限缩短至12个月,优先选房等优惠.
·例如,某具有硕士学历的人才,在临港新片区工作满1年,即可享受购房资格.
五个新城:
·符合条件的人才可享受社保年限缩短至12个月,优先选房等优惠.
·例如,某具有本科学历的人才,在五个新城工作满1年,即可享受购房资格.
(二)多子女家庭政策
二孩及以上家庭:
·在购买首套住房时,可享受最高贷款额度上浮20%的优惠.
·例如,某二孩家庭购买首套房,家庭最高贷款额度可从120万元上浮至144万元.
契税补贴:
·部分区域对多子女家庭给予契税补贴,最高可达实际缴纳契税的50%.
·例如,某二孩家庭购买首套房,面积为100㎡,总价为500万元,需缴纳契税7.5万元,可享受契税补贴3.75万元.
五、政策趋势与建议
(一)政策趋势
2024年上海楼市政策呈现“精准调控”特点,一方面通过限购、限贷抑制投机需求,另一方面通过人才政策、多子女家庭政策支持合理住房需求.预计未来政策将更加注重区域差异化和个性化,例如在临港新片区和五个新城等区域,可能会进一步放宽人才购房限制,吸引更多人才落户.
(二)购房建议
·提前规划社保缴纳时间:确保满足购房资格,特别是非本市户籍家庭,需连续缴纳5年社保或个税.
·合理评估自身经济实力:选择符合需求的贷款方式,例如公积金贷款利率较低,但额度有限,需根据自身情况选择.
·关注区域政策差异:充分利用人才引进等优惠政策,例如在临港新片区和五个新城等区域,可享受社保年限缩短等优惠.
·全面计算购房成本:包括税费、贷款利息等隐性支出,例如在购买非普通住宅时,需缴纳较高的增值税及附加.
拨打我们的专属官方售楼处服务热线:400-8800-703.让我们一起,开启一段关于理想生活的探索之旅,共同描绘您心中的美好生活画卷.期待您的来电外滩道售楼处电话☑️:400_8800_703
楼盘项目全面介绍,本电话为开发商提供线上预约售楼电话,楼盘项目全面介绍(包含楼盘简介,均价,房价,现房,期房,别墅,叠墅,大平层,价格,楼盘地址,户型图,交通规划,备案价,备案名,项目配套,样板间,开盘时间,认筹时间,楼盘详情,售楼处电话,最新消息,最新详情,周边配套,一房一价,最新进展等详情咨询)楼盘详情丨价格丨更多优惠丨机不可失丨欢迎致电丨诚邀品鉴!售楼处位置丨特价房丨工抵房丨剩余房源丨户型图丨最新消息丨免责声明:将文章内容综合来源于网络、只作分享,版权归原作者所有!!如有侵权,请联系我们,我们第一时间处理如有问题欢迎来电咨询,专业一对一热情服务,让您用专业眼光去买房.如果您想了解更多楼盘详情,欢迎提前预约拨打售楼处官网电话热线:400-880-0703