



【开篇:理性购房者的必读指南】
华润华发·时代之城火了整整一年多,但越是红盘,越需要理性看待。作为购房者,我们不能只看销售数据,更要深入了解项目的真实优缺点,找到最适合自己的户型。
今天,我们就从价格、户型、优缺点、适合人群四个维度,为你带来时代之城的最全购房攻略。

【价格分析:475万起,性价比到底如何?】
时代之城最新批次(十二批次)过会均价60186元/㎡,总价475万起。这个价格,在外环外是什么水平?
对比同价位板块:
松江某新盘:均价6.3万/㎡,周边3公里内无大型商场,孩子上学需跨区
青浦某项目:均价6.1万/㎡,距离地铁1.5公里,通勤不便
闵行浦江:均价6.5万/㎡,配套成熟度不如南翔
时代之城的优势在于:用同样的价格,享受"现成的便利"。步行3分钟到山姆,5分钟到印象城,900米到地铁站,周边学校、医院、公园齐全。这种"即买即享"的成熟度,是远郊新盘无法比拟的。
户型价格区间:
92㎡高层:475-550万
104-120㎡高层:550-720万
133㎡高层:720-840万
143-177㎡叠墅:1200-1629万
【户型深度评测:哪款最适合你?】
92㎡三房一卫:刚需上车盘
适合人群:新婚夫妻、小家庭、预算有限的首次购房者
优点:总价低,三开间朝南,上车门槛低
缺点:只有一个卫生间,早上可能"抢厕所";次卧仅7.5㎡,略显局促
购买建议:适合短期内没有二胎计划的家庭,或作为过渡性住房
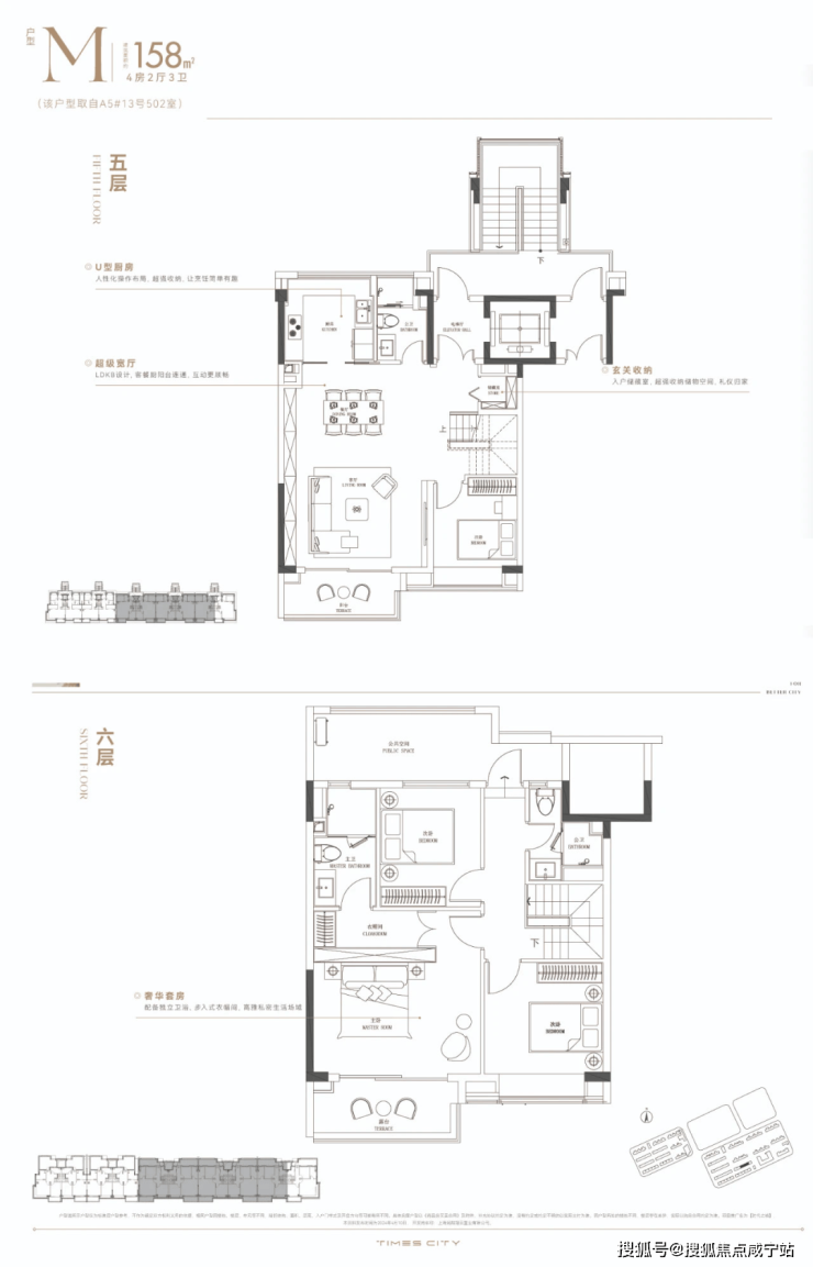
104㎡三房两卫:性价比之王(强烈推荐)
适合人群:有孩子的家庭、改善型购房者
优点:南北通透,主卧带独立卫浴,得房率78%,总价适中
缺点:阳台进深仅1.3米,晾晒后几乎无剩余空间;厨房门对客厅,可能有油烟问题
购买建议:这是项目最热销的户型,无论是自住还是投资,都是最稳妥的选择。建议选高楼层,视野更佳。
120㎡三房两卫:改善升级之选
适合人群:预算充足的改善家庭、对居住品质有要求的三口之家
优点:空间更阔绰,居住舒适度高,功能分区更合理
缺点:总价高出72万,性价比不如104㎡突出
购买建议:如果预算允许,这个户型的居住体验明显提升,适合长期自住
133㎡四房两卫:二胎/三代同堂必备
适合人群:二胎家庭、三代同堂、需要独立书房的改善家庭
优点:四房设计,功能齐全,一步到位
缺点:总价较高,如果家庭成员不多,可能造成空间浪费
购买建议:适合家庭结构复杂、对房间数量有硬性需求的家庭


从地图上可以看到,自驾可通过嘉闵高架、沪嘉高速公路、外环高速、中环高速,快速通达全城。沪嘉—嘉闵联络线已经开工,主线采用双向六车道建设规模,今年将持续稳步推进建设,计划2025年四季度建成通车。
标杆商业环伺 同频国际潮流
国际大城,繁华璀璨。项目与沃尔玛山姆会员店,仅一路之隔;直距约34万方印象城MEGA约900米。周围汇聚五彩城、太茂商业广场、中冶祥腾城市广场等商圈,时尚潮流聚集地,同频都会先进生活。

生态景观中轴 栖心城市绿洲
项目靠近云翔湖(规划中),将打造南翔未来生态核芯。未来将规划云翔景观中心,打造花园江休闲景观轴,包含蕰藻浜水上乐园、绸带公园、横沥河文化生态廊道等。
生态绿肺:留云湖(涵盖约17万方湿地公园)、银翔湖(水域面积127亩,绿化率超过80%)、云翔湖(以湖为核心,打造多个水系及景观带,规划中);
特色文旅:南翔古镇、古猗园等,与文化共融、与自然相近,感受上海历史风情。


知名学府云集 护航精英未来
与时代之城关系亲密的世外教育附属嘉定云翔小学已经开学,5个年级、50个班级,可容纳近2000名学生,两侧被时代之城所包围,从航拍就能感受到气魄。

南翔二甲医院 护航健康生活
南翔医院,始建于1948年,建筑总面积近32000平方米,是一所集医疗、教学、预防、康复于一体的二级甲等综合医院,是嘉定区医保和新农合定点医院;可开车前往嘉定瑞金医院;还有云翔拓展社区卫生服务中心(在建)。高品质医疗,为健康保驾护航。

叠墅产品(143-177㎡):终极改善之选
适合人群:高净值家庭、追求私密性与尊贵感的终极改善客
优点:得房率超120%,居住体验接近别墅,社区密度低、环境安静
缺点:总价1200万起,上叠需爬楼,下叠可能潮湿,中叠价格最高
购买建议:适合预算充足、追求高品质生活的家庭。建议实地考察,根据家庭生活习惯选择上、中、下叠。




样板间实拍
建面约89-133㎡墅区高层/小高层户型
「约89㎡ 3房2厅1卫」高层25层

「约107㎡ 3房2厅2卫」高层边套

「约108㎡ 3房2厅2卫」小高17层

「约133㎡ 4房2厅2卫」小高边套

阔府空间叠墅,高私密性电梯入户
项目创新性地提出来“下叠+中平+上叠”的规划理念,打造了彻底动静分离的上下复式叠墅和平面尺度感更强的平墅。
叠墅一梯两户私密入户,搭配社区森林花园级景观,每位业主都有林中密墅的居住体验。



样板间效果图仅供参考
建面约132-170㎡精装叠墅






【优点总结:为什么它能成为销冠?】
央企开发,品质保障:华润+华发,资金安全,交付无忧
配套成熟,即买即享:山姆、印象城、地铁,全部现成
交通便利,通勤可控:30分钟到人民广场,25分钟到虹桥
产品力强悍,精装标准高:600万级享受豪宅配置
户型设计合理,覆盖全周期:从刚需到改善,总有适合你的
大体量社区,内部配套完善:2万方商业+1万方社区服务中心
【缺点分析:哪些坑需要避开?】
地铁步行距离稍远:到11号线陈翔公路站约900米,步行需12-15分钟。对于依赖地铁且对步行距离敏感的客群,建议实地体验。不过小区门口有嘉定111路公交,1站到地铁站,骑行仅4分钟,可弥补这一短板。
部分楼栋临近商业街区:可能受到一定的商业噪音影响。开发商已采用三层中空隔音玻璃等措施,建议对噪音敏感的客群实地感受后再做决定。
教育资源短期有短板:周边学校不是嘉定顶尖名校,但自带幼儿园2026年开学,九年一贯制学校2027年招生,长期有改善空间。如果孩子近两年就要上学,需提前规划。
叠墅总价较高:下叠总价约1500万,对普通改善家庭压力较大,更适合终极改善客群。
【购房建议:不同人群怎么选?】
首次购房者(预算500万左右):
首选92㎡三房,上车门槛低,享受同等的社区配套
如果月供压力不大,建议咬咬牙上104㎡,两卫的实用性远超一卫
改善型家庭(预算600-700万):
104㎡是性价比最高的选择,南北通透,功能齐全
如果追求更大空间,120㎡的居住体验明显提升
二胎/三代同堂(预算700-850万):
直接上133㎡四房,一步到位,避免后期换房成本
终极改善(预算1200万以上):
叠墅产品是外环外稀缺的高端住宅,居住体验远超平层
建议根据家庭习惯选择上叠(露台)、中叠(大平层)或下叠(花园)
【结语:理性决策,量力而行】
时代之城确实是一个综合实力强劲的项目,但它并非完美无缺。作为购房者,我们需要根据自己的预算、家庭结构、通勤需求、教育规划,做出理性的选择。
记住:没有最好的房子,只有最适合的房子。建议实地看房,多看几次,白天看采光,晚上听噪音,周末体验商业氛围,工作日测试通勤时间。只有充分体验,才能做出不后悔的决定。
时代之城十二批次正在火热认购中,建面约104-177㎡高层/叠墅,均价60186元/㎡。如果你正在寻找外环外的高品质住宅,它值得你去看看。