目前房源详情
项目公共10栋楼
1号楼6600㎡,目前万科教育在租用
2~10号楼都是小独栋办公别墅
(其中5、6号已售)
特价房,7号独栋别墅
毛坯,一口价:1800万
不用认筹,无税费,无需等待可直接付定!
本项目位于闵行区七宝古镇板块,周边紧邻上海西部最大的虹桥枢纽和上海南站,同时本案处于虹桥商务区、漕河泾开发区、上海会展中心、与七宝最大商圈的核心位置,毗邻七宝最为密集的居住区域13万常驻入口。另外沪星路往西500米即可到达G50沪渝高速。
【项目基本信息】
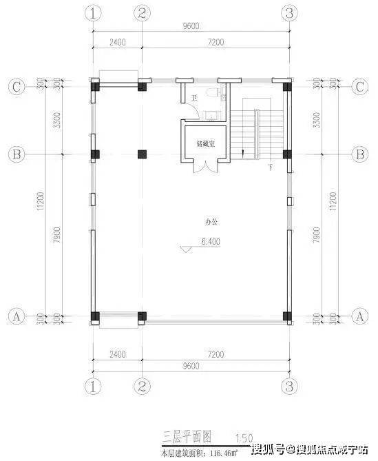
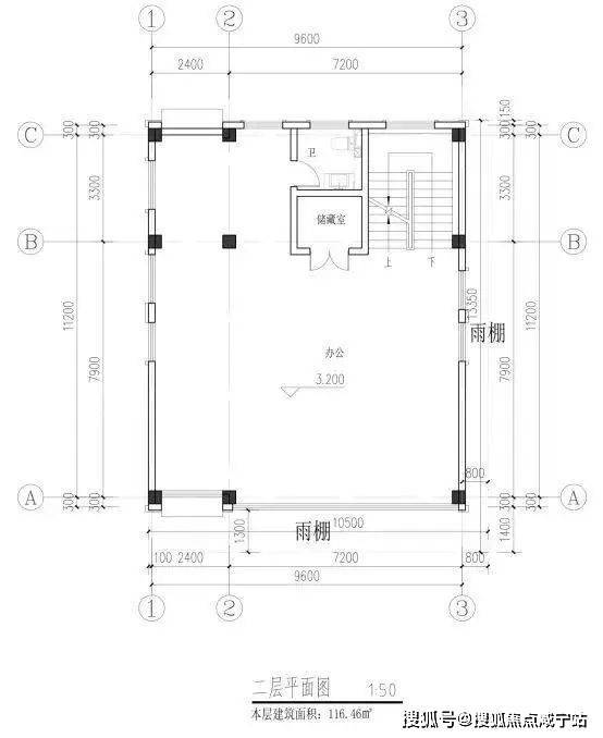
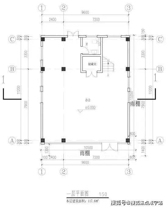
独栋面积:356平
总价:1800万-2200万
交房:2021年年底、现房
产品类型:小独栋
电费:1元/度
水费:6元/吨
物业费:15元/平
层高:约3.3米
样板房




【项目十大优点】
1.不限购不限贷、独立空间、私密性强
2.小独栋,地上三层、屋顶花园
3.大虹桥枢纽、商务、会展中心辐射圈
4.距离项目500米五所高端及国际学校
5.距离机场火车站3公里自驾五分钟
6.紧邻七宝古镇最为繁华密集的大型商圈
7.得房率高、落地玻璃幕墙
8.骑行十分钟到达地铁9号线、10号线
9.自驾3-10分钟7个高速3个高架闸道口
10.综合交通,五维立体交通体系,通往世界的“登机口”,世界近在咫尺。