【“华润华发·时代之城”——置业新高地,豪宅生活的梦想实景!】上海南翔的华润华发「时代之城」,以其超前设计和国际化灵感引领时尚墅居趋势。项目分两期开发,推出90-135㎡高层/小高层和132-170㎡精装叠墅。配套设施齐全,生活便利,且装修标准高达2500元/㎡,保证了产品的卓越品质。对于追求高品质生活的家庭而言,这里不仅是居住地,更是社交和生活品质的象征。

预计二期7月18日取证认购
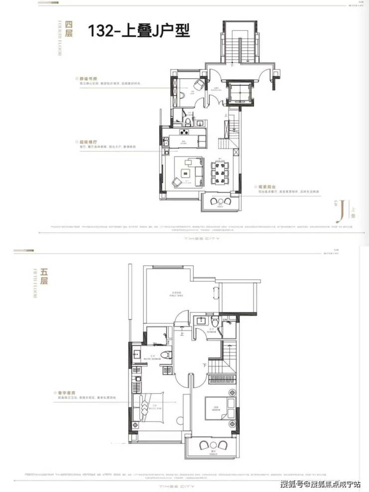
加推建面约106-108-133m²3-4房(高层)
建面约130-168m²叠墅
均价65799元/㎡,加推房源141套


在这个喧嚣的都市中,总有一些地方能让人感受到安静和品质的另一面,华润华发「时代之城」就是这样一个地方。位于南翔的这个项目,不仅处于上海中心生活圈,更以其独特的设计和周到的配套设施,吸引了无数目光。
「时代之城」的设计灵感来源于国际地标奢宅,采用简约而不失时尚的建筑风格,如极简线条的垂直一体化设计,以及选用天青色铝板和超大面玻璃窗,构成了清新简约、摩登前卫的建筑气质。而居住在这里的人们,将体验到一种全新的墅区高层/小高层生活方式,这不仅仅是一个居所,而是一个配备完善,可以享受社交乐趣的社区。
2
推售信息
据楼盘营销经理描述,华润华发·时代之城 二批次将推约109/133㎡高层&132/141/165/158/170㎡叠加,共计141套房源,均价65799元/㎡,7月18日认筹!
二批次即将加推建面约140-170㎡精装叠墅&109-133㎡墅区小高层。高层/小高层+叠墅这样的“高低配”形态,则意味着整个社区拥有更低的天际线,更大的楼间距,更佳的景观视野,更舒适的居住体验。
而丰富的户型产品线,也能完美契合各类购房者需求。
2批次全套户型图发布:
时代之城还特别重视居住者的生活品质与便利性。项目内不仅有广阔的社区配套空间,还包括各类商业设施和学校、医院等公共服务设施。这里的装修标准也非常高,每个单位的装修费用不低于2500元/㎡,显示出华润对产品质量的高要求。对于那些想要在繁华都市中寻找一处安逸之所的人来说,「时代之城」无疑是一个不可多得的好选择。
豪华精装,星级酒店级生活模式
华润置地时代之城可是是超越普通精装的奢装交付。
值得一提的是项目叠墅产品同样是精装交付,省去了业主装修别墅的大笔金钱、时间投入。
门锁为耶鲁或同等档次品牌的智能锁;
法国进口奢石白雪公主玉石玄关柜台面;
全屋智能系统、中央空调新房地暖三大件配齐;
厨房配置了西门子(或同档次品牌)灶台、油烟机、方太(或同档次品牌)洗碗机、弗兰卡(或同档次品牌)水槽以及凉霸;
卫生间更是配备了美妆冰箱、高仪(或同档次品牌)花洒,主卫配有松下(或同档次品牌)智能一体马桶。
3
周边配套
1.南翔核心位置,大虹桥、市区近在眼前
南翔是嘉定面对市区乃至大虹桥的门户位置,既有强有力的产业规划,又拥有成熟优质的城市烟火。

华润置地时代之城所在的南翔板块的核心云翔湖片区,更是城市界面崭新,环境更宜居;项目到核心市区的距离也很近,虹桥商务区仅约2公里,距离人民广场仅约19公里。
示意图仅供参考

2.紧邻山姆会员店,近在咫尺的顶级商圈
项目与上海第五家山姆会员店仅隔一条马路,有网友开玩笑说住这边点山姆外卖10分钟就能到家。
图源网络

约34万方的超大体量商场印象城MEGA(约34万方)距离项目直线仅约800米。
图源网络
此外还有嘉定大融城、中冶祥腾城市广场、华润五彩城、太茂商业广场四个大型购物中心。
全市顶级的商业中心,业主们可以直接走着去,再也不用担心停车难、地铁挤的问题。
3.11号线真地铁盘,便捷交通无噪音
华润置地时代之城距离11号线直线仅约900米,对于高架式地铁这个距离刚刚好,不会太远步行可达,也不至于太近没有噪音烦恼;
11号线更可以与十余条轨交线路换乘,到达徐家汇、前滩、迪士尼等多个重要城市节点;
同时,项目自驾也十分方便,拥有两横三纵的立体交通,全市各个角落,随时通达;
示意图仅供参考
4.教育、医疗、景观资源环绕,便捷安心的居住氛围.
除了商业、交通,华润置地时代之城其他方面的生活配套也很齐全,孩子教育、老人就医、生态休闲等生活的方方面面都有万全的准备,城市的高级烟火触手可得
教育方面,嘉定区教育局更是上海世外教育集团已达成签约合作,未来云翔湖的教育资源将是世外主打;
嘉定世界外国语学校(民办九年一贯制)距离项目直线仅约2公里;
上海世外教育集团托管的云翔小学距离项目约1.8公里;
投资约 1.56亿元人民币的嘉程路中学新建工程,距离项目仅约250米,是一所24班规模的初中;
此外附近还有南翔小学、南翔中学、怀少学校(民办九年一贯制)等众多教育资源,还规划有16块规划的教育用地,包含幼儿园8块、小学3块、初中3块、高中2块(新房不保障学区,仅周边教育资源罗列)
嘉定世外图源网络

医疗方面上海交通大学附属瑞金医院距离项目直线仅约4.5km。
瑞金北院图源网络

在这个快节奏的社会中,有了「时代之城」这样的居住环境,仿佛按下了生活的暂停键,给忙碌的都市人一个放松身心的空间。华润华发用心打造的这个项目,不仅体现在建筑的精致和环境的优美,更重要的是,它对居住品质的极致追求。一个好的居住环境,不仅能提供温馨的家园,还能成为彰显个人品味和生活态度的舞台。
「时代之城」以其卓越的地理位置、时尚的建筑设计和丰富的社区生活,成为了城市中的一片绿洲,吸引了众多寻求高品质生活的人士。无论是建筑风格的现代感,还是生活配套的丰富性,都在告诉我们,这不仅仅是一个居住的地点,更是一个享受生活、体验品质的综合体。如果你也想要在这样的环境中找到属于自己的一席之地,「时代之城」定会是你不容错过的选择。