
✅✅安澜上海售楼处电话:400-8800-703✅✅徐汇滨江顶豪【安澜上海】二批次加推3号楼,仅51套建面约238/275㎡大平层,均价17.9万/㎡;项目已开盘,3月劲销22.6亿,另前期少量房源在售,总价3800-5300万;可直接认购,样板间开放中,线上提前预约!


✅✅安澜上海售楼处电话:400-8800-703✅✅当上海内环顶豪市场步入全新竞争周期,真正能穿越周期、获得高净值人群一致认可的作品,从来只用业绩说话。3月,安澜上海劲销22.6亿,以断层式领先优势,成为上海顶豪市场当之无愧的风向标。
✅✅安澜上海售楼处电话:400-8800-703✅✅2026年上海楼市新政落地,核心区顶豪市场迎来价值重构。在激烈的竞争中,安澜上海以绝对领跑姿态,交出了一份现象级成绩单。
✅✅安澜上海售楼处电话:400-8800-703✅✅市场的一致选择,从来不是偶然。从全国总价地王的先天禀赋,到新规之下的产品革新,再到顶豪生活方式的全新升维,安澜上海的热销,是地段、规划、产品三大维度全面领先的必然结果,更是上海顶豪从“地段资源占有”到“生活方式占有”的全新范式升级。

✅✅安澜上海售楼处电话:400-8800-703✅✅据悉:徐汇滨江顶豪【安澜上海】建面推出约192-370㎡稀缺大平层,及4套建面约420㎡及2套560㎡顶楼复式,带来近百平的超大全景舱、三面采光客厅、空中花园等罕见户型设计,其中二批次推出约238/275㎡新品户型,均价17.91万/㎡;目前已开盘,以当月劲销22.6亿优越成绩,完美收官;在新政之下,该项目异常火爆!目前还有少量房源在售,总价3800万起,样板间开放中,线上提前预约!


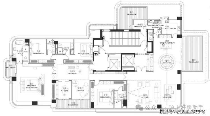
✅✅安澜上海售楼处电话:400-8800-703✅✅建面195㎡3+1房的户型产品。其约40㎡大方厅,5米×8米尺度舒适,居住舒适度拉满;环幕总面宽约39米,采光面远超普通住宅;约88%高实得率,含私享电梯厅;南北通主卧+双主卧套房设计。

✅✅安澜上海售楼处电话:400-8800-703✅✅建面约238㎡四房三卫全景舱户型,全屋约46 米全景采光周长,客厅打造连续约 17 米三面采光界面,成就 IMAX 级环幕视野,搭配3.45米奢阔层高,让自然光无死角渗透;朝南双主卧套房搭配全屋六大系统化收纳空间,兼顾家族居住的私密性。
✅✅安澜上海售楼处电话:400-8800-703✅✅建面245㎡户型四房两厅三卫,以约53㎡超级环幕客厅,视野无敌;环幕总面宽约46米,三面采光;主卧带约41㎡空中花园,晨起即景,双主卧设计,次卧也享270°视野。


✅✅安澜上海售楼处电话:400-8800-703✅✅建面约275㎡4+1 房户型,以约22 米南向极致面宽,实现了超越市面 400㎡级大平层的采光尺度,约 80㎡奢阔餐客通厅搭配 7.2 米客厅开间,形成无界通透的社交聚场,既容得下三餐四季的烟火日常,也撑得起家族宴请的排场体面。
✅✅安澜上海售楼处电话:400-8800-703✅✅建面约280㎡4+1 房户型,以约72㎡LDKB一体化厅,家庭互动核心;环幕总面宽约51米,南向面宽达22米; 主卧配套齐全:衣帽间+空中花园;灵动空间可改造,适应多元需求。

✅✅安澜上海售楼处电话:400-8800-703✅✅建面约370㎡4+1全景舱户型,更是将光与空间的融合做到了极致。全屋约60 米超长采光周长,以环幕级采光界面,让阳光成为空间的原生底色;约80㎡全景舱大方厅,无界贯通的空间格局,实现了家庭欢聚、圈层社交的全场景适配。三套独立全功能房设计,保障居住的私密性与尊崇感,完美适配多代同堂的家族居住需求,成为可世代传承的塔尖恒产。
✅✅安澜上海售楼处电话:400-8800-703✅✅2025年9月,中海、招商、徐汇城投、中旅四家国央企以439.5亿的总价成功拿下上海徐汇东安地块(125 - 31,127b - 24),项目案名“安澜上海”, 总价超越香港中环地王,成为“全球新地王”。安澜上海的底气,源于四大国央企的实力背书与绝版地段的先天优势。中海、招商蛇口深耕地产多年,顶豪营造经验丰富;徐汇城投深谙本土文脉与城市规划,中旅投资加持文旅与品质运营,四方强强联手,以严苛标准打磨产品,摒弃市场快周转模式,只为打造传世级滨江奢宅。


✅✅安澜上海售楼处电话:400-8800-703✅✅项目雄踞徐汇区东安路核心板块,东至枫林路、南至中山南二路、西至规划路、北至零陵路,直线距黄浦江仅约400米,坐拥1.4公里黄金S湾江景,占位西岸金融城规划核心,承接徐汇滨江千亿产业、艺术、商业红利,是内环内罕见的纯高端滨江住宅地块,地段稀缺性无可复制,资产价值天花板清晰可见。
✅✅安澜上海售楼处电话:400-8800-703✅✅项目总体量约80万方,其中规划约3万平方米商业街区与约8000平方米全龄社区配套,成为整个社区的生活超级底盘。
✅✅安澜上海售楼处电话:400-8800-703✅✅安澜上海携手gad、CCD郑中设计、梁志天设计集团、无间设计、LSD、召禾、承迹、翊象设计等近20家国内外一线设计机构共同参与打造。如此多元且顶尖的设计力量联合发力,不仅能让抬板更高级,还能将更多全球前沿的设计理念融入其中,让安澜上海的“抬板”不仅是功能升级,更成为上海顶豪产品的设计标杆。

✅✅安澜上海售楼处电话:400-8800-703✅✅整层抬板设计:约4米的高差抬板让地面空间与地下空间彻底分层。三层归家动线:从地面景观层到架空层,再到入户层,穿越绿植、光影与水景,步步进入私域。阳光地库与下沉花园:通过挑空与天井引光,将自然光线引入地库和会所空间。大尺度楼间距与中央绿谷:楼间距约70米、中央绿谷约4000平米,让整个社区在城市高密度中仍拥有视野与空气的流动性。
✅✅安澜上海售楼处电话:400-8800-703✅✅项目上层则为悬浮的“浮岛花园”住宅区,住宅组团如“浮岛花园”悬浮于城市之上,实现真正意义上的人车分流与立体绿化。

✅✅安澜上海售楼处电话:400-8800-703✅✅立面设计采用大量的玻璃幕墙和金属材质,增强建筑的通透感和现代感。

✅✅安澜上海售楼处电话:400-8800-703✅✅项目打造了层次丰富的立体景观,通过抬板、立体庭院、下沉式绿化与建筑第五立面的融合,项目营造出了一个充满生机与活力的自然生态社区。
✅✅安澜上海售楼处电话:400-8800-703✅✅【安澜上海】依托整体抬板的超前规划,打造了上海内环内罕见的“超级生活底盘”,构建起一套完整闭环的顶豪生活体系:

✅✅安澜上海售楼处电话:400-8800-703✅✅约3万方高阶街区商业,汇聚潮奢品牌、精致餐饮、休闲社交业态,打造下楼即达的高端生活场;

✅✅安澜上海售楼处电话:400-8800-703✅✅约5500㎡高定双会所,涵盖约50米恒温泳池、雪茄吧、私宴厅、瑜伽房、SPA空间、室内高尔夫等多元功能,围绕园林景观庭院布局,成为高净值圈层的专属社交主场;
✅✅安澜上海售楼处电话:400-8800-703✅✅约8000㎡全维社区配套,覆盖全龄段生活需求,搭配网球场、篮球场、社区剧场等高阶文娱空间,让老中青幼每一位家庭成员,都能找到专属的生活乐趣。

✅✅安澜上海售楼处电话:400-8800-703✅✅商业、会所、邻里配套层层互补,生活、社交、消费、运动的全场景需求在家门口就能满足,这是传统小盘顶豪根本无法企及的配套厚度。
✅✅安澜上海售楼处电话:400-8800-703✅✅世界级滨水封面的核心承载区徐汇滨江凭借天然S湾岸线与核心段龙头地位,成为上海超越发展周期的黄金轴。作为徐汇滨江罕有的成片整体开发区域,安澜上海项目与西岸金融城共同擘画约260万方核心CBD,以“双地王”规模划界世界级卓越水岸的磅礴图景。
✅✅安澜上海售楼处电话:400-8800-703✅✅产业动能:全球资源聚合的未来经济引擎项目依托漕河泾人工智能基底、下游数字谷与传媒港的产业培植力,以及枫林生命科学资源,吸引阿迪达斯大中华区总部、Lululemon中国总部等标杆企业落户。
✅✅安澜上海售楼处电话:400-8800-703✅✅超65万方甲级办公集群与290米地标双子塔,进一步强化前沿产业集聚效应,推动区域经济能级持续跃升。
✅✅安澜上海售楼处电话:400-8800-703✅✅配套能级:定义全球标杆的滨水生活范式交通配套:紧邻地铁4/7/12号线,步行可达东安路站,自驾紧邻内环高架、龙耀路隧道,15分钟直达徐家汇,30分钟通达陆家嘴、虹桥枢纽,立体路网覆盖全城,商务通勤、跨江出行高效便捷。商业引力:自带3万方高阶商业,步行可达正大乐城、绿地缤纷城,近邻在建西岸金融城24万方重奢集群,徐家汇、淮海路商圈环伺,高端消费、日常购物、圈层宴请一站式满足。
✅✅安澜上海售楼处电话:400-8800-703✅✅全龄教育:周边汇聚宋庆龄学校附属徐汇实验小学、南洋模范中学、南洋中学等优质学府,从幼儿园到高中全龄覆盖,文脉底蕴浓厚,护航子女成长。

✅✅安澜上海售楼处电话:400-8800-703✅✅医疗顶配:3公里内涵盖复旦大学附属中山医院、肿瘤医院、龙华医院等顶级三甲医院,15分钟健康保障圈,为家人健康保驾护航。
✅✅安澜上海售楼处电话:400-8800-703✅✅生态人文:步行可达徐汇滨江步道、东安公园,近邻龙美术馆、西岸艺术中心等一众艺术地标,坐拥徐汇滨江“文化岸线”底蕴,闲暇时漫步江滩、观展打卡,在城芯繁华中兼得自然生态与艺术氛围,居住格调拉满。
✅✅安澜上海售楼处电话:400-8800-703✅✅安澜上海首期入市便凭借绝版地段、先锋产品与顶奢配置,创下热销佳绩,市场认可度拉满。此次二批次加推,延续项目纯改善大宅定位,推出建面约195-370㎡全景舱大平层,少量顶层环幕定制大宅同步上线,席位依旧稀缺。在徐汇滨江宅地断供、顶豪房源供不应求的当下,二批次加推是入主内环滨江地王项目的难得窗口期,兼具自住舒适度与资产保值力,席位分秒递减,抢占正当时。
