闵行龙湖天街旁 面积232平
项目具体参数
开发商:龙湖地产
所属板块:闵行马桥旗忠别墅区
产品类型:管家式大平层
建筑面积:232㎡
均价:3.1万
总价:720
是否装修:毛坯(可精装,具体案场详谈)
拿地时间:2016年10月
竣工时间:2019年7月
交房时间:现房
梯户比:两梯两户
容积率:1.0
绿化率:35%
物业公司:龙湖
物业费:7.5元/㎡/月
总层高:13层
车位比:1:2
燃气:5.18元/立方
电费:平:0.95元左右/度 谷:0.49元左右/度
水费:6元/吨
▍核心卖点
1、品质墅区:马桥高端别墅区,古北壹号&翠湖同款,建面232㎡不限购通燃气大平层+3.3层高+15.4米超大面宽客厅
2、上海唯一在售类住宅围合式封闭豪宅社区,约10平米电梯入户厅,2T2H私密直达入户
3、意式潮奢风格/葡萄牙米黄地铺石/奢华/时尚
4、功能会所:总统套房、会客厅、餐厅、雪茄吧、茶室、ktv、棋牌室、榻榻米、桌球、乒乓、Xbox、桌游、室内帐篷服务,奢华享受。
5、商业环伺:3公里范围拥有几十万方大型商业综合体:龙湖星悦荟、万科满天星生活广场、马桥万达、龙湖天街、寰悦广场、仲盛世界广场。
6、四轨交汇聚马桥(规划):形成北有虹桥,南有马桥的格局枢纽。
7、产业加持:上海紫竹国家高新开发区,定位世界一流科创园区,世界级千亿规模,人工智能创新发展新高地
8、国际赛事密集区域,1800亩森林体育公园,旗忠网球中心,旗忠高尔夫球场,殿堂级酒店养云安缦酒店,高端教育配套,多所知名国际名校
▍样板房展示
▍区位优势明显 人工智能 产业加持 潜力强劲
成熟社区 配套齐全
交通配套
地铁:5号线华宁路站约1.5km;四轨交汇形成枢纽(规划数据来源于主城综合轨道专项规划):嘉闵线延伸段、19号线延伸段、23号线延伸段、东西联络线。
自驾:嘉闵高架、沪金高速、虹梅南路高架 沪昆高速、申嘉湖高速、沪闵高架
公交:闵行17B路、闵行29路、闵行37路、闵行37路区间(约300米)等,公交线路可直达地铁5号线马桥、颛桥站贯穿马桥各区域
高铁:距离上海虹桥枢纽站(高铁、机场)约20km,车程仅需25分钟
商业配套
万达广场(距离约1km)
万科满天星生活广场(距离约100m)
龙湖星悦荟(距离约100m)
龙湖天街(距离约3km)
联仲商业广场(在建 距离约3km)
医疗配套
>距离项目约0.5公里马桥社区卫生服务中心
>距离项目约3公里上海市第五人民医院
>距离琐目约8公里上海市闵行区中心医院
>距离项目10公里中国福利会国际和平妇幼保健医院
>距离项目10公里复旦大学肿瘤医院分院
>距离项目10公里上海中医药大学附属龙华医院
>距离项目10公里新华医院(在建)
>瑞金医院迁移至闵行(规划)
教育配套
>上海德威英国国际学校
>上海闵行区德闳学校(德威姊妹学校,同享德威资源,招收国内学生)
> 斯代文森国际学校
>上海美高双语学校
>交大附属闵行马桥实验学校
>华东理工大学附属闵行科技高级中学
>马桥文来外国语小学
>马桥复旦万科实验中心
>启英幼儿园
>华东师范大学第二附属中学
休闲配套及生态资源
旗忠国际高尔夫球场、养云安缦酒店、旗忠国际网球中心、马桥森林体育公园。
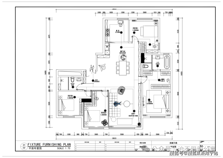
▍户型图(1)鉴赏
▍户型图(2)鉴赏

沪新房分享
,赞2
预约咨询热线:400-960-1656☎, 加微咨询:139 1616 5691(加微,不要来电,备注楼盘名字)