
体量6套
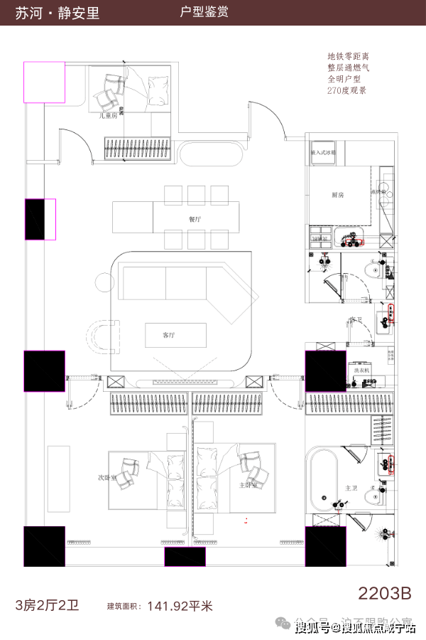
全明户型
层高:3.2米
装修风格:诧季风和复古的装修风格
产权年限:50年
交房标准:精装交付
物业费:10元/㎡/月
得房率:75%
在售面积:117-141平米
水电燃气:水 6 元/吨 电1元/度左右 燃气4.5/立方米
总高:22层
梯户比:3梯6户
车位60个,停车费800元
三条轨道交通
内环内,城市中心,核心商务区
位于城市主干道,环线,快速连通人民广场、南京路、徐家汇各大顶级商务区
毗邻苏州河,感受宁静与悠闲
项目位置
距离地铁1号线、3号线、4号线上海火车站400米,3轨交互
靠近北横通道入口,南北高架,内环高架
项目产品优势
1.户型优势:全明户型,采光好;
2. 交通便利:靠近北横通道,南北高架,内环高架,离地铁1号线、3号线、4号线上海火车站400米;
3. 生活便利:周边商场5分钟直达,去附近医院,学校很方便;
商业配套
•环龙商场300米(太阳City,凯德星贸,JiC静安国际中心)
•南京西路商圈2.5公里
•人民广场商圈3公里
•静安寺商圈3.5公里
•上海市静安中心医院1.5公里
•同济大学附属普陀人民医院1.5公里
•上海长征医院2公里(三甲)
•上海市中医院2.5公里(三甲)
总平面图:

效果图
户型图:

