在嘉兴科技城新房均价突破2万/㎡的当下,绿地云缦世家以130㎡四房总价320万起(首付30%约96万)的极致性价比,成为G60科创走廊上罕见的“青年精英孵化器”。项目不仅是科技城南翼的“轨交现房”,更以全龄教育+精工收纳系统,重构年轻家庭的生活想象力!

【小户型革命:130㎡里的四房奇迹】
空间魔术:三开间朝南+双飘窗全赠送,实得面积堪比140㎡竞品;独立玄关+“S型隐藏收纳墙”,扩容30%储物空间】。
精装越级配置:标配西门子烟灶、日立中央空调、威能地暖,装标成本2500元/㎡(竞品普遍≤1800元/㎡)。
健康黑科技:迪耐克新风系统PM2.5过滤率99%,甲醛浓度低于国标50%。
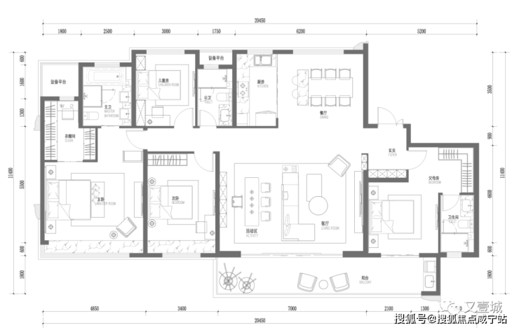
建面约210㎡的终极改善户型。

这是非常标准的“大面宽短进深”的黄金户型格局,东西面宽约20.45米,南向宽阔4+1开间。
不算阳台,进深仅9.6米,整体面宽比超过2.13:1,当世绝品。光照好的时候,一天下来,估计整屋80%的面积都能都到阳光直射。

推门而入,就能看到一整个约7m长的大方厅,通透感极强。
可以很任性的容纳下整个家庭需要的公共空间需求。随手摆上一架钢琴,生活的高贵油然而生;或者开辟一个小型的运动室,铺上瑜伽垫、放上跑步机,就着城市星光点点,挥洒汗水。

餐厅区域的宽阔尺度,超乎我的想象,放得下一张6人长款餐桌的同时,还能在一侧打造西厨吧台和餐边柜,西式生活的惬意自然油然而生。
这种朝南无柱宽幕客厅的设计,即使是精装房,仍能随着业主生活的不同需要,进行空间的不断升级,实现全龄段生活的可能!

主卧面宽约4.85米,总面积超39㎡,完全媲美传统140㎡级户型的客厅尺度,妥妥的豪宅顶配。
主卧外,一侧的老人房同样是星级套房格局。转角大型衣帽间+约3.4米的卧房+朝南内卫的1+1开间舒适格局,自带生活的仪式感。

宽阔4+1开间,朝南20.45米面宽
南北通透,餐厅独立采光
独立玄关入户
朝南约10.4米跑道式阳台
五星级双套房
一堆优点的枚举,我总结一句话:
即使在大平层户型层出不穷的当下,云缦世家这款建面约210㎡的大平层户型,仍能稳居市区前三甲之列。
NO. 4|肆
除了面积段和产品的突破,云缦世家为板块带来的,还有实打实的高装标。
回望这么多年来,科技城鲜有精装大平层。
做精装本就需要勇气,做精装大平层,更需要勇气。
大到设计理念、空间规划、装修用材,小到主卧套房的衣帽间、卫生间、亦或是储藏室,都需要为业主考虑到极致,客户才会愿意买单。
绿地香港通过深研嘉兴人居习惯,为云缦世家打造了独一无二的户型装标和生活设计,带来品质人居空间的代表作品。
我们从精装品牌、人性化设计、公区设计三个方面,展开描述。

➤ 精装品牌
云缦世家的装标品牌,几乎是不计成本的清一色国际一线品牌堆叠。
日立中央空调、德国威能地暖、狄耐克新风三件套齐备;
蒙娜丽莎的客厅、厨房墙地砖,南阳艺家的主卧地板;
西门子燃气灶+油烟机两件套;
迪曼斯顿前置+后置净水器,美国百年净水品牌;
厨房龙头、台盆,卫生间台盆、坐便器、龙头、花洒等,品牌清一色的均是西班牙乐家。
一个比较小众,绝对高端的品牌。在同类产品的卖价上,是远超TOTO、科勒的存在。
这个装标,放在一线城市都称得上出类拔萃,在嘉兴,则可以称为“降维打击”。
➤ 精装细节
好的精装设计,仅靠品牌的堆叠是不够的,生活的体验才是更为重要的存在。
显然云缦世家考虑到了这点,在保证了大品牌运用的同时,真正站在服务业主的角度,设计了数十个精装细节。随便站在哪个维度,都能感受到ta的匠心。

入户门采用钢制子母门。
同级别的子母门售价大概是普通门的1.3-1.5倍。
并且云缦世家不仅做到了子母门,还在门扇上做了木纹和图案装饰,更显高贵大气。

大横厅上方采用双层吊顶设计,吊顶内设置的整体光源大概有三层,筒灯+吊顶内环绕灯带+中央主灯(预留灯座)。
地面使用定制款的蒙娜丽莎非标90砖,更大气,成本更高。

厨房采用石英石台面。造价高,美观耐用,适配多种风格……
台下盆为嵌入式,做了弯角处理,打理和耐用性大大增加。

➤ 公区设计
入户公区,嘉兴top级标准打造。
特选高级灰为主色调,墙面深色云纹砖铺装,以“窄边细框”的金属线条勾线;地砖石材花纹的1.2*0.6m蒙娜丽莎哑光砖,加了双层波打线。
整个空间静谧而高贵,与五星级酒店的入户大堂无异。

电梯厅两侧嵌入灯带,按钮上方更是竖直拉槽艺术玻璃造型,增加艺术感。
顶部吊顶区域做工精细,做了双层吊顶设计,每一层都有石膏造型,彰显奢华。
【10分钟科创生活圈】
需求解决方案
通勤霸权:沪嘉城际+内环高架科技大道入口直达嘉兴市区,直抵沪杭
教育无忧:社区内12班幼儿园+清华附中(东侧1200米)
生态疗愈:槜李湖公园(800米)+社区万方中央草坪晨跑
绿地香港云缦世家择址科技城南板块,云集嘉兴教育“天花板”资源,周边汇聚清华附中、亚欧实验学校等学府,高阶人群在此比邻而居,组成了优质的生活圈,孩子亦会从小耳濡目染,涵养不凡气度。

孩子可以一起在社区内玩耍、学习、奔跑……在与小伙伴嬉戏玩闹的同时,结交自己的小圈层,构筑社区社交纽带,成就下一代人生主场。

持有成本测算:月供1.1万(贷款30年)- 预估租金0.6万 = 净支出0.5万,低于嘉兴核心区租房成本!
结语:在飘窗书桌前,眺望科创城的晨曦
云缦世家以“产业人口红利+装标越级+轨交效率”,撕碎长三角青年的安家焦虑。
青年计划启动:7天内签约享98折!
预约咨询热线:400-960-1656☎, 加微咨询:139 1616 5691(加微,不要来电,备注楼盘名字)