上海保利海上印楼盘全面介绍!一文读懂上海保利海上印优缺点!分析一下上海保利海上印值得买吗?上海保利海上印2025上海新房聚焦 买过的业主进来聊聊!
保利·海上印中环旁约2.5km,15号线地铁房徐闵芯·学府旁·央企领创新作
大面积玻璃+铝板线条高颜值立面约1500㎡下沉会所+约1400㎡架空层等高阶配置
保利·海上印三批次168套建面约108-149㎡3-4房即将加推
实景示范区下周开启预约接待兴趣伙伴下方可扫码对接官方预约参观咨询


上海保利海上印楼盘全面介绍!一文读懂上海保利海上印优缺点!分析一下上海保利海上印值得买吗?上海保利海上印2025上海新房聚焦 买过的业主进来聊聊!
开发商官方热线电话☎:400-8800-703【官方认证】
售楼处电话☎:400-8800-703【官方认证】
营销中心电话☎:400-8800-703【官方认证】✔️
✅项目暂不接受临时到访,过来参观样板房请记得提前来电预约!
加微咨询:180 1720 3845(加微,不要来电,备注楼盘名字)
进“保利·海上印”官方预约咨询通道
销售会第一时间与您联系
项目信息
保利海上印是与甲第系同级别的豪宅图谱—— 「印」系新作,天生就是站在舞台中央的主角,使命就是突破梅陇人居上限的新标杆!标杆产品力前所未有
一个板块只需要一个标杆,因为它代表着板块至高产品力。
去之前小编期待中带点质疑,但是看完展厅现场,详细了解产品和配置后得出结论:凭什么它是板块标杆?
答案一:因为保利置业「印」系首秀,产品力前所未有!
建筑、园林、会所全面领先,让大家见识到保利置业的标杆决心。
1) 建筑标杆 :塑造梅陇全新天际线
到底是不是标杆,外立面是第一条件,也代表着二手市场能否保值。
保利·海上印汲取经典Art-Deco风格,采用更雅致的香槟金搭配暖灰配色,大面积玻璃搭配铝板、石材,弧形顶冠设计颇具辨识度。
未来方便大家了解他们的立面,小编特地做了一个示意图展示,保利海上印完全是板块全新的靓丽天际线,代表板块未来的门面担当。
保利·海上印13-14层小高层,实现更宽敞的楼栋距,为业主提供更加静谧的环境,也带来更加舒适的采光和居住体验。
社区呈现中轴对称,拥有上海罕见的约180米长景观长廊,并通过大面积的风雨连廊和架空层串联。
社区内部有多个大型集中景观,不仅有下沉式庭院,还有大规模的集中绿地,让所有业主都能享受到度假休闲感。

上海保利海上印楼盘全面介绍!一文读懂上海保利海上印优缺点!分析一下上海保利海上印值得买吗?上海保利海上印2025上海新房聚焦 买过的业主进来聊聊!
开发商官方热线电话☎:400-8800-703【官方认证】
售楼处电话☎:400-8800-703【官方认证】
营销中心电话☎:400-8800-703【官方认证】✔️
✅项目暂不接受临时到访,过来参观样板房请记得提前来电预约!
加微咨询:180 1720 3845(加微,不要来电,备注楼盘名字)
上海保利海上印楼盘全面介绍!一文读懂上海保利海上印优缺点!分析一下上海保利海上印值得买吗?上海保利海上印2025上海新房聚焦 买过的业主进来聊聊!
开发商官方热线电话☎:400-8800-703【官方认证】
售楼处电话☎:400-8800-703【官方认证】
营销中心电话☎:400-8800-703【官方认证】✔️
✅项目暂不接受临时到访,过来参观样板房请记得提前来电预约!
加微咨询:180 1720 3845(加微,不要来电,备注楼盘名字)


2) 会所标杆 :下沉式会所搭配主题架空层
会所是社区的里子,也代表着社区的圈层。
很难想象一个400多户的小区,保利·海上印大手笔规划了约1500㎡的下沉式会所,人均资源密度板块首屈一指。
未来业主在社区内部,就能实现包括会客厅、健身房、恒温泳池等完整功能,享受高端生活品质。
尤其是光廊设计引入室外阳光,泳池游泳也能享受阳光温暖,进一步将尊贵体验感拉满。
更让人期待的是,他们规划了四大主题约1400㎡人文主题架空层,让全龄业主下楼就能体验社区生活,架空层规模也是春申前所未有。
上海保利海上印楼盘全面介绍!一文读懂上海保利海上印优缺点!分析一下上海保利海上印值得买吗?上海保利海上印2025上海新房聚焦 买过的业主进来聊聊!
开发商官方热线电话☎:400-8800-703【官方认证】
售楼处电话☎:400-8800-703【官方认证】
营销中心电话☎:400-8800-703【官方认证】✔️
✅项目暂不接受临时到访,过来参观样板房请记得提前来电预约!
加微咨询:180 1720 3845(加微,不要来电,备注楼盘名字)
无论是小朋友玩乐嬉戏、年轻人运动锻炼、中年人休闲会客、老年人放松散步,都能在社区内找到合适场景。
海派美学车库塑造高品质、人性化地库,顶面融汇铝格栅、定制线条灯带,营造驾车归家的高级仪式感。这次项目一次性拿出了1#、12#、13#三幢楼,共推出168套房源,供应量大,可想而知三批次的“友好度”。
毕竟对于前期摇号运气不佳的朋友来说,这次能获得更大的买到概率~首先来看1#,南向无遮挡,采光和日照优越,北向有庭院花园,同时东侧是学校,边套转角窗主卧的视野无敌,价值极高;西侧可看中央景观主轴。
其次13#,同样南向无遮挡,低区与高区采光都优越;东侧靠近中央景观轴,北侧是庭院景观,整体的楼栋位置较优,同时因为位于南侧,预计性价比相对较高;重点是12#,纯大户型楼栋,相当于社区楼王之一!北侧楼下是横向主景观轴,可直接享受花园景观,东侧靠近中央景观轴,朝北可看下沉会所+社区核心景观;

上海保利海上印楼盘全面介绍!一文读懂上海保利海上印优缺点!分析一下上海保利海上印值得买吗?上海保利海上印2025上海新房聚焦 买过的业主进来聊聊!
开发商官方热线电话☎:400-8800-703【官方认证】
售楼处电话☎:400-8800-703【官方认证】
营销中心电话☎:400-8800-703【官方认证】✔️
✅项目暂不接受临时到访,过来参观样板房请记得提前来电预约!
加微咨询:180 1720 3845(加微,不要来电,备注楼盘名字)
另外这个楼栋位于社区中央位置,整体更静谧。其中约149㎡单元是黄金四角位置,是整个社区位置价值最高的楼栋之一,享受最好的静谧环境和内部社区资源。
从产品层面来看,几个户型的价值也很突出:
首先,本次约108㎡小户型收官加推!约800w级上车板块标杆机遇,错过不再!南向无遮挡、低区采光通风也无需担忧,性价比相当突出!
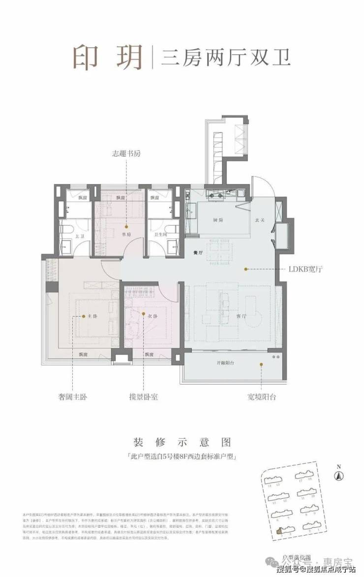
建面约108㎡3房收官户型
年轻家庭舒适改善户型!
动静分区、三开间朝南设计,相当人性化!
“S”墙设计巧妙收纳冰箱;
客厅面宽约4.85米,厨房、餐厅、客厅及阳台一体化设计,尺度感十足!
边套户型主卧为270°转角飘窗,采光与视野的IMAX级体验!
全飘窗设计,有效延伸室内空间,更具灵动感~甚至保利置业还通过对建筑结构的优化,实现了飘窗相较于普通尺度约50%的拉宽,从而释放出了更多的空间。
其次,约128㎡,是整个上海目前1000-1100万能买到的集合优质热点板块+优质品质标杆+积分盘+央企的4房机会,价值点不容小觑!
建面约128㎡4房2厅2卫
年轻家庭、二胎家庭舒适户型!
动静分区、四开间朝南设计,相当人性化!
独立入户玄关,进门收纳、仪式感十足!
整个户型南向面宽约13.8米,南向采光面相当优越!
南北直通,厨房、餐厅、客厅及阳台一体化设计,空间更通透!
厨房附赠飘窗,可增加实用面积;
边套主卧为270转角飘窗、步入式衣帽间套房设计,尊崇感满满!
阳台更是全景玻璃幕墙,视野相当震撼!
最后约149㎡则是整个上海都稀缺的大尺度改善4房,并且享有社区中央黄金四角位置优势,占据社区更优质资源享受~
建面约149㎡4房2厅2卫
128户型的进阶版本,总价可控,满足各类家庭改善居住~
类一梯一户,享独立电梯厅!
入户玄关收纳出门物品,仪式感相当不错!
南向四开间,三卧室朝南,居住舒适度拉满;
客厅面宽约5米,南北通透,空间感十足!
厨房同样附赠飘窗,增加更多实用空间;
边套主卧更是进阶版270转角飘窗套房设计,主卫带大浴缸,各空间尺度感更强!
上海保利海上印楼盘全面介绍!一文读懂上海保利海上印优缺点!分析一下上海保利海上印值得买吗?上海保利海上印2025上海新房聚焦 买过的业主进来聊聊!
开发商官方热线电话☎:400-8800-703【官方认证】
售楼处电话☎:400-8800-703【官方认证】
营销中心电话☎:400-8800-703【官方认证】✔️
✅项目暂不接受临时到访,过来参观样板房请记得提前来电预约!
加微咨询:180 1720 3845(加微,不要来电,备注楼盘名字)
值得注意的是,建面约128㎡和149㎡,未来仅剩楼王位置,价格必然更贵,这次有门槛优势,机遇难得!超配精装标准匠心满满!
最终我们看保利海上印的装标,也直接被拉到了板块内的天花板。入户的铸铝门+奢石+耶鲁密码锁,这样的配置同频于内环内3000万级的豪宅!室内精装采用大面积简一密缝砖、圆弧形艺术吊顶、高级的岩板背景墙,选材和工艺上尽显诚意!市区约12w+豪宅才有的Miele厨电+博世冰箱,水灵灵地出现在保利海上印,标配Miele油烟机/灶台/洗碗机,博世冰箱,3M末端净水、欧普凉霸、瑞美热水器、高仪厨盆及龙头等厨电八件套!这在同级新房市场几乎绝无仅有!
项目主卫则是配置唯宝智能坐便器,这是20万+/㎡豪宅的御用品牌,足见诚意。五金洁具及淋浴花洒则使用全球排名前十的德国高仪品牌,另配备镜柜内含美妆冰箱,可以说是配置拉满了!诚意上无可挑剔~
进“保利·海上印”官方预约咨询通道
销售会第一时间与您联系
板块信息
为什么选择徐闵?
保利·海上印择址徐闵未来中心版图,坐享上海发展红利。
城市中心赋能,资源有保障!
要知道,在700-900万级新房市场,梅陇是当之无愧的爆点板块。
据网上房地产数据显示,2024年至今700-900万赛道,梅陇板块的新房成交套数可谓一枝独秀,名列第一断层领先! 700万级买新房,梅陇是毫无疑问的优先选择!

你一定好奇:700-900万是新房成交主力段,凭什么梅陇能杀出重围?
原因很简单,相比其他同纬度板块,梅陇板块真的是一块充满活力的生活热土!
①首先是产业环绕,高精尖人群集聚!
梅陇周边有3大国家级产业区、5大科创中心、12大科创园、3000+企业,直线距离约7公里范围内拥有漕河泾开发区、紫竹高新技术产业园等科创基地。据悉,漕河泾开发区有望入住梅陇,为增强闵行中部地区科技创新活力。
如此多的产业势能汇聚,梅陇能不火吗?!②其次,梅陇的交通格局正在升维!

上海保利海上印楼盘全面介绍!一文读懂上海保利海上印优缺点!分析一下上海保利海上印值得买吗?上海保利海上印2025上海新房聚焦 买过的业主进来聊聊!
开发商官方热线电话☎:400-8800-703【官方认证】
售楼处电话☎:400-8800-703【官方认证】
营销中心电话☎:400-8800-703【官方认证】✔️
✅项目暂不接受临时到访,过来参观样板房请记得提前来电预约!
加微咨询:180 1720 3845(加微,不要来电,备注楼盘名字)
在以往的文章中惠房宝多次强调,1条地铁贯通的板块只能成为跟随者,成为睡城。而只有多条轨交聚集的板块,才能成为城市新枢纽。
你看梅陇,15号线(已通车)、19号线(在建中)、机场联络线(即将通车)3轨交汇。再加上虹梅路高架直插中环外环,南侧银都路越江隧道2024年年底建成后,可直通“浦东金色中环”。
如此庞大的交通网络,几乎让梅陇吸引着全城的高精尖人才!

项目距离地铁15号线景西路站约800米,拥有虹梅高架路、沪金高速等快速路。
③最后海量的工商业配套正在兴起!
交通网络打通后,必然是新秩序的建立。
根据规划,在项目周边将建设约400万方商业、办公。包含约60万方梅虹南路TOD、约81万方华之门规划、约36万方华鑫天地、约67万方华泾站上盖等4座城市TOD。这样惊人的大手笔一旦兑现,梅陇板块城市界面将带来颠覆性的提升!

作为梅陇板块的正C位,以上梅陇的重磅规划利好,项目都尽在掌握的!

商业方面,项目周边有兴梅路尚乐坊、绚荟城、海梦一方、麦多生活广场等成熟商业,还有四大TOD将带区级商业中心。

教育方面,就在保利海上印北一路之隔,闵行梅陇 越秀仁恒天樾园和对口学校划定:闵行实验小学景城校区+莘松中学春申校区:
上海保利海上印楼盘全面介绍!一文读懂上海保利海上印优缺点!分析一下上海保利海上印值得买吗?上海保利海上印2025上海新房聚焦 买过的业主进来聊聊!
开发商官方热线电话☎:400-8800-703【官方认证】
售楼处电话☎:400-8800-703【官方认证】
营销中心电话☎:400-8800-703【官方认证】✔️
✅项目暂不接受临时到访,过来参观样板房请记得提前来电预约!
加微咨询:180 1720 3845(加微,不要来电,备注楼盘名字)
春申板块的越秀仁恒天樾园和,2023年三次均触发积分,且全部开盘日光。
这两个学校,都是本地一梯队,闵实验景城校区和莘松中学春申校区的组合,对买房者来说,是对梅陇板块学校资源的预期兑现。
虽然虽然新房不承诺学区,但无疑能够最终对口优质的教育资源,还是让人喜上眉梢。
免责声明:以上教育资源整理仅代表楼盘与学校的距离,该房屋所在项目暂未划分学区,开发商不对项目交房后所属学区、学校做任何承诺。教育资源分配或学校/学区划分以及学校的具体招生规则等请以政府相关主管部门、教育机构公开的最新信息为准。

上海保利海上印楼盘全面介绍!一文读懂上海保利海上印优缺点!分析一下上海保利海上印值得买吗?上海保利海上印2025上海新房聚焦 买过的业主进来聊聊!
开发商官方热线电话☎:400-8800-703【官方认证】
售楼处电话☎:400-8800-703【官方认证】
营销中心电话☎:400-8800-703【官方认证】✔️
✅项目暂不接受临时到访,过来参观样板房请记得提前来电预约!
加微咨询:180 1720 3845(加微,不要来电,备注楼盘名字)