户型图如下:
(过程稿仅供参考,最终以实际为准)





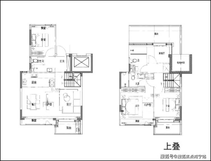
叠墅户型图如下:
(过程稿,以开发商发布为准)
10月25日,上海市第六批涉住地块供地中,闵行区MHP0-1316单元01-03、01-02、03-02地块,东至浦星公路,南至姚家浜,西至大寨河,北至昌林路。
项目分为三个住宅地块开发。
01-02地块规划约524套可售住宅,无保障房拟建8栋17-18F高层住宅。
以及若干社区配套用房,全部为两梯四户带连廊;地面无车位,全人车分流,规划有风雨连廊以及大量的架空层,预计打造泛会所概念(公共活动空间);
01-03地块规划约466套可售住宅
地块拟建9栋17-18F高层住宅、1栋20F保障房以及若干社区配套用房;其中1#为两梯三户带连廊、4#、6#、8#为一梯两户,其余楼栋为两梯四户带连廊;
03-02地块为别墅产品,其中叠墅约147套,联排约35套
该地块拟建4栋7F多层住宅、4栋4F住宅、5栋3F多层住宅以及若干社区配套用房,其中4-7F住宅为叠墅,3F住宅为联排。
天空之镜 精致铝板装饰+通透大窗的美学立面设计,打造弧面窄框艺术之境。
流线韵律 弧线同频超流体美学,让建筑流淌出黄浦江的奔腾韵律。
全景视角 创新270°的弧面转角建筑美学,营造多感官的沉浸式全景视野。
宋式美学 取古韵予现形,转译东方三段式建筑形态,打造“宋式极简”风格。
林岛漫步 围绕中央景观,以现代艺术手法,打造森林岛屿景观
循水归岸 呼应外部天然水系,内部设置特色水景,串联不同节点
闲庭雅致 以树木、水系与局部连廊体系融合,共同组建起社区与居所之间的联通介质
另外配置下沉式庭院、约2500㎡地下会所以及约3000㎡主题架空层;其中地下会所包含泳池、健身房、瑜伽室、水吧区、私宴厅等!
浦江恒流,上海恒新。上海迈向卓越全球城市的进程,始终沿着黄浦江展开。黄浦江作为上海重要功能轴,至2035年将黄浦江沿岸打造成为彰显上海城市核心竞争力的黄金水岸和具有国际影响力的世界级城市会客厅。
作为上海中心城辐射区,闵行六大地区中心之一,前滩南门户,浦东四大城镇圈之一,浦江地区中心占据特有的平台区位优势。
新浦江中心沿袭闵东文创中心定位,以蓝绿环绕为基底,历史人文为内涵,产业更新为驱动,新浦江中心将衔接闵行与浦东新区,打造黄浦江沿岸崭新的生态交织、文化自信、产城融合能量聚集地。
新浦江新中心将围绕沈杜公路TOD打造创智总部湾、大型商业、艺术街区、文化展览、滨水码头、高端住宅等,以世界前沿Live-Work-PlayShop模式,为上海打造高度复合等职住平衡10分钟生活圈。
项目距离8号线沈杜公路站步行约350-600米左右,可快速直达前滩、陆家嘴等核心区域,也算是项目一大卖点;通过浦星公路可直接上南北高架,自驾出行也十分便捷!
商业方面,项目高层东侧规划约15万方的商业,该商业地块应于住宅一并打包出让,共同组成真正的TOD项目,但目前做了拆分!另外距离项目约3.3公里有浦江城市生活广场、绿地乐和城,约3.9公里有万达广场、4.4公里有浦江欢乐颂等商业!
教育方面,项目周边规划有一幅幼儿园用地,参考周边,未来项目对口浦江镇第二小学、第二中学的概率较大,教育资源一般;
另外在项目北侧规划有一所民办学校,该校舍建成后,将迁入上海市民办协和尚音学校(九年一贯制)、上海闵行协和海富幼儿园,由协和教育中心举办。
医疗方面,距离项目约4公里有仁济医院南院以及复旦大学附属眼耳鼻喉科医院。
生态方面,项目周边被浦江郊野公园环绕,低密宜居。