看房需提前预约!
上海佘山「上坤樾山壹号」售楼处电话: 400-960-1656
如有问题欢迎来电咨询,来电即可享受买房优惠!预约来电尊享购房优惠,可预约案场内部销售人员,专业一对一热情服务,让您用专业眼光去买房
看房需提前预约!
上海佘山「上坤樾山壹号」售楼处电话: 400-960-1656
如有问题欢迎来电咨询,来电即可享受买房优惠!
项目基本信息
看房需提前预约!
上海佘山「上坤樾山壹号」售楼处电话: 400-960-1656
如有问题欢迎来电咨询,来电即可享受买房优惠!
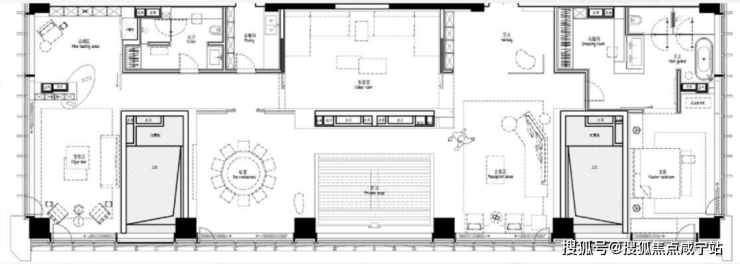
超大尺度客餐厅, 落地玻璃窗,奢享美景无限;
豪华套房主卧,独立衣帽间与主卫,私密尊享;
X-space,自由创意趣味生活想象。


另外也放上几张项目样板间实拍,不得不说大师手笔,还是有一定道理的。
交通配套方面:双轨交樾山国际生态城地铁9号线800米佘山站,地铁12号线延伸(环评公示)800米洞泾站;

教育资源方面:社区自带K12(全龄制)教育用地,宋庆龄学校,协和双语,包玉刚实验学校、上海西外外国语学校,赫德双语;
医疗资源方面:上海市第一人民医院南院(3级甲等)、社区医院(在建);

发展红利方面:国家级规划--长三角G60科创走廊成为具有重要国际影响力的科创企业策源地、具有世界竞争力的高科技产业集聚带、产城深度融合的世界级科创走廊、同时也是西部高科技人才聚集区,G60科创走廊将托举起中国制造迈向中国创造的璀璨光带。
看房需提前预约!
上海佘山「上坤樾山壹号」售楼处电话: 400-960-1656
如有问题欢迎来电咨询,来电即可享受买房优惠!预约来电尊享购房优惠,可预约案场内部销售人员,专业一对一热情服务,让您用专业眼光去买房