中建·玖上琅宸 (售楼处) 首页 - 玖上琅宸销售中心 - 环境 - 户型 - 价格 - 地址 - 楼盘详情 - 配套 - 电话 - 交房时间 - 配套 - 电话 - 交房时间

咸宁楼市发布

2025-11-16 12:55:00

购房群

买房如何避坑,加入购房群,看看他们怎么说

立即进群

【首开售罄】中国公园豪宅1号作品——中建玖上琅宸

中国公园豪宅1号作品 中建玖上琅宸 首开售罄

二批次建面约128-410㎡ 浓荫园邸新品

预约咨询热线:400-960-1656☎, 加微咨询:139 1616 5691(加微,不要来电,备注楼盘名字)

点击输入图片描述(最多30字)

点击输入图片描述(最多30字)

点击输入图片描述(最多30字)

上海首个“立体山水”实景示范区开放预约中,“玖玖为上,上海观止”真实可触的兑现力,更胜万千言语。

● 金镶玉制的立面艺术

● 溯源豫园的山水美学

● 传承荣宅的摩登会所

点击输入图片描述(最多30字)

点击输入图片描述(最多30字)

点击输入图片描述(最多30字)

项目拟建8栋12-24F的高层+1栋办公,规划总户数为446户

“悬浮社区”8栋住宅楼全部首层架空

人车分离,大面积景观空间,“私家泳池”,类别墅居住体验

项目产品已有豪宅特质,未来也将备受瞩目

点击输入图片描述(最多30字)

关于项目的价格,也是很值得期待的。大宁近三年只有两个新房项目入市。2022年静安府西区少量叠加,建面约168-179㎡,均价10.87万/㎡;2022至2023年的静安天悦,入市均价10.5万/㎡,面积段在107-245㎡之间,中小套型比例占8成。即使是区域标杆大宁金茂府,蕞大公寓面积250㎡,也没超过中建玖合项目。

中建玖合项目,光是楼板价就有6.83万元/㎡,地块内还规划有办公,单算住宅楼板价还不止这个数。所以远超当年大宁金茂府的4.7万元/㎡、静安天悦的5.17万元/㎡。

即使是按目前静安新房项目的均价12.5万/㎡来保守计算,270㎡大平层的总价也要3300多万。若按更高的16万/㎡计算,面积约270㎡的一套房源总价就已超过4000万,所以项目未来售价肯定不会低

效果图参考

点击输入图片描述(最多30字)

点击输入图片描述(最多30字)

点击输入图片描述(最多30字)

点击输入图片描述(最多30字)

点击输入图片描述(最多30字)

1

项目规划情况

根据项目规划设计方案:项目拟建8栋12-24层高层住宅。

点击输入图片描述(最多30字)

项目整体楼栋规划遵循“南向大户型、北向小户型”原则,蕞好的景观面留给大户型非常合理。270户型顶楼部分有私家泳池,大概率是项目的470楼王所在位置,东西向打通,1栋1套,共计也就2套。

点击输入图片描述(最多30字)

从规划图来看,项目前排可直面大宁灵石公园无敌景观;而办公部分设置在地块东北侧,也有隔断进行出入口区分,对住宅部分来说几乎没有影响。

点击输入图片描述(最多30字)

特色一:首层全架空,打造“悬浮社区”

项目8栋住宅楼全部首层架空,可以提供社区内部更多样化的功能组合,像是“泛会所”或是每栋楼不同的架空层功能空间,打造空间的可持续性。

特色二:地面0车位,大面积景观

社区内部全部2层地下车库,可留出更多空间打造地面景观。并且,项目“完全人车分流”设计,即:项目的人行和车行出入口是完全分开的,安全系出更高!

点击输入图片描述(最多30字)

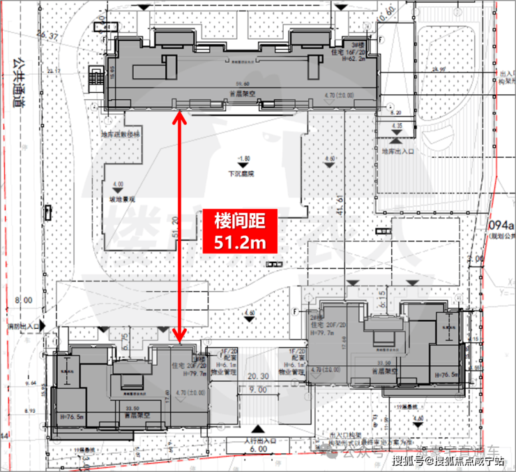
从规划图来看,社区内部广泛运用水景:共有2处大型集中水景+1处宅间水景,周边还有下沉庭院+坡地景观,大概率此处未来社区会所的位置。值得一提的是,项目的楼间距全部在35米以上,最大楼间距达到了约51.2米。

点击输入图片描述(最多30字)

特色三:私家悬浮泳池,类别墅居住体验

蕞南端的1#和2#楼均配套有私家泳池,还在19F采用了住宅楼当中较为少见的悬挑工艺,延伸出了一定的使用空间,预计就是做类似于“悬挑泳池”的。这里应该就是传说中的“超级大平层”所在位置。

点击输入图片描述(最多30字)

点击输入图片描述(最多30字)

点击输入图片描述(最多30字)

点击输入图片描述(最多30字)

在无法私有的历史地标与名宅面前,这座浦西最大的公园慷慨地为我们提供了最后席位

点击输入图片描述(最多30字)

点击输入图片描述(最多30字)

纽约曼哈顿CBD 与中央公园,筑就全球仰望的恒产奇迹;伦敦金融城 CBD与海德公园,上映永不落幕的金贵地脉;上海大宁全域中央公园式CBD,汇集产业、城市、自然三重高浓度资源,成就“黄金三角”价值坐标。中建•玖上琅宸立身“黄金三角”之心,敬献谨此正南向公园观礼台。

点击输入图片描述(最多30字)

点击输入图片描述(最多30字)

点击输入图片描述(最多30字)

-城心绿肺

南向约 68万方大宁公园,浦西中心城区最大的城市绿肺,国家 AAA级旅游景区(来源于静安区人民政府官网)

点击输入图片描述(最多30字)

-旗舰商业

约50万方旗舰商业,上海久光中心、大宁音乐广场、大宁国际商业广场、静安大融城等

点击输入图片描述(最多30字)

-总部封面

约3000亿级高新产业,从上海全球科创中心,到国际静安生态商务区,飞利浦、滴滴畅行、科勒卫浴、小鹏汽车等全球知名企业均入驻于此,扛鼎上海未来科创新经济引擎

点击输入图片描述(最多30字)

-黄金动脉

3条立交交汇(南北高架、中环高架、内环高架)3条立体交汇(1号线、19号再建、20号线再建*与凉城站有一定距离),快速畅达全市。

点击输入图片描述(最多30字)

-艺文主场

5座文艺地标:上海马戏城、中剧院、大宁剧院、大宁档案馆、静安体育中心

点击输入图片描述(最多30字)

-书香环伺

静安区大宁国际幼儿园、大宁国际小学、闸北实验小学、静安区大宁路小学、风华初级中学、市北初级中学(北校)、上海大学(延长校区)、同济大学(沪北校区)等

点击输入图片描述(最多30字)

点击输入图片描述(最多30字)

业界顶流的联袂著作

点击输入图片描述(最多30字)

跨越450余年的名园再逢

历经三年,百里挑一,寻得上海优雅生活的土地肌理。

以园 •庭•院的布局与形同豫园的山水脉络,让上海的城市精神得以传续。

点击输入图片描述(最多30字)

不是所有等待,都能如想象般惊艳

真实可触的兑现力,更胜万千言语

从大师笔下的效果图,到质感拉满的实景图

一丝不苟,把每一处细节做到极致

让所有幸福的想象,在这里找到最美模样

点击输入图片描述(最多30字)

点击输入图片描述(最多30字)

点击输入图片描述(最多30字)

点击输入图片描述(最多30字)

点击输入图片描述(最多30字)

预约咨询热线:400-960-1656☎, 加微咨询:139 1616 5691(加微,不要来电,备注楼盘名字)

全部

相关资讯

报名成功
稍后会有专业的置业顾问联系您
返回楼盘

频道导航

返回首页

看房小程序

APP下载

电话拨通后,请您手动拨打分机号

确定拨打电话

电话号码:

分机号:(可能需要拨分机号)