象屿·天宸雅颂售楼处 | 象屿·天宸雅颂官方发布:品质引爆市场

咸宁楼市发布

2025-06-15 12:39:00

购房群

买房如何避坑,加入购房群,看看他们怎么说

立即进群

《双轨交汇·象屿天宸雅颂丨闵行浦江封面之作,迭代高阶生活样本》

预约咨询热线:400-960-1656☎, 加微咨询:139 1616 5691(加微,不要来电,备注楼盘名字)

点击输入图片描述(最多30字)

点击输入图片描述(最多30字)

点击输入图片描述(最多30字)

核心卖点:交通枢纽+全能配套+稀缺户型

黄金动脉,畅达全城

项目坐落闵行浦江镇核芯,步行约 350-600米直达8号线沈杜公路站(未来规划多轨交汇),6站速抵前滩CBD;紧邻S20外环高速、沪昆高速,贯通徐家汇、陆家嘴。都会通勤与周末漫游,皆从容无界34。

点击输入图片描述(最多30字)

全维配套,执掌优渥生活

商业:仲盛世界商城、万达广场等综合体环伺,繁华举步即达;

教育:全龄段优质学府云集,书香氛围浸润成长;

生态:浦江郊野公园、滨江森林公园双绿地簇拥,推窗见绿;

医疗:仁济医院南院等三甲资源护航健康12。

匠心户型,重塑空间美学

创新270°双飘窗:主卧+主卫双全景飘窗(部分户型),赠送超10㎡,引光纳景,颠覆传统得房率1;

全能格局:89-139㎡高层三至四房,独创“L/D/K分域设计+3S墙收纳系统”,实现小户型大空间(如89㎡三房)、107㎡以上户型配备“700库”收纳神器13;

墅质进阶:144-230㎡叠墅/联排,以宋风美学雕琢,铝板立面、檐顶画意,彰显世家风范3。

小高层为89/102/107/128/139平(89-107为3房,128-139为4房);

叠加预计145-156平,联排预计190-230平,(具体户型和面积以实际为准)。

建面约89㎡ 3房2厅1卫▼

点击输入图片描述(最多30字)

建面约107㎡ 3房2厅2卫▼

点击输入图片描述(最多30字)

建面约128㎡ 3房2厅2卫▼

点击输入图片描述(最多30字)

项目建面约128㎡4房同样出彩。

延续3S墙和双270°全景双舱亮点的同时,尺度感极大提升,南向四开间,保证了更充沛的阳光。

客餐厅+超大尺度阳台贯穿南北,进门视野无遮挡,大宅气度油然而生!

建面约139㎡ 4房2厅2卫▼

点击输入图片描述(最多30字)

项目建面约139㎡4房则是集大成的终极改善户型。

该户型是独立电梯入户,保证了业主的私密性和尊崇感!

不止是四开间朝南,更是大宽厅设计,采光无敌。

飘窗数量来到了惊人的7个:4个房间、2个卫生间、还有厨房,仅飘窗带来的灵动空间就秒杀同面积段其他产品,要知道这个户型还配备了超大尺度的阳台!

项目高层户型硬核,装修更硬核!

据销售人员透露,大件方面,项目中央空调/地暖两联供、新风系统一应俱全。

厨房方面,除了灶具、吸油烟机等常规配置,还将加配蒸烤一体机、洗碗机、冰箱和厨房凉霸,全方位提升便捷性和品质感。

卫生间方面,项目洗脸盆、座便器、淋浴龙头或直接上豪宅专属唯宝品牌(或同等档次品牌)。

从选材、选牌到施工工艺,项目装修每个环节都非常考究,呈现的居住品质足以媲美其他市区千万级豪宅!

另外,项目使用了智能化系统,从社区到单元门和入户整体的无接触归家,单元门自动呼梯到户内装标配置的智能化系统,为业主带来全方位的科技便捷生活!

点击输入图片描述(最多30字)

点击输入图片描述(最多30字)

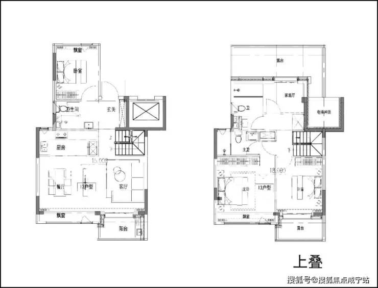
叠墅户型图如下所示:

(过程稿仅供参考,最终以实际为准)

点击输入图片描述(最多30字)

点击输入图片描述(最多30字)

点击输入图片描述(最多30字)

价值研判

单价待公布(参考周边竞品约6.5万/㎡+),但对比 “双轨+前滩辐射+全装品质” 三重价值,属板块高性价比之选。劣势为墅类总价门槛较高,适合改善客群14。

新浦江新中心将围绕沈杜公路TOD打造创智总部湾、大型商业、艺术街区、文化展览、滨水码头、高端住宅等,以世界前沿Live-Work-PlayShop模式,为上海打造高度复合等职住平衡10分钟生活圈。

轨道交通方面:项目距离8号线沈杜公路站步行约350-600米左右,可快速直达前滩、陆家嘴等核心区域,也算是项目一大卖点;通过浦星公路可直接上南北高架,自驾出行也十分便捷!

点击输入图片描述(最多30字)

商业配套方面:项目高层东侧规划约15万方的商业,该商业地块应于住宅一并打包出让,共同组成真正的TOD项目,但目前做了拆分!另外距离项目约3.3公里有浦江城市生活广场、绿地乐和城,约3.9公里有万达广场、4.4公里有浦江欢乐颂等商业!

点击输入图片描述(最多30字)

教育资源方面:项目周边规划有一幅幼儿园用地,参考周边,未来项目对口浦江镇第二小学、第二中学的概率较大,教育资源一般;

另外在项目北侧规划有一所民办学校,该校舍建成后,将迁入上海市民办协和尚音学校(九年一贯制)、上海闵行协和海富幼儿园,由协和教育中心举办。

医疗资源方面:距离项目约4公里有仁济医院南院以及复旦大学附属眼耳鼻喉科医院。

点击输入图片描述(最多30字)

文案结语:象屿天宸雅颂,以8号线TOD为锚点,串联前滩黄金势能,在自然与繁华的共生之地,为上海菁英兑现一生之宅的承诺。34

预约咨询热线:400-960-1656☎, 加微咨询:139 1616 5691(加微,不要来电,备注楼盘名字)

全部

相关资讯

报名成功
稍后会有专业的置业顾问联系您
返回楼盘

频道导航

返回首页

看房小程序

APP下载

电话拨通后,请您手动拨打分机号

确定拨打电话

电话号码:

分机号:(可能需要拨分机号)