
【区域发展:城市北翼的价值跃升】
宝山作为上海“北转型”战略要地,大场板块依托南大智慧城规划,正加速产城融合。项目周边教育(行知小学、大华中学)、医疗(华山医院北院)、商业(宝山日月光、大华虎城)环伺,生活成熟度与未来潜力并存。西侧紧邻规划商业区,消费升级触手可及。
【产品设计:五重园林里的东方美学】
项目以江南园林为蓝本,打造“玉阶、碧梧、闲庭”等五大主题院落:
玉阶院:枯山水景观映天照影,营造空灵禅意;
碧梧院:叠石夹道移步换景,演绎曲径通幽;
闲庭院:无边界景观空间,独享私人梧桐树下的静谧时光。
社区内社交花园、亲子活动区穿插其间,兼顾家庭互动与个人沉思。
位于上海市中心中环旁边,容积率仅约0.75的纯别墅社区——大华·梧桐院无疑是再难复刻的藏品级住宅,产品价值毋庸置疑!

大华·梧桐院由27栋联排+4栋叠拼组成,是中环旁仅有的高阶纯粹臻墅,目前已实景呈现,占地面积约5.19万㎡,建筑面积约2.29万㎡,车位配比1:2.3。
社区整体设计借鉴江南园林建筑的设计理念,确保每一栋建筑都能拥抱充足的阳光与四季更迭的景致。

“碧梧、花影、秋月、玉阶、闲庭”五大院落设计,通过景观轴线串联,演绎优雅别致、移步异景的雅居格调。

第一院:花影—营造穿林荫,夹道开合有序的空间;
第二院:秋月—穿过林荫峡谷,忽遇开阔视野空间,叠石气势恢弘,引人深入;

第三院:玉阶—枯山水景观让人豁然开朗,点式水景探水而出,倒影天空,人仿若翱翔天镜;
第四院:碧梧—叠石、夹道若隐若现,忽现建筑的模样,峰回路转又见另一番天地;
第五院:闲庭—无边界的景观体验空间,让人独处,寻觅属于自己的梧桐树;

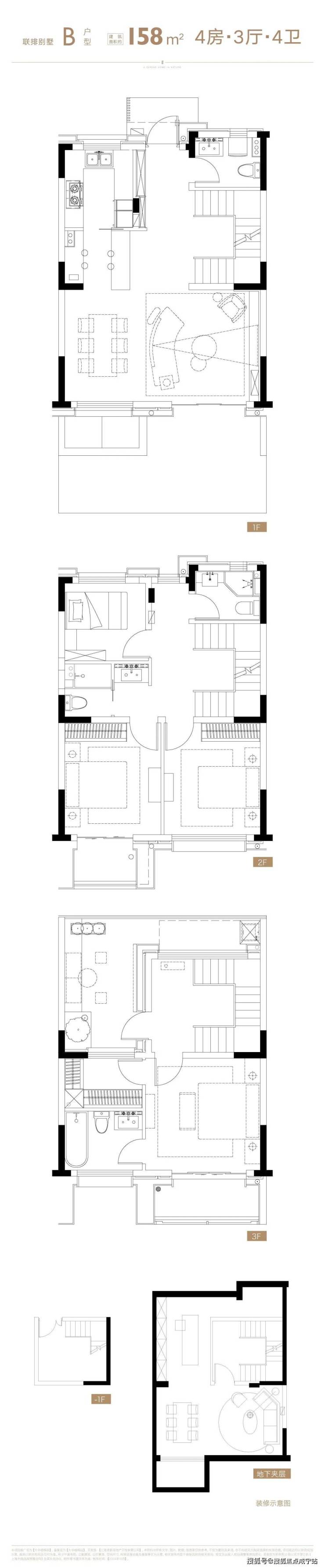
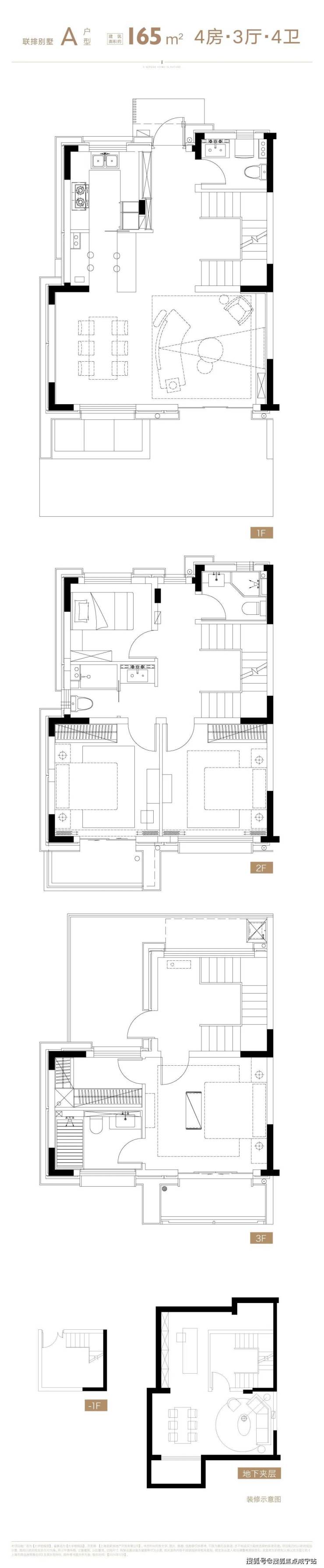
【户型与价格:纯粹墅居的终极表达】
主力产品为139-142㎡叠加别墅(北区四层)与158-165㎡联排别墅(南区主力),总计仅141套。户型设计强调空间纵深感:
联排别墅约180㎡,南向花园衔接客厅,餐厨一体化布局;
叠加别墅创新挑高设计,顶层露台揽景入怀(具体户型图可参考官方图库)。
价格策略:作为中环稀缺低密墅区,单价预计高于板块均价,但对比内环同类产品仍具性价比。总价门槛瞄准高端改善客群,具体需预约咨询案场。最新户型图如下:
联排别墅实体样板间部分实拍:

【优劣势理性分析】
✅ 优势:
中环罕见0.75容积率,墅质纯粹性无可复制;
双轨交(7号线+规划中轨交)赋能区域升值;
园林设计融合自然与人文,重塑社区精神内核。


⚠️ 考量点:
别墅产品总价较高,需匹配实力客群;
板块内商业配套仍需时间全面升级。
预约提示:项目实行严格预约制,仅接待预约客户以确保服务品质。
预约咨询热线:400-960-1656☎, 加微咨询:139 1616 5691(加微,不要来电,备注楼盘名字)