上海闵行「聚仁汇」
售楼处热线:400-885-1063【预约】(一对一热情服务)
如有问题欢迎来电咨询,专业一对一热情服务,让您用专业眼光去买房。

聚仁汇
虹桥小独栋产品收官之作. 最后3席
项目位于闵行虹桥枢纽1公里,两个红绿灯,6分钟车程。
项目距离嘉闵线地沪星路地铁站100米,步行3分钟,交通非常方便。
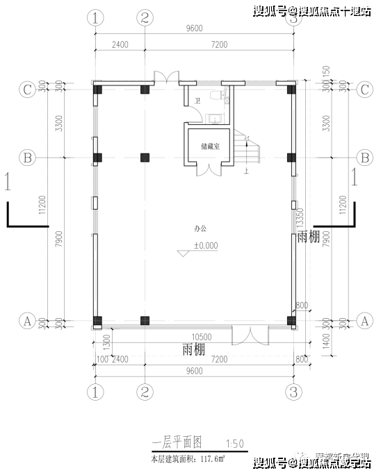
项目总共10幢楼
1号楼6600平米,目前酒店租用。
2号~10号楼都是小独栋办公楼
(其中3、4、5、6、7号已售,8号楼自用)
面积:355平米左右(上海最小独栋办公楼)
总价:2000万~2300万
项目配备车位:91个
停车位可售:30万/每个


目前房源:
2号楼面积:355平 一口价:1888万)
9号楼面积:355平 2339万
10号楼面积:355平 2339万
项目位于闵行区七宝古镇板块,周边紧邻上海西部最大的虹桥枢纽和上海南站,同时本案处于虹桥商务区、漕河泾开发区、上海会展中心、与七宝最大商圈的核心位置,毗邻七宝最为密集的居住区域 13万常驻入口。

独栋面积:356平,得房率100%
交房:2021年底
产品类型:独栋办公
电费:1元/度
水费:6元/吨
物业费:15元/平
层高:约3.3米
3条地铁:9号线七宝站(已通车),10号线航中路地铁站(已通车)步行10来分钟就可以,
在建的嘉闵线沪星路地铁站100米,2站就可到虹桥火车站



周边配套情况:
商业配套非常齐全。
距离项目最近150米的距离的25万平米商业配套,巴黎春天,凯德广场,家乐福,华商广场。
还有七宝万科广场,汇宝广场,商业配套非常好。
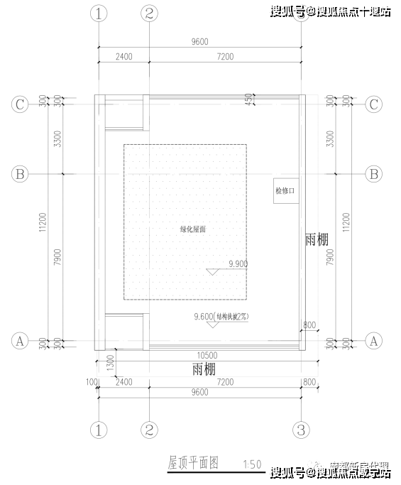
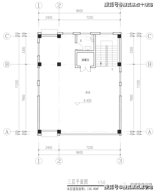
每栋楼共3层+顶楼空中花园。

三层平面图





项目优势:
1.不限购不限贷、独立空间、私密性强
2.小独栋,地上三层、屋顶花园
3.大虹桥枢纽、商务、会展中心辐射圈
4.距离项目500米五所高端及国际学校
5.距离机场火车站3公里自驾五分钟
6.紧邻七宝古镇最为繁华密集的大型商圈
7.得房率高、落地玻璃幕墙
8.骑行十分钟到达地铁9号线、10号线
9.自驾3-10分钟7个高速3个高架闸道口
10.综合交通,五维立体交通体系,通往世界的“登机口”,世界近在咫尺。



上海闵行「聚仁汇」
售楼处热线:400-885-1063【预约】(一对一热情服务)
如有问题欢迎来电咨询,专业一对一热情服务,让您用专业眼光去买房。
注:(免责声明:本篇分享文案非广告,所涉及的图文资料仅供参考,项目可能对项目细节等做进一步优化调整,具体以最终签订的买卖合同为准,在法律规定的范围内保有最终解释权。部分图片素材来自网络,如有侵权请联系小编删除,感谢支持。)