三亚传媒中心售楼处电话→三亚传媒中心官方网页→户型丨百度认证→营销中心电话→楼盘百科→Ai热搜房源→24小时热线电话

搜狐焦点仙桃站

2026-02-19 13:57:40

购房群

买房如何避坑,加入购房群,看看他们怎么说

立即进群

三亚传媒中心

售楼处电话400-688-0252【售楼中心】

24小时热线◆温馨提示:看房需提前预约

◆在售房源户型价格详询售楼处〢一对一服务

售楼处电话400-688-0252〢售楼处销售1v1专业讲解

24小时热线〢〢〢〢〢〢〢〢 全天服务

【在售产品—3#楼百变空间】

C户型——66.46㎡

B户型——70.29㎡

A户型——113.17㎡

【在售产品—2#楼云端叠墅】

C户型——43.68/43.70㎡

B户型——106.12㎡

A户型——118.46㎡

【东岸CBD 三亚城市新中芯】

三亚中央商务区是海南自贸港11个重点园区之一,东岸单元作为三亚中央商务区总部经济核心,以“大型消费商圈+总部经济”为引领,全力打造全球总部商务CBD。

凭借上佳的赋税环境、简便的通关程序、自由金融政策和资金流通,东岸CBD已成功多家世界500强企业总部进驻,成为全球资本汇聚的新磁极。

【枢纽之上 多维立体交通】

项目位于迎宾路、海螺路、腊尾路三路交汇处,坐拥繁华枢纽,汇聚四通八达交通路线,串连城市脉络,便捷城市生活圈。

• 距离荔枝沟互通约3公里;

• 距离三亚湾约5公里;

• 距离三亚动车站约6公里;

• 距离凤凰机场约14公里。

【天然氧吧 毗邻千亩湿地公园】

项目毗邻东岸千亩湿地公园,享受大自然天然氧吧。繁华之中,邻水而居,景致在旁,长青乔木,应时花草,感受在城市繁华之外,动态自然中。

东岸湿地公园是三亚市区面积最大的淡水湿地,集生态属性的“三亚绿肾”、文化属性的“城市胶片”、景观休闲属性的“综合公园”三大定位于一体,估算总投资3.2亿元。

【揽尽繁华 生活坐享其“城”】

坐拥繁华商业中心,城市生活配套近在咫尺,购物、美食、休闲、商务、医疗、教育等配套醇熟,全方位满足生活所需。

项目自带6981㎡商业配套,精品主题餐厅、精品零售、生活美学、文创体验等,下楼即享都会繁华。

<繁华商业> 阳光金融广场、青春颂、金润阳光、蓝海国际、三亚免税店......

<健康医院>三亚市妇幼保健院、人民医院、农垦医院、三亚市中医院等“三甲医院”......

<文化教育>琼大双语幼儿园、荔枝沟小学、丰和学校、三亚一中、琼州学院、三亚理工学院、三亚热带海洋学院.....

<农贸市场>荔枝沟路南新农贸市场、乐天城购物中心、东岸农贸市场、鸿港批发市场......

【项目概述】

开 发 商 :三亚允达置业有限公司

占地面积:约3.3万㎡

建筑面积:约16万㎡

容 积 率 :3.6

绿 化 率 :35.65%

停 车 位 :1219个(地上200个/地下1019个)

商业配套:约6981㎡商业

产业规划: 2#、3#楼规划中小企业孵化基地

可售楼栋:3#楼(在售)、2#楼(在售)

在售面积:约66-113㎡百变空间(3#楼)

约44-118㎡云端叠墅(2#楼)

交付标准:硬装交付

交付时间:2024年6月-9月

3#楼户型鉴赏--百变空间

C户型约66.46㎡

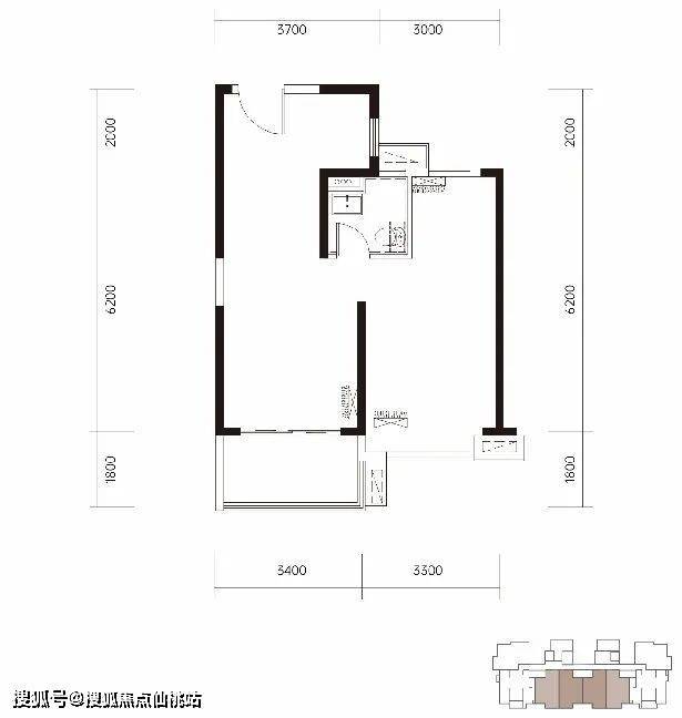
3#楼户型鉴赏--百变空间

B户型约70.29㎡

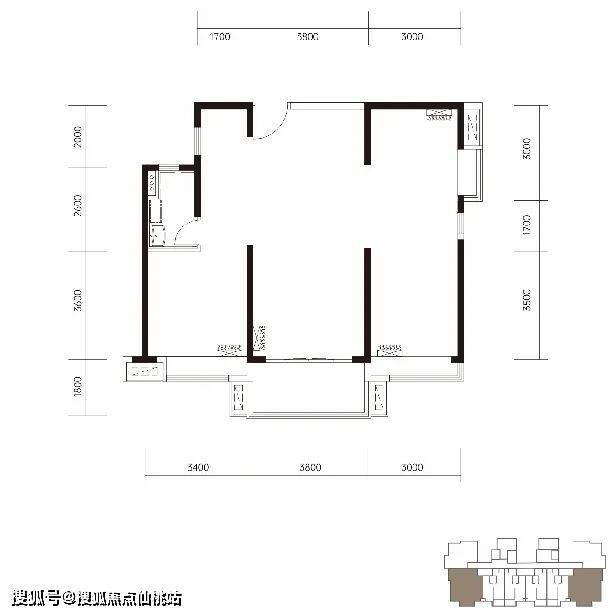
3#楼户型鉴赏--百变空间

A户型约113.17㎡

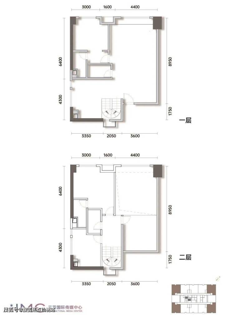
2#楼户型鉴赏--云端叠墅

C户型约43.68/43.70㎡

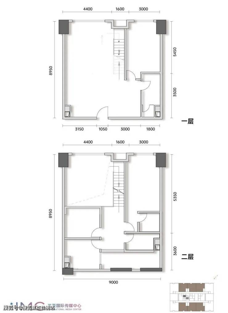
2#楼户型鉴赏--云端叠墅

B户型约106.12㎡

2#楼户型鉴赏--云端叠墅

A户型约118.46㎡

【3#楼价值】

1. 均带户外露台:每户均带户外露台,空间延伸运用更加自由,美景自然延入,;

2. 户型通透方正:3梯8户,单边廊设计,户户通透,采光通风效果极佳;

3. 共享花园阳台:约30-70㎡共享花园阳台,休闲天地,专属活动空间,工作之余放松身心;

4. 小户型低总价:建面约66-70㎡小户型,具有低总价优势,可置业三亚中央商务区。

【2#楼价值】

1. 买一层享两层:约5.4米阔绰挑高,奢享双层空间,超性价比;

2. 入驻舒适度高:6梯12户,约等于1梯2户,入驻舒适度高;

3. 小户型低总价:建面约44㎡小户型,具有低总价优势。

【项目价值】

1. 硬装 准现房:赠送硬装交付,省时省力,准现房,2024年6-9月交付;

2. 社区园区配套:围合式设计,具有独立社区园林,自带双泳池,儿童娱乐、休闲、健康设施;

3. 自带商业配套:拥有6981㎡商业配套,即享一站式商业便捷服务。

三亚传媒中心

售楼处电话400-688-0252【售楼中心】

24小时热线◆温馨提示:看房需提前预约

售楼处电话400-688-0252〢【售楼中心】

◆在售房源户型价格详询售楼处〢一对一服务

售楼处电话400-688-0252〢【售楼中心】

售楼处销售1v1专业讲解〢24小时热线

〢〢〢〢〢〢〢〢〢〢〢〢〢〢〢〢〢〢〢

全部

相关资讯

报名成功
稍后会有专业的置业顾问联系您
返回楼盘

频道导航

返回首页

看房小程序

APP下载

电话拨通后,请您手动拨打分机号

确定拨打电话

电话号码:

分机号:(可能需要拨分机号)