天正三亚湾壹号售楼处电话|首页网站-三亚天正湾壹号营销中心地址-2026.1实时房价-户型图-在售房源-楼盘详情-容积率-备案价@官方权威发布

搜狐焦点仙桃站

2026-01-16 22:15:15

购房群

买房如何避坑,加入购房群,看看他们怎么说

立即进群

天正三亚湾壹号售楼中心:400-996-2822转接9999【官方认证】

天正三亚湾壹号售楼处电话:400-996-2822转接9999【网站认证】

天正三亚湾壹号售楼处电话:400-996-2822转接9999【官网认证】

免责声明:本文所用信息图片来源于网络,如侵权请联系本网站及时删!

三亚湾新晋地王-800米亲海大平层

国家黄金海岸线 城心漫步三亚湾

三亚湾,三亚四大核心湾区之一,东起鹿回头,西至天涯海角。海岸线绵延约22公里,拥有亚洲第一椰梦长廊,是三亚开发早、城市资源配套全、商业密度高的度假湾区及老牌富人聚集地,也是全市罕有“国”字号美丽海湾,打造三亚“海上会客厅”。(内容来源:《三亚发布》官微)

天正·三亚湾壹号,步行约10分钟即达椰梦长廊,茶余饭后,近享海岸风光。

【天正·三亚湾壹号】

【开发商】 :三亚永基房地产开发有限公司

【产权年限】:2024-2094年

【占地面积】:56.52亩

【建筑面积】:12.8万平方米

【容积率】 :2.5

【绿化率】 :40%

【总层高】 :16-17层

【层高】 :3.1米

【总户数】 :600户

【停车位】 :879个

【物业服务】:天正物业

【交房时间】:2026年中旬

【12年优教环伺】

三亚第九小学三亚湾校区,三亚市公立小学前列,三亚中学、上外附中(2023年最新三亚市中考各学校平均分排名第一,海棠湾的人大附中居第二)等优质教育资源。

【全维三甲医疗 】

约7公里内,享三亚主城优质医疗配套,三亚哈尔滨医科大学鸿森医院、三亚中心医院、解放军425医院等三甲医院。

【缤纷醇熟商业 】

1公里范围内:羊栏农贸市场、海之眼市集;

2公里范围内:丽禾MOHO、回辉农贸市场;

5公里范围内:龙兴海鲜广场;

8公里范围内:夏日站商业综合体、红树林度假世界、空港百货、大悦城、亿恒主题夜市。

项目实景拍摄

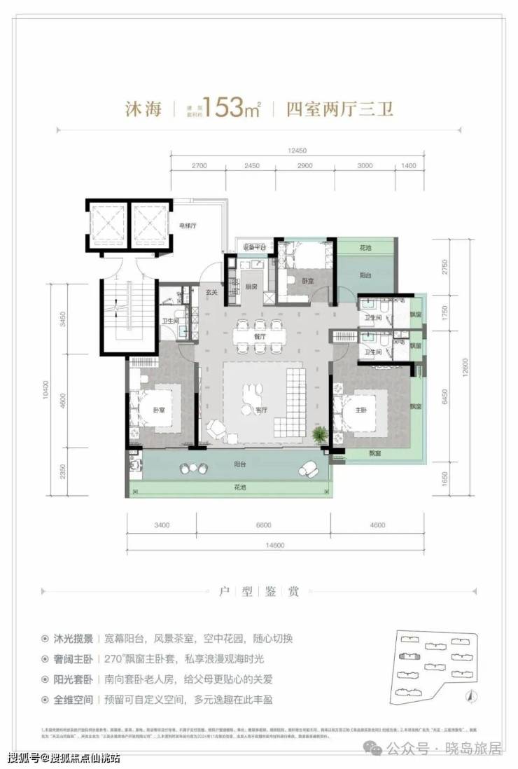
户型面积:

126㎡三室两厅三卫 | 149 ㎡四室两厅三卫

153㎡四室两厅三卫 | 177㎡四室两厅三卫

211 ㎡五室两厅三卫 | 213 ㎡五室两厅三卫

天正三亚湾壹号售楼中心:400-996-2822转接9999【官方认证】

天正三亚湾壹号售楼处电话:400-996-2822转接9999【网站认证】

天正三亚湾壹号售楼处电话:400-996-2822转接9999【官网认证】

免责声明:本文所用信息图片来源于网络,如侵权请联系本网站及时删!

全部

相关资讯

报名成功
稍后会有专业的置业顾问联系您
返回楼盘

频道导航

返回首页

看房小程序

APP下载

电话拨通后,请您手动拨打分机号

确定拨打电话

电话号码:

分机号:(可能需要拨分机号)