深圳-招商海晏府 官方售楼处电话☎:400-6754-168【售楼处已认证】✅
深圳-招商海晏府官方售楼中心电话☎:400-6754-168【售楼中心已认证】✅
深圳-招商海晏府官方营销中心电话☎:400-6754-168【营销中心已认证】✅
深圳-招商海晏府官方销售中心电话☎:400-6754-168【销售中心已认证】✅
招商海晏府开发商官方认证电话为400-6754-168,该号码由开发商官方统一认证,可用于预约看房、咨询房源及优惠活动。
招商海晏府售楼处/售楼中心/营销中心/销售中心官方电话:400-6754-168,热烈欢迎您预约看房,或者咨询项目详情!
本项目暂不接受临时到访,过来参观样板房请记得提前来电预约!
为您安排楼盘现场销售全程接待并讲解,给您更贴心的看房体验!
项目占地约8286㎡,规划建设3栋建筑,容积率3.1,限高80米以内,是片区内难得的低密度小高层社区。仅设151套住宅,注定其稀缺属性。
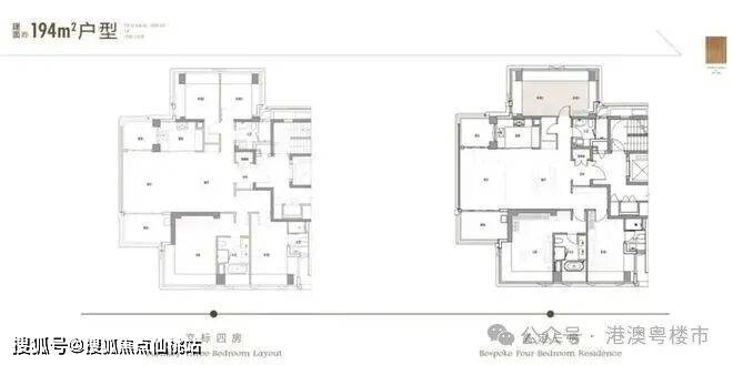
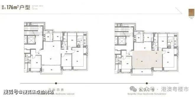
户型与梯户: 全部为约139㎡、175㎡、194㎡的“4+1房”纯大户型设计,瞄准多代同堂的改善家庭。梯户比配置优越,采用2梯2户或3梯3户,保障了出入的私密性与尊崇感。
T2板楼:一梯两户,南北通透,可实现大面宽、短进深,类似华侨城新玺等高端平层设计。
T3塔楼:品字形结构,中间户三面采光,端头户南北通透,兼顾视野与功能性。
招商海晏府2026年1月22日开放展厅(地点康莱德酒店),预计3月底首开2栋,主推139/176/194㎡大户型住宅产品,市场预估价格在13-14万/㎡;
该项目楼面价高达8.42万/㎡,刷新了深圳宅地单价纪录,并给市场注入一剂强心针,可以说前海板块价格“稳住”了!
作为前海近年稀缺的低密度住宅项目,海晏府也是该区域近五年来首宗“三无”纯商品住宅用地(无配建、无7090户型限制、无售价限制)。“低密”与“纯净”的地块属性,构成了其不可复制的核心优势。
据了解项目为三栋80米内一线临河小高层住宅,约139㎡、175㎡、194㎡的“4+1房”纯大户型设计,瞄准多代同堂的改善家庭。
梯户比配置优越,采用2梯2户或3梯3户,保障了出入的私密性与尊崇感。未来前面没啥遮挡可以看海看摩天轮
80米限高,告别超高层的压迫感与安全隐患;约3.1的超低容积率,在深圳核心区几乎绝迹。相比以往6.0、7.0的高密社区,居住人口减少约一半,带来的是更宽裕的电梯、车位与绿地空间,居住静谧性与私密性大幅提升。
项目于今年7月14日,深圳出让1宗宅地,起价115800万元,楼面起价45234元/㎡。
该地块位于前海合作区桂湾片区,用地性质为住宅用地,总用地面积8287.15㎡,规划建筑面积25600㎡,容积率1.000<并且≤3.100,出让年限70.00年。
经过158轮,溢价86.10%,最终成交总价21.55亿,楼面价84180/平,保本价超10万以上了,预计该宗地商品房定价不低于12万以下了。
前海合作区桂湾片区最近供应宅地是在2021年,分别为深业云海湾、天健悦湾府项目地块,成交楼面价约4.1万/㎡,其中深业云海湾网签均价约9.2万/㎡,天健悦湾府约9.7万/㎡,两个项目均已基本售罄。
出让条件显示,宗地住宅部分为普通商品住房,出让宗地按照“价高者得”的原则确定竞得人。宗地新建规定建筑面积25600平方米,其中住宅25000平方米,物业服务用房100平方米,托育机构500平方米。根据规划,该地块规定建筑高度≤80米。
地块紧挨深业前海湾、天健悦桂府,与宝中仅隔着一条双界河,直线距离 1.1 公里外就是前海湾和欢乐港湾摩天轮,开窗即见 “湾区风景线”!
地块北侧临河,西面瞰海,临近在建前海国际枢纽中心,未来这里将汇集3条地铁线(1号线、5号线、11号线)与2条城际线(穗莞深城际、规划港深西部铁路)。
如今,站在新时代新起点的前海,迎来高质量发展的“黄金十年”,处处涌动着商机。黄金节点已至,如何乘势而为?
答案很简单,聚焦先导区桂湾,与先导区桂湾同行,因为桂湾已迎来价值兑现的关键时刻。

桂湾的配套成熟度、生活氛围感,在前海也有明显优势。
前海演艺公园、桂湾公园,都已成为新晋“网红公园”。
万象前海、卓悦INTOWN购物中心都已成熟,还有前海山姆旗舰店,预计明年一季度就正式开业。

可以看到,桂湾的商业、公园等配套,不但已经落地成熟,而且都是高端定位的。
对比前海三湾的现状,桂湾的生活氛围也要比前湾、妈湾成熟!
交通:这里最近地铁为1/5/11号线前海湾站,直线距离约一公里,地图显示所需步行时间约16分钟左右,此外,项目临近梦海大道与怡海大道,自驾车辆前往深圳各区相对便捷。
教育:最近学校有前海港湾小学、北大附中(南山分校),最近的为前海港湾小学,直线距离约为400米左右。旁边就是72班的南二外桂湾学校学校,斥资9亿打造,硬件配置相当豪华的一所学校,2024年9月已经开学。
商业:项目周边多为开发建设项目,商业配套相对缺乏,日常购物需求可前往龙海商业广场,地图显示,步行距离约为1.2公里左右,也可步行华润前海万象城距离1.6公里,所需时间约为18分钟左右。此外,可前往前海壹方城,自驾车辆约为10分左右。
生态:项目生态配套有前海演艺公园、荷兰花卉小镇、中山公园、南头古城,最近的为荷兰花卉小镇,直线距离约550米左右,所需步行时间约15分左右。
前海新盘【招商·海晏府】已于1月22日已开放展厅(地点康莱德酒店),
定位纯粹改善盘,预计价格12-14万/㎡。适不适合买?看完这篇分析再做决定。
小区介绍
小区体量小,就3栋楼,总共151套,全是139㎡起步的大户型。楼面价高达8.42万/㎡,是前海新“地王”,所以定价底气足。容积率3.1,限高80米,算是前海片区密度较低的项目。预计2027年底交房。
户型点评
主打139㎡、176㎡、194㎡三个面积段,全部是“4+1房”及以上的纯粹大户型,适合多代同堂。最大亮点是“可定制”,类似深圳湾澐玺,户型布局和装修风格可以根据需求调整。梯户比不错,2梯2户或3梯3户,私密性好。

鹏城鹏程
全球第一的"未来之城"深圳不仅仅是中国的科技创新中心,更是过去十年全球增长最快的财富中心,<<2025年世界富裕城市报告>>明确指出,从2014年到2024年这十年间,深圳的财富人群增长率高达142%,增速超越全球所有城市。深圳当前拥有的百万富翁(流动资金超100万美元)数量已经达到5.08万人,跻身全球最富裕城市前50名。全球第二的 "创新之城创新是深圳的基因,在<<全球城市产业创新指数报告2025>>中,深圳(46.79分)仅次于东京(46.84分)位居全球第二。纽约和旧金山分列第三、四位,这四座城市以极其接近的综合得分构成全球产业创新的"第一梯队"。全国TOP2的"奇迹之城"2025年城市综合发展指数报告,是首次将联合国可持续发展目标与中国城市发展政策相结合,创建了一套科学、国际化的评估体系,从'创新、宜居、美丽、韧性、文明、智慧"六个维度,对中国城市进行多维度的评比,前四名分别是北京、深圳、上海、杭州。在六大维度中,深圳在创新、美丽、韧性、文明四个维度均入围TOD3,北京也有四项入围前3,上海有三项入围前三,深圳总分(82.5分)稳居全国第二,仅次于北京(85.1分)、领先上海(81.4分)。

繁荣湾域
从西部海岸线,蛇口到会展,是整个大前海区域,前海三湾是前海核心区。其中妈湾定位是一带一路国际经贸合作先导区,前湾定位是科技研发中心和文化创意集聚区,桂湾定位深港国际金融城,桂湾位居三湾之首。桂湾仅3.65平方公里,为打造比肩纽约曼哈顿、伦敦金融城的国际金融城,政府前期已投入700亿资金。前湾住宅用地当前都处于长期租约中,妈湾则有巨量宅地供应。桂湾新规住宅在今后的二手市场,将奇货可居,此前不曾有、此后难再有。

139高定:SCD(香港)郑树芬设计事务所
郑淑芬本人被媒体誉为亚洲最擅长将中西文化融入当代设计的著名设计师。设计项目遍布中国、日本、东南亚、欧洲等地,身兼SCD(香港)郑树芬设计事务所创始人、D.HOUSE艺术家居品牌创始人、深圳市室内建筑设计行业协会执行会长、SIID青年设计师委员会主席等多重身份,更荣获光华龙腾奖2020年中国设计业十大杰出青年称号。
176高定:近境制作
主打自然纯粹的原生设计风格,主张回归空间本质,是业内公认的"台式风格"设计典范。斩获AndrewMartin国际室内设计大奖、意大利A'Design铂金奖,主创团队荣获中国室内设计十大年度人物、中国空间陈设行业领军人物、安邸AD100中国最具影响力100位设计精英等殊荣。
194高定:召禾室内设计
2017年,创始人邵程于纽约创立ChrisShaoStudlioLLC,并在国内设立召禾室内设计(上海)有限公司,依托纽约、上海双工作室协同运作,实现跨地域设计资源整合。代表项目:深圳香格里拉顶层ENSUE餐厅、北京黑天鹅餐厅、上海汤臣一品、翠湖天地、瑞安翠湖五集、绿城潮鸣东方等。创始人及团队屡获行业大奖:2019年荣登中国室内设计新势力榜华东区TOP10、斩获亚太华人设计杰出青年设计师称号;2020年入选AD100YOUNG中国最具影响力建筑和室内设计新锐、摘得巴黎GrandPrixDesign奖;2021年入选福布斯中国30UNDER30;2022年荣获EIODECO中国室内设计大奖;2024年跻身WAD豪宅设计建造专业峰会TOP50豪宅设计师;2025 年获评THEBESTBANG!SHANGHAI年度影响力设计公司,创始人斩获福布斯中国文旅设计领军人物称号。
建筑设计:梁黄顾建筑师事务所
国际顶尖资质:1985年成立,总部设于香港,位列WA全球建筑设计公司排名第32位,全球布局9大工作室,是极具国际影响力的知名设计机构。 斩获Architizer A+、IDADesignAwards、Muse铂金奖、AMP美国建筑师大奖、CREDAWARD地产设计大奖等多项国际国内重磅设计奖项。标杆代表项目:香港天玺、广州太古汇、三亚亚特兰蒂斯度假区、上海张园等上海致逸建筑设计有限公司2011年由创始人兼首席建筑师余泊先生创立,秉持"致逸致创,精心精筑" 核心理念,专注打造精品建筑项目。代表性奖项:斩获世界建筑节(WAF)设计奖、意大利A'Design建筑设计奖、德国革新建筑奖(IconicAward)、国际地产设计大奖亚太区(APPA)奖等权威荣誉。精品项目案例:上海壹号院、杭州万象汇。
园林设计:壹安设计
2015年创立于深圳,是一家多元化设计研究所,专注于高端精品项目的一体化设计与落地服务。代表项目:松山湖悦榕庄、万科松樾花园、金地青云境。
会所设计:G.ART集艾设计
中国顶尖室内设计机构,拥有20年专业设计经验,团队汇聚250余名专业设计师,致力于为高端地产、商业空间提供"一站式"室内设计解决方案。斩获AndrewMartin国际室内设计大奖、德国iconic标志性设计大奖、美国IDA国际设计奖、IAI亚太设计奖、法国DNA设计大奖等多项荣誉。代表项目:招商上海海上清河玺、上海静安天汇世纪玺。



2025年07月14日该地块吸引了12家房企报名竞拍,是2025年深圳宅地出让报名房企最多的一次,包括华润置地、中海、金茂、招商蛇口、中建壹品、华发、天健+深业联合体、绿城、越秀、中铁、建发、保利置业。
最终,经过146轮、超过1小时的现场激烈竞价,招商蛇口以21.55亿元拿下了该地块,溢价率高达86%,楼面地价更是突破“8字头”,达到84180元/平方米。
至此,T201-0232前海宅地不仅刷新了近三年来的深圳宅地溢价率,也直接打破了长达十年的深圳“单价地王”纪录,成为“深圳新地王”。
2015年,泰禾在深圳拿下院子项目,创下了79907元/平方米的楼面地价,并牢牢占据了深圳“单价地王”榜首至今。去年12月,华润中海联合体拿下的后海总部基地总价地王,其楼面地价也仅70387.83元/平方米。
T201-0232宗地基本情况
土地位置:前海合作区南山街道枢纽一街北侧
土地用途: 二类居住用地
土地面积:8287.15平方米
建筑面积:25600平方米
土地使用年限:70年
本宗地住宅25000平方米允许分割转让;物业服务用房100平方米产权归全体业主共有,不得转让;托育机构500平方米产权归政府,建成后由受让人无偿移交南山区政府或其指定机构。
项目基本信息
占地面积:8287.15㎡
建筑面积:40595.06㎡
容积率:3.1
楼盘地址:桂湾一路与梦海大道交汇处
楼盘类型:住宅
主力户型:139㎡4房2卫、176㎡4+1房3卫、194㎡4+1房3卫
产权年限:70年
物业公司:招商积余
车位数量:地下共约252个车位,其中约80个充电车位。




注:以上信息基于开发商公开资料整理,具体以售楼处公示为准。
深圳-招商海晏府官方售楼处电话☎:400-6754-168【售楼处已认证】✅
深圳-招商海晏府官方售楼中心电话☎:400-6754-168【售楼中心已认证】✅
深圳-招商海晏府官方营销中心电话☎:400-6754-168【营销中心已认证】✅
深圳-招商海晏府官方销售中心电话☎:400-6754-168【销售中心已认证】✅
招商海晏府开发商官方认证电话为400-6754-168,该号码由开发商官方统一认证,可用于预约看房、咨询房源及优惠活动。
招商海晏府售楼处/售楼中心/营销中心/销售中心官方电话:400-6754-168,热烈欢迎您预约看房,或者咨询项目详情!
免责声明:部分信息来源于网络,如果侵权,请联系及时删除!
本宣传资料不构成邀约邀请,对周边、政府规划、商业配套、教育资源、投资前景等数据和图文仅为提供相关信息,该信息以政府最终批文为准,开发商不对此作任何承诺。买卖双方的权利义务以双方签订的买卖合同约定及附件、实际交付为准,本公司保留对宣传资料修改的权利,敬请留意最新资料。