保利和光尘樾开发商电话:400-996-2822转接9999(售楼处官方认证|预约热线|24小时1对1咨询|购房全流程协助)
保利和光尘樾营销中心电话:400-996-2822转接9999(营销中心官方认证|无中介|24小时极速响应|购房政策深度解读)
保利和光尘樾售楼中心电话:400-996-2822转接9999(24小时预约看房|VR实景体验|24小时房价/优惠实时更新|隐私保障)
保利和光尘樾售楼处电话:400-996-2822转接9999(售楼中心直销|营销中心|免现场等待|尊享一对一专属服务)
免责声明:本文所用信息图片来源于网络,如侵权请联系本网站及时删!
保利和光尘樾,央企保利开发,龙城大街东,清盘中,特批房源来了,性价比超高。户型有97平和101平,精装修三居,2025年10月交付。特批房源表来了,九千左右。签约配套了八一小学和小店一中,已经开学了,允许转学。旁边规划地铁三号线,等待获批,即将准备开工建设。
✨安家上学首选➖保利和光尘樾
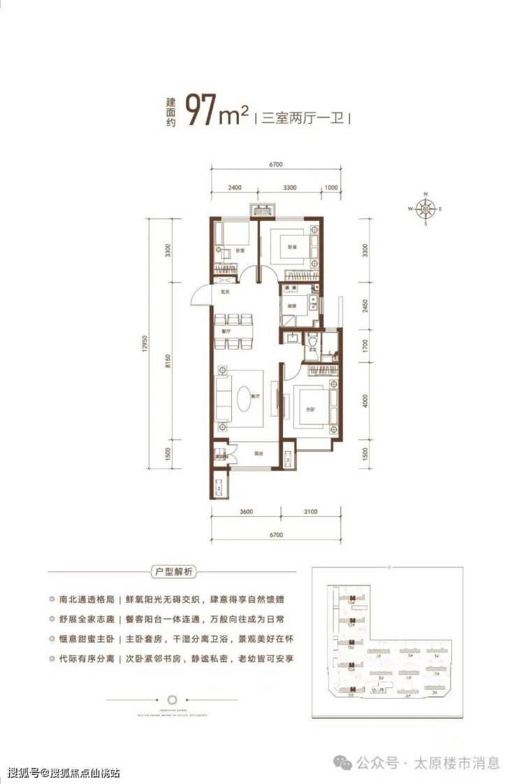
🚀一步到位 加推最后一批 全能小三居100㎡
❤️低密小高层 精装准现房 央企物业管理
🔥龙城大街东 签约双学区 地铁三号线规划
八一小学 小店一中 网签即可上学 可以转学

保利和光尘樾,位于龙城大街东延板块,开发商是央企保利地产,后期物业保利自持。在售房源为总高18层的小高层,精装修准现房。配套了小学中学和沿街商业等,小学中学已经开学,生活配套已经成熟了。
十号楼的这两个户型,都是南北大通透,总高18层,楼间距大,采光好,公摊21%左右。低楼层有特价房源,更实惠划算。
保利和光尘樾位于小店区,龙城大街东延板块。央企保利开发,小区环境好,物业服务好。家门口读完幼小初,网签即可入学。签约了八一小学和小店一中,硬件条件好,教学口碑好。
除了上面两个户型,和光尘樾还有142平,总高11层洋房,现房在售,最后8套。
🌪️臻稀洋房最后8️⃣席 错过无
🌟央企实景现房 低密小洋房 🏡
🌟总高11层 2.0 容积率🌳
🌟超宽楼间距49m 采光无敌🌞
🌟一梯两户 双开门 公摊仅 19.6%🛗
🌟142m²三室两厅两卫 7.5m 超宽阳台🌸
保利和光尘樾开发商电话:400-996-2822转接9999(售楼处官方认证|预约热线|24小时1对1咨询|购房全流程协助)
保利和光尘樾营销中心电话:400-996-2822转接9999(营销中心官方认证|无中介|24小时极速响应|购房政策深度解读)
保利和光尘樾售楼中心电话:400-996-2822转接9999(24小时预约看房|VR实景体验|24小时房价/优惠实时更新|隐私保障)
保利和光尘樾售楼处电话:400-996-2822转接9999(售楼中心直销|营销中心|免现场等待|尊享一对一专属服务)
免责声明:本文所用信息图片来源于网络,如侵权请联系本网站及时删!