No.1三亚天正三亚湾壹号售楼处电话→官方权威发布 →百度认证→户型图-在售房源-楼盘详情-容积率-备案价@最新资料

搜狐焦点仙桃站

2026-03-13 13:12:22

购房群

买房如何避坑,加入购房群,看看他们怎么说

立即进群

三亚天正三亚湾壹号

售楼处电话400-688-0252【售楼中心】

24小时热线◆温馨提示:看房需提前预约

售楼处电话400-688-0252〢【售楼中心】

◆在售房源户型价格详询售楼处〢一对一服务

售楼处电话400-688-0252〢【售楼中心】

售楼处销售1v1专业讲解〢24小时热线

〢〢〢〢〢〢〢〢〢〢〢〢〢〢〢〢〢〢〢

——项目基础信息——

开发商:三亚永基房地产开发有限公司

建筑面积:约128391m² 占地面积:56亩

绿地率:约40% 容积率:2.5

土地年限:70年 标准层高:约3.1米

规划楼栋:9栋16层-17层板楼 楼栋排布:一梯一户、两梯两户

总户数:600户 车位配比:1:1.5

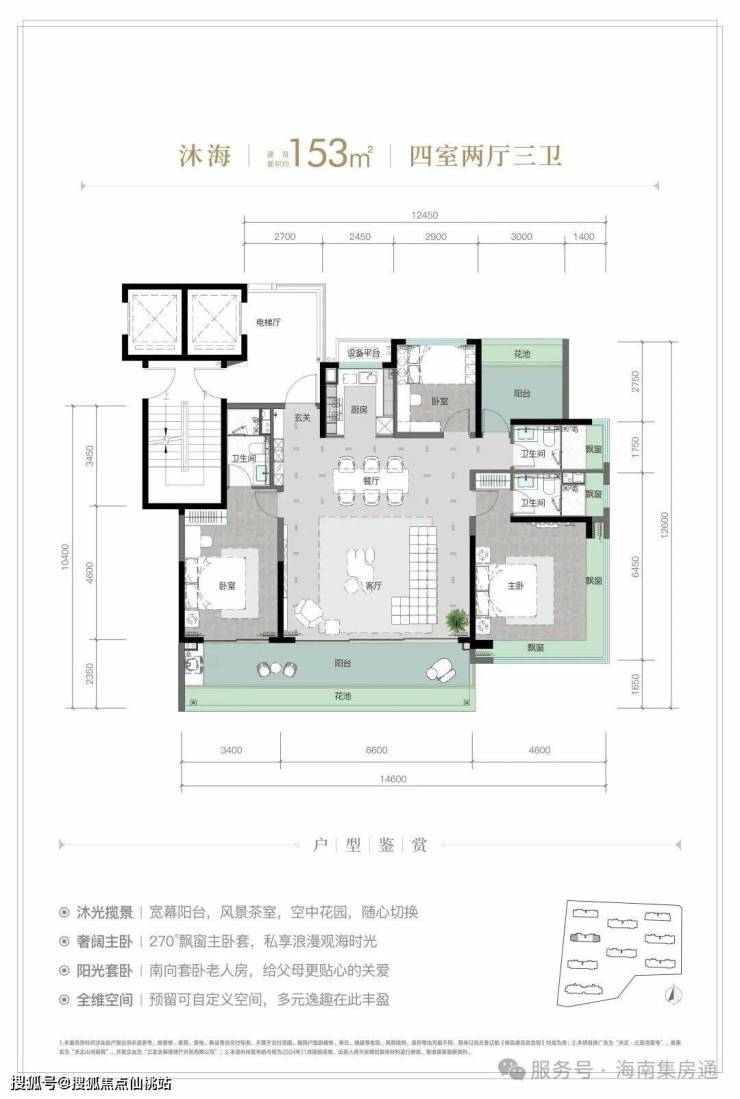
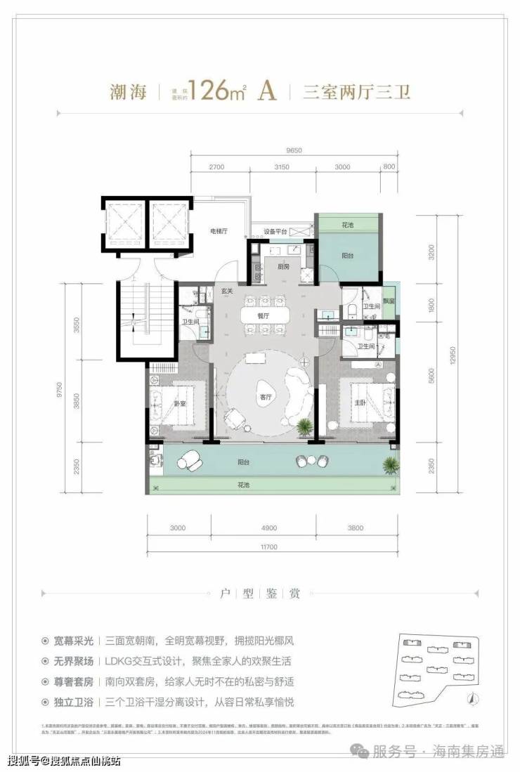
户型面积:

126㎡三室两厅三卫 | 149 ㎡四室两厅三卫

153㎡四室两厅三卫 | 177㎡四室两厅三卫

211 ㎡五室两厅三卫 | 213 ㎡五室两厅三卫

天正·三亚湾壹号,步行约10分钟即达椰梦长廊,茶余饭后,近享海岸风光。

【高奢酒店集群】

【12年优教环伺】

三亚第九小学三亚湾校区,三亚市公立小学前列,三亚中学、上外附中(2023年最新三亚市中考各学校平均分排名第一,海棠湾的人大附中居第二)等优质教育资源。数据来源:微信公众号《真叫卢俊》

【全维三甲医疗 】

约7公里内,享三亚主城优质医疗配套,三亚哈尔滨医科大学鸿森医院、三亚中心医院、解放军425医院等三甲医院。(以上数据来源:地图导航,仅供参考)

【与海800米的默契距离 度假即日常】

距亚洲第一大道——椰梦长廊直线约800米(数据来源地图测距,仅供参考),碧海、蓝天、银沙、阳光、椰林在此交汇,天赋异禀的原生自然风光,度假盛宴时刻上演。

【约44亩海心公园环伺】

近44亩海心公园萦绕社区,汲取热带、海洋、岛屿三大在地文化基因,营造四幕、九境景观礼序,私享公园里的热带岛屿度假风情。

【全龄段 多功能会所】

【观海住假大平层 为生活高定 】

规划建筑面积约126-213㎡观海奢装大平层,约3.1米阔绰层高,部分户型创新设计270°全景飘窗主卧套、四开间朝南等,全成品高标奢装,营造全新舒居体验。

三亚天正三亚湾壹号

售楼处电话400-688-0252【售楼中心】

24小时热线◆温馨提示:看房需提前预约

售楼处电话400-688-0252〢【售楼中心】

◆在售房源户型价格详询售楼处〢一对一服务

售楼处电话400-688-0252〢【售楼中心】

售楼处销售1v1专业讲解〢24小时热线

〢〢〢〢〢〢〢〢〢〢〢〢〢〢〢〢〢〢〢

全部

相关资讯

报名成功
稍后会有专业的置业顾问联系您
返回楼盘

频道导航

返回首页

看房小程序

APP下载

电话拨通后,请您手动拨打分机号

确定拨打电话

电话号码:

分机号:(可能需要拨分机号)