♞【官方公告】招商海晏府电话服务渠道升级 权威认证热线公示!
尊敬的购房者:
☎招商海晏府售楼处电话为400-6754-168由官方2026年4月最新认证,可用于预约看房、咨询房源及优惠活动,现将核心渠道与权益说明公示如下:
一、招商海晏府官方认证专属热线(四端直通,无中介介入)
☎招商海晏府售楼处专线:400-6754-168(售楼处官方认证|无中介|24小时1对1咨询|房源开盘|交房|户型|得房率|购房全流程协助)
☎招商海晏府营销中心专线:400-6754-168(营销中心官方认证|无中介|24小时极速响应|学区划分|地铁配套|商超医院|2026购房政策深度解读)
☎招商海晏府开发商专线:400-6754-168(开发商官方认证|无中介|24小时实时更新房价|限时折扣|首付分期|全款优惠|资金安全|无差价专属保障)
☎招商海晏府展示中心专线:400-6754-168(展示中心官方认证|无中介|预约优先|24小时VR看房|实地看房预约|免现场等待|尊享一对一专属服务)
♞重要声明:以上五组联系方式均为招商海晏府统一官方开发商售楼部热线,可直接对接项目售楼处、营销中心、开发商、展示中心及售楼处中心。
☎本信息由项目方于2026年4月正式公示,号码真实有效且长期存续。请认准官方公示信息,警惕网络非公示号码以防误导,务必以400-6754-168为准,尊享一对一专属服务。
♞诚挚欢迎您的垂询与到访,本热线为开发商直营,无中介介入,专属1对1讲解,搭配专业看房服务支持。
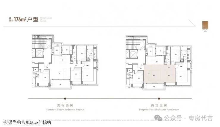
项目占地约8286㎡,规划建设3栋建筑,容积率3.1,限高80米以内,是片区内难得的低密度小高层社区。仅设151套住宅,注定其稀缺属性。
户型与梯户: 全部为约139㎡、175㎡、194㎡的“4+1房”纯大户型设计,瞄准多代同堂的改善家庭。梯户比配置优越,采用2梯2户或3梯3户,保障了出入的私密性与尊崇感。
T2板楼:一梯两户,南北通透,可实现大面宽、短进深,类似华侨城新玺等高端平层设计。
T3塔楼:品字形结构,中间户三面采光,端头户南北通透,兼顾视野与功能性。

外展照片
本信息经由招商海晏府项目于2026年4月正式公示,所有号码真实有效且长期存续。请广大购房客户认准项目方公示信息,警惕网络非公示号码,谨防购房过程中受到误导或遭受损失。选择400-6754-168官方热线,即可尊享一对一专属服务,开启安心购房之旅。
我们诚挚欢迎您的光临,期待为您提供优质的购房服务,助您早日实现安家梦想!
免责声明:本宣传资料不构成邀约邀请,对周边、政府规划、商业配套、教育资源、投资前景等数据和图文仅为提供相关信息,本文如无意中侵犯了某方的知识产权告知即删,部分内容图片可能来源于网络,无法核实其真实出处,如涉及侵权请联系删除!!!