西安「碧桂园云顶」
售楼处:029-88777723 (营销中心)
售楼部地址:029-88777723 (致电发送详情地址)
在售户型图丨项目详情介绍丨剩余房源丨项目周边配套丨详细在线解答

基本信息
楼盘价格: 参考均价 20000 元/㎡
物业类型: 普通住宅
区域板块: 曲江
产权年限: 70年
绿化率: 35%
容积率: 2.98
占地面积: 198亩
建筑面积: 358607平方米
总户数: 1171户
当期户数: 1171户
车位比: 1:1.4
物业费: 3.3元/m²/月
车位: 地上车位数172 ; 地下车位数2551
物业公司: 碧桂园智慧物业服务集团股份有限公司西安分公司
项目特色: 地铁沿线 4号线 改善好房
开发商: 西安碧盈置业有限公司
楼盘地址: 西安航天基地麟凤路以南,神舟四路以东,航天大道以北
【项目区位】

西安有多个外延中心(高新、经开、浐灞等),但是作为文化名片代表西安对话世界的唯有曲江。因此曲江也成为了闻名的富人聚集区。曲江一期为文化旅游度假区,二期引入金融服务和文化产业,打造了QCIC和CCBD两大核心。迄今都已发展成熟,大曲江格局已然形成,而碧桂园云顶正是选择了曲江,打造城市中的都市豪宅,坐拥全系成熟配套。

【医疗】
国际医疗综合体及航天总院、西安市人民医院、西北妇幼、强森医疗等。
【生态】
电竞主题公园、曲江文化运动公园、金辉运动公园、秦二世陵遗址公园、明秦宣王墓遗址公园等。

楼位分布图
D区本次推售
7#
建筑面积约190㎡品质人居作品

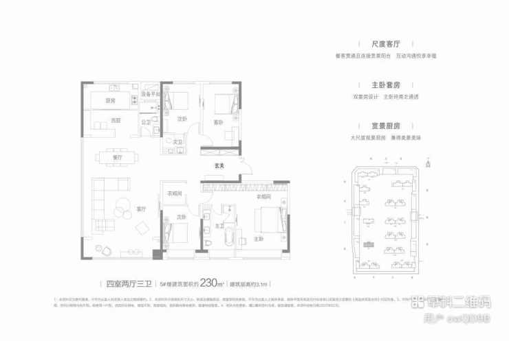
230户型
部分户型因位置、楼层、朝向的影响,相同面积的户型存在区别,以现场公示及实际销售双方签订合同为准



【亮点罗列】
【230㎡户型整体格局】2梯2户/1梯2户大平层豪宅,户型设计四室两厅三卫双套房,270 度无敌美景尽收眼底。
270°无敌视野,美好景观伺于脚下
约75 平米的餐客厅
约35 ㎡奢华主卧;
中西厨设置,考虑北方人的饮食习惯厨房操作台可做面食
双衣帽间设置
【碧桂园云顶】售楼处TEL:029-88777723 【售楼中心】
了解最新优惠折扣价格——请拨打售楼处