西安「唐樾六和坊」
售楼处:029-88777723 (营销中心)
售楼部地址:029-88777723 (致电发送详情地址)

基本信息
绿化率: 40.5%
容积率: 2.9
占地面积: 35964㎡
建筑面积: 98000㎡
总户数: 756户 (总户数756户 当期户数144户)
当期户数: 当期户数144户
车位比: 1:1.0
物业费: 1.5元/平方米·月
车位: 695个车位
物业公司: 西安天腾物业管理有限公司
楼盘价格: 参考均价 16900 元/㎡ 周边房价解读
物业类型: 普通住宅
区域板块: 城东
产权年限: 70年
项目特色: 改善好房
开发商: 陕西西瑞房地产开发有限责任公司
楼盘地址: 大明宫国家遗址公园东侧
楼盘介绍
唐樾·六和坊项目东临浐灞生态区、西接汉长安城遗址公园、南瞰曲江新区、北邻经济技术开发区、顺大明宫区域强势崛起之天时、承大明宫遗址公园核心版块之地利,纳六方之贵气,尽和于一地。
唐樾·六和坊为城市中产提供了一处真正“居有所境,因居而荣”的人文高端社区。项目占地约50亩,建筑面积约10万平方米,容积率区域罕有2.76,规划10栋18层纯板,户型全部南北通透,近90℅的得房率,是区域内目前全部规划为纯板小高层,面向二次及以上置业者的高端住区。

唐樾·六和坊为年轻精英精心打造90余平米华美两居,为城市中产家庭量身度制120-150平方米阔适三居,避免小户型与大户型人群混居,社区人群圈层同质化;都会配套、三大商圈,地铁2、3、4号线;项目打造十重安防体系,320万㎡中央公园,让世界成为你的后花园。

【项目配套】
1、交通:道路方面,项目北临北二环,东临东二环两大主干道,西边临近太和路,南邻太元路,东西南北四条干道均为该片区的的重要道路,自驾非常方便;近距地铁3号线(辛家庙站),约15分钟畅达曲江、浐灞、高铁站;约30分钟快速接驳高新;周边享有30余条公交线路,互联西安市各个区域。
2、教育:自配有唐樾乐高幼儿园,周边东前进小学、后宰门小学,太元路小学等,涵盖一站式优质教育资源,铺就菁英成才之路。


3、医疗:三甲西京医院、二甲唐城医院、北环医院、陕健医西安煤机医院等,权威医疗资源环伺,24小时呵护全家健康生活。

4、商业:百寰国际易达·生活中心、万达广场、UPARK悦邻荟、四海唐人街、大明宫购物中心等,成熟商圈云集,包罗生活万象精彩。

5、公园:西邻5400亩5A级景区大明宫遗址公园;南倚东元公园;东近桃花潭公园。三大公园环绕,私享城市低密森氧后花园。

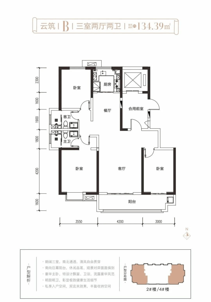
【户型赏析】


【唐樾六和坊】售楼处TEL:029-88777723 【售楼中心】
了解最新优惠折扣价格——请拨打售楼处