西安「领航云熙」
售楼处:029-88866690(营销中心)
售楼部地址:029-88866690(致电发送详情地址)
在售户型图丨项目详情介绍丨剩余房源丨项目周边配套丨详细在线解答

小区情况
建筑类型:高层
容积率住宅:5.5
绿化率:29%
交付标准:毛坯
交房时间:4号楼24年底 2.3号楼25.6.30
产权年限:70
总户数 :394
规划户数:756户
车位数:782
物业管理费住宅:2.2元/m²/月
物业公司:西安领航益众物业服务有限公司
区位成熟 地段稀缺

领航·云熙项目位于高新成熟区域,属于高新区最早期开发区域;周边生活氛围浓郁,餐饮、商超、医院、学校、公园环伺;本项目为该区域仅存的住宅地块之一,席位稀缺性不言而喻;居住于此可享尽高新繁华生活配套,同时节省上下班通勤时间,工作之余有更多私人时间休闲娱乐,幸福感得到最大满足。

商业:项目周边 2.5公里范围内高新商圈,周边汇集了高新大都荟、金鹰国际购物中心、世纪金花、T11BLOCK、华东万锦购物中心5大商场,距离项目仅800米有华润万家、人人乐大型生活超市,能够满足生活日常需求。
教育:项目3公里范围内有多所重点小学,中学及品质幼儿园。其中包括吉的堡幼儿园、莱安星座幼儿园、凯恩金堡国际幼儿园、品格紫薇臻品幼儿园、雁塔区第九幼儿园等。
小学:高新1小、高新2小、高新国际学校、日化小学、中华世纪城小学等,初中:高新一中、高新二中、高新国际中学等。(业主子女具体能上哪所学校,应以交房后教育局划分的学区为准)。

立体景观设计:一环一心一带两区
项目的景观设计从形象展示、核心塑造、全龄康养、时尚乐活的四个角度入手,为业主定制专属的、自然的生活空间。在延续场地文化精神的基础上,发挥场所、空间的最大价值,为所在区域的居民创造一个现代、舒适、自然、时尚的精神家园。
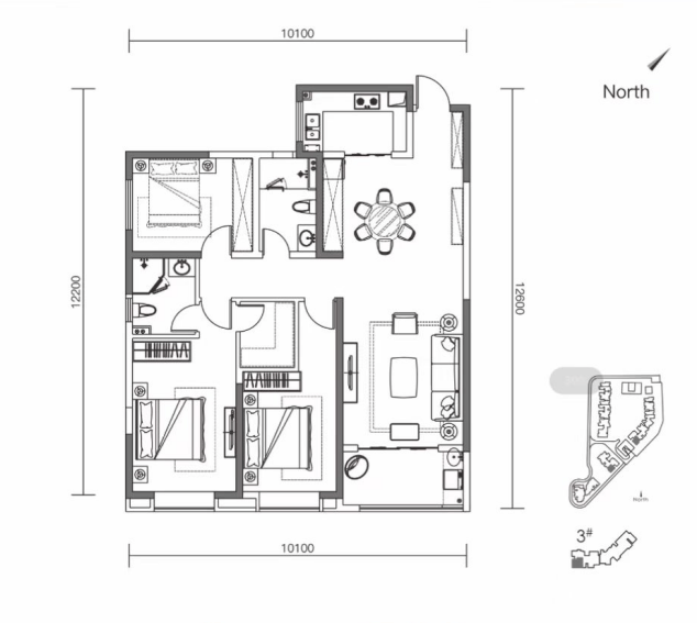
热销户型 市面稀缺
户型面积: 103-140㎡
功能划分:三室两厅、四室两厅
户型一:143㎡ 云峯 三室两厅两卫

户型二:141㎡ 云峯 四室两厅两卫
【领航云熙】售楼处TEL:029-88866690【售楼中心】
了解最新优惠折扣价格——请拨打售楼处