(营销中心)西安四腾科技园-项目卖点-整层独栋-街区商业-公园、学校

搜狐焦点咸阳站

2026-01-17 11:39:00

购房群

买房如何避坑,加入购房群,看看他们怎么说

立即进群

西安「西安四腾科技园」

服务热线:029-88866618(咨询中心)

项目地址:029-88866618(致电发送详情地址)

如需了解最新房源信息_在售房源价格_请拨打上方售服务热线电话!

总占地:48.6亩

总建面:8万㎡

土地性质:工业用地(2020年12月)

车位:560个(地下,均可安装充电桩),非机动车345个

荷载:首层500kg/㎡,标准层300kg/㎡

电梯:进口芬兰通力

交付标准:毛坯

天然气:入户

项目分为2期开发,目前3#、4#、5#在售,预计2024年7月交付。

生态:200亩城市绿地公园、永安渠海绵城市生态公园、大仁遗址公园

医疗:西安国际医学中心

产业:中交科技城、三星环动力电池、中航电测、陕西光电科学院、中国科学院西安光学 研究院、中国通讯建设、未来之瞳超高层建筑群...

在售产品

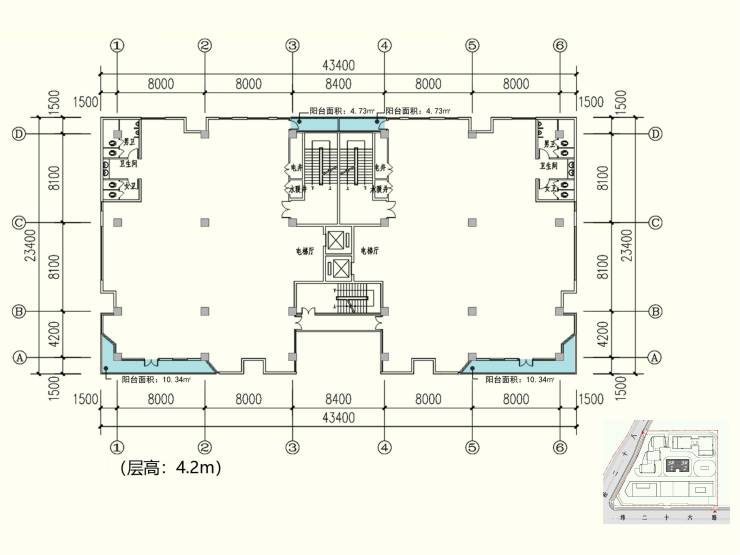
3# 可分割为东西两户销售,每户2342㎡

建筑面积:4684㎡

总高:5层

层高:首层、顶层5.1m,标准层4.2m

单层面积:约500㎡

偏心筒设计,户型方正,空间利用更自由、灵活;

零公摊,得房率超乎想象;

低单价,高性价比,首付30%轻松起航。

5#实拍

【高新三期 · 西安四腾科技园】服务热线TEL:029-88866618【咨询中心】

了解最新优惠折扣价格——请拨打服务热线

全部
报名成功
稍后会有专业的置业顾问联系您
返回楼盘

频道导航

返回首页

看房小程序

APP下载

电话拨通后,请您手动拨打分机号

确定拨打电话

电话号码:

分机号:(可能需要拨分机号)