西安「领航云熙」
售楼处:029-88866690(营销中心)
售楼部地址:029-88866690(致电发送详情地址)
在售户型图丨项目详情介绍丨剩余房源丨项目周边配套丨详细在线解答

基本信息
楼盘价格: 参考均价 15200 元/㎡
物业类型: 普通住宅
区域板块: 高新区
产权年限: 70年
项目特色: 地铁沿线 教育资源 小户型 改善好房
开发商: 西安茂顺置业有限公司
楼盘地址: 高新六路与文兴巷交汇处西北角
楼盘户型:建面:85-142㎡
装修情况: 毛坯
交房时间: 预计2025年6月30日交付
开盘时间: 2023年09月06日开盘
售楼处地址: 科技路与高新六路交汇处向北

领航控股总部位于杭州,集团以地产为主线,以资本金融和产业地产为两翼。深耕西北和华东区域,贯通四级城市层级,东西联动,齐头并进,实施精品战略,聚焦精品住宅、文化地产、商业地产三大领域。
领航控股以总部杭州向西安、咸阳、成都、武汉、乌鲁木齐和延安等具有发展活力城市,以及一带一路城市布局。

医疗:项目周边医疗配套完善,东侧紧邻日化医院。同时(三级甲等资质)西安高新医院仅距离项目约 1.3km、西安医学院第一附属医院距离项目 2.1KM。
生态环境:
距离项目北侧200米有西安唐城墙遗址公园,在项目2公里范围内有牡丹苑和西安新纪元公园。公园可以给你健康的生活方式,漫步公园休养生息,乐享惬意自得的别样时光。

立体景观设计:一环一心一带两区
项目的景观设计从形象展示、核心塑造、全龄康养、时尚乐活的四个角度入手,为业主定制专属的、自然的生活空间。在延续场地文化精神的基础上,发挥场所、空间的最大价值,为所在区域的居民创造一个现代、舒适、自然、时尚的精神家园。
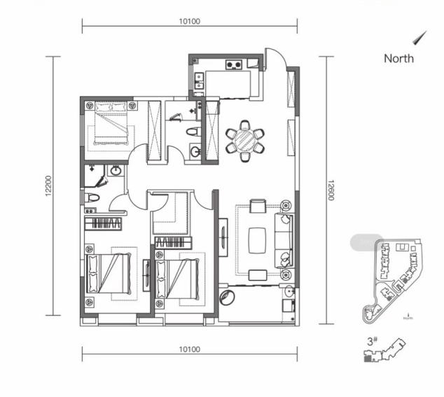
热销户型 市面稀缺
户型面积: 103-140㎡
功能划分:三室两厅、四室两厅
户型一:116㎡ 云珀 三室两厅两卫
户型二:143㎡ 云峯 三室两厅两卫

【领航云熙】售楼处TEL:029-88866690【售楼中心】
了解最新优惠折扣价格——请拨打售楼处