华清园文津观澜【售楼处】丨品牌开发商丨产品介绍丨落户政策丨知名物业

搜狐焦点咸阳站

2025-08-21 17:03:00

购房群

买房如何避坑,加入购房群,看看他们怎么说

立即进群

西安「华清园文津观澜」

售楼处:029-68866626(营销中心)

售楼部地址:029-68866626(致电发送详情地址)

小区规划

绿化率: 30%

容积率: 2.67

占地面积: 约64亩

建筑面积: 16万方

总户数: 918户

当期户数: 906户

车位比: 1:1.2

物业费: 2.2元/㎡·月

车位: 共1021个车位

物业公司: 西安市万科物业服务有限公司

在了解项目之前,我们先来看看华清园•文津观澜项目品牌,是启迪控股旗下子公司华清园,启迪控股也是国家现代服务业示范单位。依托于清华大学设立,是清华科技园开发建设和运营管理单位。

项目整体占地约370亩,总建面约78万㎡,分六期开发。容积率低至2.8,绿化率高达35%,共规划47栋楼,其中住宅43栋,写字楼4栋,总户数3712户,规划车位5550个(住宅4289个,商业1261个)。

项目一期共规划11栋楼,已于2018年5月首推全部售罄。二期位于一期南侧,占地约46亩,是由6栋20层的高层和3栋6+1的洋房组成,目前二期也已经售罄。

周边配套:

教育 /“名校+”示范区 15年优教体系

秦汉新城率先实施“名校+”计划,与众多品牌教育集团合作,打造菁英教育体系,助力孩子精彩未来。

【幼教】:自配品质幼儿园,不出社区,即享“目送式”优教,降低家长接送时间成本。

【小学】:距后宰门小学秦汉分校约300米 ,约30个班,1350个学位,省级示范教育资源,举步可达。

【中学】:一路之隔省级示范高中清华附中秦汉学校,师资雄厚,文化氛围浓厚。

医疗:空军军医大学秦汉校区(建设中)、陕西省西咸新区人民医院,西安儿童医院经开院区,西安红会国际医院

生态 / 公园水岸簇拥 建筑与园林共鸣

秦汉新城渭水穿境,公园聚集,区域绿化率高达约70%,超越曲江、浐灞。

【公园】近距总面积103万平方米渭河湿地公园、约7628亩大秦文明园(包含秦咸阳城考古遗址公园、咸阳博物院、秦文明广场三大板块)。

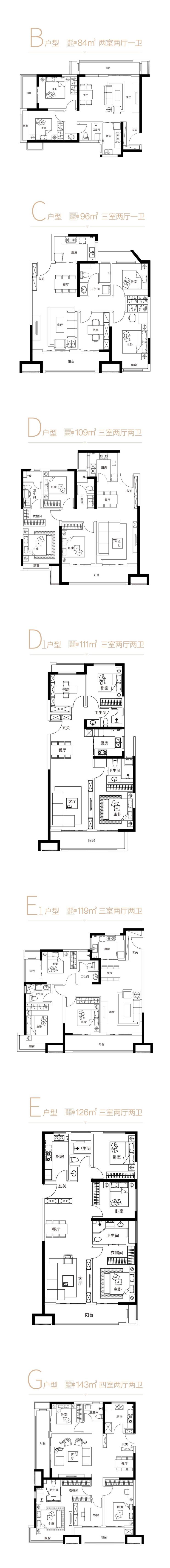
主推户型

【华清园文津观澜】售楼处TEL:029-68866626【售楼中心】

了解最新优惠折扣价格——请拨打售楼处

全部

相关资讯

报名成功
稍后会有专业的置业顾问联系您
返回楼盘

频道导航

返回首页

看房小程序

APP下载

电话拨通后,请您手动拨打分机号

确定拨打电话

电话号码:

分机号:(可能需要拨分机号)