写字楼【西安四腾科技园】-实景展示-户型方正-空间自由-建筑类型

搜狐焦点咸阳站

2025-10-21 11:45:12

购房群

买房如何避坑,加入购房群,看看他们怎么说

立即进群

西安「西安四腾科技园」

售楼处:029-88866618(营销中心)

售楼部地址:029-88866618(致电发送详情地址)

总占地:48.6亩

总建面:8万㎡

土地性质:工业用地(2020年12月)

车位:560个(地下,均可安装充电桩),非机动车345个

荷载:首层500kg/㎡,标准层300kg/㎡

电梯:进口芬兰通力

交付标准:毛坯

天然气:入户

项目分为2期开发,目前3#、4#、5#在售,预计2024年7月交付。

高新三期 · 西安四腾科技园

西安四腾科技园为高新三期重点项目,项目总投资额5.2亿元,占地约48.6亩,总建筑面积约8万平方米。

项目由西安四腾企业集团旗下企业——西安四腾新技术有限公司投资建设,集团扎根西安高新区30年,是医用空气净化领域的行业龙头。

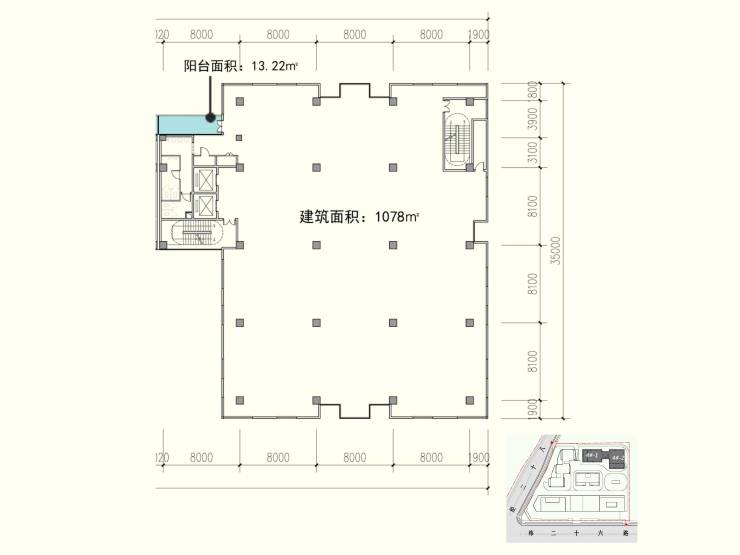
4#-2单元 整栋出售

建筑面积:8212㎡

总高:8层

层高:首层4.5m,标准层3.9m

标准层面积:1078㎡

偏心筒设计,户型方正,空间利用更自由、灵活;

零公摊,得房率超乎想象;

低单价,高性价比,首付30%轻松起航。

3#实拍

【高新三期 · 西安四腾科技园】租售中心TEL:029-88866618【租售中心】

了解最新优惠折扣价格——请拨打租售中心

全部
报名成功
稍后会有专业的置业顾问联系您
返回楼盘

频道导航

返回首页

看房小程序

APP下载

电话拨通后,请您手动拨打分机号

确定拨打电话

电话号码:

分机号:(可能需要拨分机号)