(营销中心)华清园文津观澜丨24小时热线丨一房一价丨花园洋房丨知名物业

搜狐焦点咸阳站

2025-06-26 18:24:00

购房群

买房如何避坑,加入购房群,看看他们怎么说

立即进群

西安「华清园文津观澜」

售楼处:029-68866626(营销中心)

售楼部地址:029-68866626(致电发送详情地址)

基本信息

楼盘价格: 参考均价 11500 元/㎡

物业类型: 洋房 普通住宅

区域板块: 西咸新区

产权年限: 普通住宅:70年

项目特色: 教育资源 小户型 改善好房

开发商: 陕西佳莲房地产开发有限公司

楼盘地址: 兰池二路与秦宫二路东南侧

在了解项目之前,我们先来看看华清园•文津观澜项目品牌,是启迪控股旗下子公司华清园,启迪控股也是国家现代服务业示范单位。依托于清华大学设立,是清华科技园开发建设和运营管理单位。

项目整体占地约370亩,总建面约78万㎡,分六期开发。容积率低至2.8,绿化率高达35%,共规划47栋楼,其中住宅43栋,写字楼4栋,总户数3712户,规划车位5550个(住宅4289个,商业1261个)。

项目一期共规划11栋楼,已于2018年5月首推全部售罄。二期位于一期南侧,占地约46亩,是由6栋20层的高层和3栋6+1的洋房组成,目前二期也已经售罄。

项目展示

园林规制“两轴四组团”社区园林景观

构筑集生态、人文于一体的当代都市文教住区

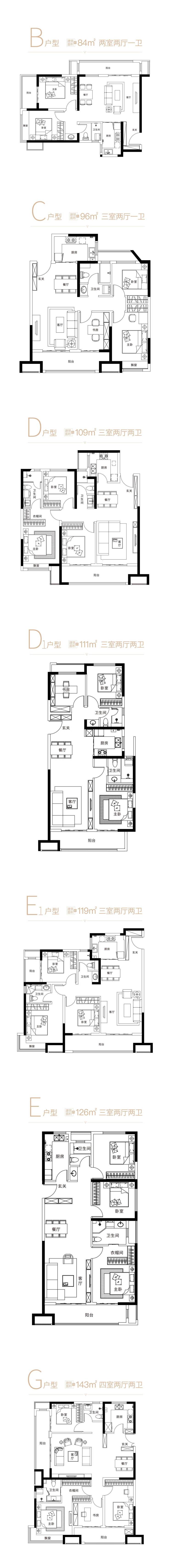
匠心铸造建筑面积约84-143㎡河居阔景小高层

主推户型

【华清园文津观澜】售楼处TEL:029-68866626【售楼中心】

了解最新优惠折扣价格——请拨打售楼处

全部
报名成功
稍后会有专业的置业顾问联系您
返回楼盘

频道导航

返回首页

看房小程序

APP下载

电话拨通后,请您手动拨打分机号

确定拨打电话

电话号码:

分机号:(可能需要拨分机号)