西安华清园文津观澜丨容积率丨一房一价丨位置交通图丨知名物业

搜狐焦点咸阳站

2025-06-09 07:00:00

购房群

买房如何避坑,加入购房群,看看他们怎么说

立即进群

西安「华清园文津观澜」

售楼处:029-68866626(营销中心)

售楼部地址:029-68866626(致电发送详情地址)

在售户型图丨项目详情介绍丨剩余房源丨项目周边配套丨详细在线解答

售楼中心_欢迎来电咨询!预约尊享优惠折扣_匠心钜制恭迎品鉴!

如需了解最新房源信息_在售房源价格_请拨打上方售楼部电话!

项目概况:

华清园·文津观澜

▪建筑面积:约16.1万㎡

▪绿地率 :约30%

▪楼 高:9-12层

▪物业类型:小高层&洋房

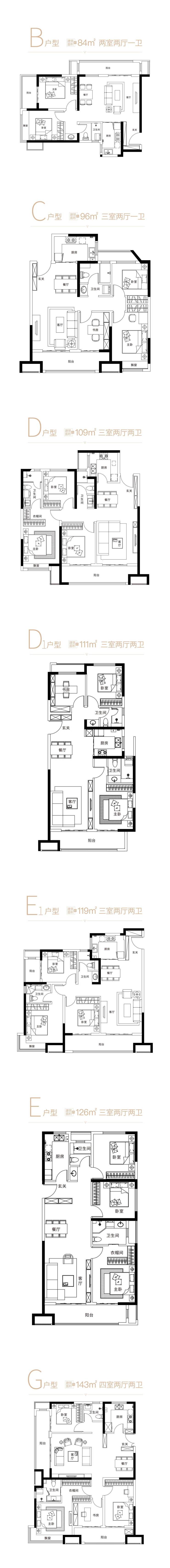
▪产品面积:约84-143㎡

▪梯 户 比 :2T4、2T5

▪物业公司:万科物业

▪开 发 商 :陕西佳莲房地产开发有限公司

在了解项目之前,我们先来看看华清园•文津观澜项目品牌,是启迪控股旗下子公司华清园,启迪控股也是国家现代服务业示范单位。依托于清华大学设立,是清华科技园开发建设和运营管理单位。

项目整体占地约370亩,总建面约78万㎡,分六期开发。容积率低至2.8,绿化率高达35%,共规划47栋楼,其中住宅43栋,写字楼4栋,总户数3712户,规划车位5550个(住宅4289个,商业1261个)。

项目一期共规划11栋楼,已于2018年5月首推全部售罄。二期位于一期南侧,占地约46亩,是由6栋20层的高层和3栋6+1的洋房组成,目前二期也已经售罄。

周边配套:

教育 /“名校+”示范区 15年优教体系

秦汉新城率先实施“名校+”计划,与众多品牌教育集团合作,打造菁英教育体系,助力孩子精彩未来。

【幼教】:自配品质幼儿园,不出社区,即享“目送式”优教,降低家长接送时间成本。

【小学】:距后宰门小学秦汉分校约300米 ,约30个班,1350个学位,省级示范教育资源,举步可达。

【中学】:一路之隔省级示范高中清华附中秦汉学校,师资雄厚,文化氛围浓厚。

医疗:空军军医大学秦汉校区(建设中)、陕西省西咸新区人民医院,西安儿童医院经开院区,西安红会国际医院

生态 / 公园水岸簇拥 建筑与园林共鸣

秦汉新城渭水穿境,公园聚集,区域绿化率高达约70%,超越曲江、浐灞。

【公园】近距总面积103万平方米渭河湿地公园、约7628亩大秦文明园(包含秦咸阳城考古遗址公园、咸阳博物院、秦文明广场三大板块)。

主推户型

【华清园文津观澜】售楼处TEL:029-68866626【售楼中心】

了解最新优惠折扣价格——请拨打售楼处

全部
报名成功
稍后会有专业的置业顾问联系您
返回楼盘

频道导航

返回首页

看房小程序

APP下载

电话拨通后,请您手动拨打分机号

确定拨打电话

电话号码:

分机号:(可能需要拨分机号)