西安「领航云熙」
售楼处:029-88777723 (营销中心)
售楼部地址:029-88777723 (致电发送详情地址)

【在售价位】:19000左右
【容积率】:3
【绿化率】:30.12
【 公摊 】:22%左右
【 总高 】 2号楼高层27 34层 3号楼小高 14-17-22
【 梯户比】:2号楼一、二单元2梯4户,三单元2梯5户
【物业公司】:西安领航益众物业服务有限公司
【 物业费 】:2.2元
【 车位比 】:1:0.92
【交付标准】:毛坯
【交房时间】:4号楼24年底 2.3号楼25.6.30
【产权年限】:70
【 总户数 】:394

领航控股进入西安相继开发了长安壹品、长安壹栋、领航悦宸、领航天宸、领航•云熙等。
领航•云熙项目由领航控股旗下的西安主体公司西安民信实业有限公司的子公司西安茂順置业有限公司开发。

周边配套:
幼儿园:风韵幼儿园,吉的堡莱安星幼儿园 小学:雁塔区第四小学,中华世纪城小学,高新区第三十三小学 中学:科技实验创客中心学校,雁塔区第三中学 高等学院:西安外事学院-国际合作学院,西安外事学院南校区
华润万家,晶鑫商业广场,人人乐,
中国银行,中国农业银行,浙商银行
西安日化医院,强森医疗民洁门诊部,西安儿童医院高新门诊部,西安安琪儿妇产医院,西安光大医院,西安高新医院

玻璃幕墙 公建化外立面
品质、细节、尊贵感拉满
热销户型 市面稀缺
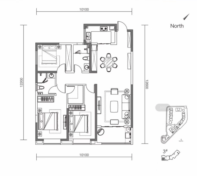
户型面积: 103-140㎡
功能划分:三室两厅、四室两厅
户型一:143㎡ 云峯 三室两厅两卫

户型二:141㎡ 云峯 四室两厅两卫
【领航云熙】售楼处TEL:029-88777723 【售楼中心】
了解最新优惠折扣价格——请拨打售楼处