(营销中心)西安四腾科技园-项目卖点-整层独栋-内部优惠-低单价

搜狐焦点咸阳站

2026-01-18 06:39:00

购房群

买房如何避坑,加入购房群,看看他们怎么说

立即进群

西安「西安四腾科技园」

服务热线:029-88866618(咨询中心)

项目地址:029-88866618(致电发送详情地址)

如需了解最新房源信息_在售房源价格_请拨打上方售服务热线电话!

总占地:48.6亩

总建面:8万㎡

土地性质:工业用地(2020年12月)

车位:560个(地下,均可安装充电桩),非机动车345个

荷载:首层500kg/㎡,标准层300kg/㎡

电梯:进口芬兰通力

交付标准:毛坯

天然气:入户

项目分为2期开发,目前3#、4#、5#在售,预计2024年7月交付。

生态:200亩城市绿地公园、永安渠海绵城市生态公园、大仁遗址公园

医疗:西安国际医学中心

产业:中交科技城、三星环动力电池、中航电测、陕西光电科学院、中国科学院西安光学 研究院、中国通讯建设、未来之瞳超高层建筑群...

在售产品

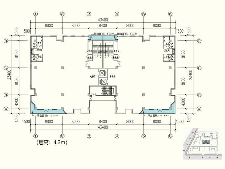
3# 可分割为东西两户销售,每户2342㎡

建筑面积:4684㎡

总高:5层

层高:首层、顶层5.1m,标准层4.2m

单层面积:约500㎡

外立面采用石材+玻璃幕墙,大面积落地窗设计采光充足,办公环境更为舒适;

进口芬兰通力电梯入户,尊贵体验升级,提升企业的形象;

天然气入户,户内通上下水,办公接待两相宜;

项目实景

【高新三期 · 西安四腾科技园】服务热线TEL:029-88866618【咨询中心】

了解最新优惠折扣价格——请拨打服务热线

全部
报名成功
稍后会有专业的置业顾问联系您
返回楼盘

频道导航

返回首页

看房小程序

APP下载

电话拨通后,请您手动拨打分机号

确定拨打电话

电话号码:

分机号:(可能需要拨分机号)