西安「领航云熙」
售楼处:029-88866690(营销中心)
售楼部地址:029-88866690(致电发送详情地址)
在售户型图丨项目详情介绍丨剩余房源丨项目周边配套丨详细在线解答
售楼中心_欢迎来电咨询!预约尊享优惠折扣_匠心钜制恭迎品鉴!
如需了解最新房源信息_在售房源价格_请拨打上方售楼部电话!

小区情况
建筑类型:高层
容积率住宅:5.5
绿化率:29%
交付标准:毛坯
交房时间:4号楼24年底 2.3号楼25.6.30
产权年限:70
总户数 :394
规划户数:756户
车位数:782
物业管理费住宅:2.2元/m²/月
物业公司:西安领航益众物业服务有限公司
项目位于科技路与高新六路十字向北200m;项目周边商场、医疗、教育、公园等各类生活配套齐全,属于高新一期核心生活区;

【交通配套】:3号线丈八北路站直线距离400米;8号线延平门站直线距离800米;5号线汉城南路站1.3km,833路,829路,高新2号线,高新3号线,高新5号线等

周边配套:
幼儿园:风韵幼儿园,吉的堡莱安星幼儿园 小学:雁塔区第四小学,中华世纪城小学,高新区第三十三小学 中学:科技实验创客中心学校,雁塔区第三中学 高等学院:西安外事学院-国际合作学院,西安外事学院南校区
华润万家,晶鑫商业广场,人人乐,
中国银行,中国农业银行,浙商银行
西安日化医院,强森医疗民洁门诊部,西安儿童医院高新门诊部,西安安琪儿妇产医院,西安光大医院,西安高新医院

立体景观设计:一环一心一带两区
项目整体的空间结构为“一环一心一带两区”,其中一环指连接项目功能分区板块的环跑健身步道,一心指分布于小区公共核心位置的具有多功能的核心景观区,一带指项目的沿街商业景观带,两大分区分别为与核心景观区相连接的儿童活动区和运动休闲区
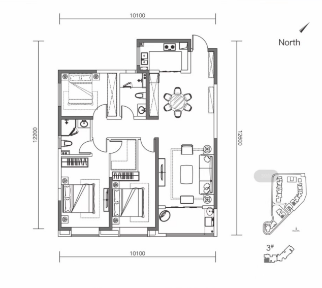
热销户型 市面稀缺
户型面积: 103-140㎡
功能划分:三室两厅、四室两厅
户型一:143㎡ 云峯 三室两厅两卫

户型二:141㎡ 云峯 四室两厅两卫
【领航云熙】售楼处TEL:029-88866690【售楼中心】
了解最新优惠折扣价格——请拨打售楼处