华清园文津观澜【特价商铺】丨容积率丨价值分析丨落户政策丨最新动态

搜狐焦点咸阳站

2025-10-16 15:03:49

购房群

买房如何避坑,加入购房群,看看他们怎么说

立即进群

西安「华清园文津观澜」

售楼处:029-88866690(营销中心)

售楼部地址:029-88866690(致电发送详情地址)

在售户型图丨项目详情介绍丨剩余房源丨项目周边配套丨详细在线解答

小区规划

绿化率: 30%

容积率: 2.67

占地面积: 约64亩

建筑面积: 16万方

总户数: 918户

当期户数: 906户

车位比: 1:1.2

物业费: 2.2元/㎡·月

车位: 共1021个车位

物业公司: 西安市万科物业服务有限公司

项目即将推售三期地块,规划建设净用地面积64亩,容积率2.68,绿化率为30%。三期地块南侧共分别设置2个人行及车行出入口,整个小区采用人车分流地下停车方式,共1265个车位。

三期参考二期产品和规划,进行了再次升级。整个三期共计规划12栋楼,共计918户,其中8栋为12层小高层产品,4栋为9层河景洋房产品,三期整体的楼层均不超过12层,结合项目临河属性,居住舒适度非常高。

项目建筑整体规划以科技感和学院风传承为本案设计主旨,立面设计色彩上墙面以浅色系仿石涂料为主,适当以咖色等较为跳跃的色彩营造整体活跃的风格特点,满足了不同业主的审美情趣,提升建筑品质。

项目展示

园林规制“两轴四组团”社区园林景观

构筑集生态、人文于一体的当代都市文教住区

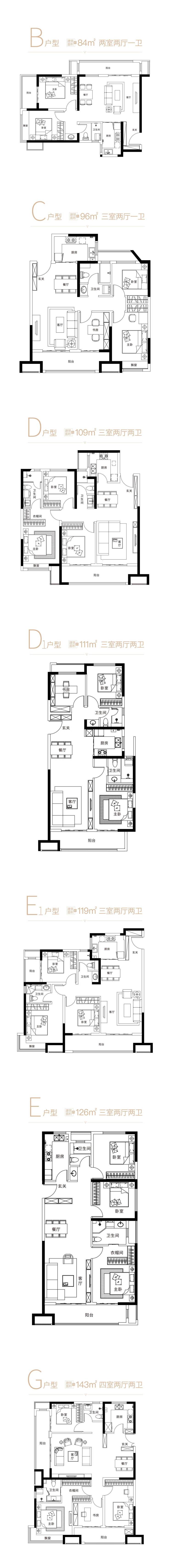
匠心铸造建筑面积约84-143㎡河居阔景小高层

主推户型

【华清园文津观澜】售楼处TEL:029-88866690【售楼中心】

了解最新优惠折扣价格——请拨打售楼处

全部
报名成功
稍后会有专业的置业顾问联系您
返回楼盘

频道导航

返回首页

看房小程序

APP下载

电话拨通后,请您手动拨打分机号

确定拨打电话

电话号码:

分机号:(可能需要拨分机号)