西安「华清园文津观澜」
售楼处:029-68866626(营销中心)
售楼部地址:029-68866626(致电发送详情地址)
在售户型图丨项目详情介绍丨剩余房源丨项目周边配套丨详细在线解答
小区规划
绿化率: 30%
容积率: 2.67
占地面积: 约64亩
建筑面积: 16万方
总户数: 918户
当期户数: 906户
车位比: 1:1.2
物业费: 2.2元/㎡·月
车位: 共1021个车位
物业公司: 西安市万科物业服务有限公司
作为我国第七个国家级新区,西咸新区的发展定位是现代化大西安新中心、西部大开发的新引擎、丝绸之路经济带重要支点、国家创新城市发展方式试验区。
西咸新区还兼具国家级新区和西咸自贸区双重属性,现已形成“双区”联动发展新格局,自贸区的经济新引擎不断提高城市品质,为新区增添新的“加速度”。
纵揽区域内优质资源,重塑悦居生活范本
教育
秦汉新城贯彻“名校+”战略,引入100%本科上线率的清华附中秦汉学校、后宰门小学秦汉分校,北京大学雄厚实力的燕园科教创新谷项目,等名校资源,助推秦汉教育体系再升级
交通
秦汉新城作为“北跨”重点区域,是大西安未来的黄金交通枢纽。地铁14号线已通车运营,可实现与2/3/4号线无缝畅连构建半小时生活圈。高速路网、西安咸阳国际机场、西安高铁站,打造多维度立体交通网络,可快速抵达灵宝、三门峡、甘肃等省市。
生态
拥河“北跨”,跨渭发展,渭河将成为西安的城中河,位处“北跨”战略门户的秦汉新城。将成为大西安未来城市核芯有“生态田园都市”之称的秦汉新城,区域绿化率高达约70%,拥享数公里渭河生态景观带,大秦文明园等生态绿地。
医疗
在颐养健康领域,四所三甲医院环绕,空军军医大学秦汉校区、西安红会国际医院,西安儿童医院经开院区(驾车约11分钟)陕西省人民医院西咸院区(驾车约13分钟)。

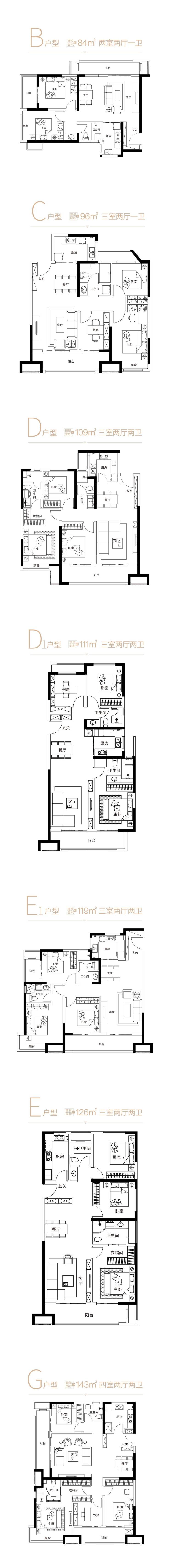
主推户型
【华清园文津观澜】售楼处TEL:029-68866626【售楼中心】
了解最新优惠折扣价格——请拨打售楼处