西安「金辉城君澜河景别院」
售楼处:029-88777792(营销中心)
售楼部地址:029-88777792(致电发送详情地址)
如需了解最新房源信息_在售房源价格_请拨打上方售楼部电话!

一线滨水,直观泾河景致
区域难得河景资源叠院用地,君澜直观泾河一线景致,17公里大河宏阔空间,不止容载万物气度,更容纳宽天阔院所有想象,对水岸资源的占有,天生稀贵。宽境尺度,进阶人居理想
一席宽奢之境,承载从容生活,郎阔厅堂,谈笑风生的会客场;巨幕阳台,生活倾心悦其境;上下三境,和而不扰,志趣场、社交场、休憩场有序分层,生活不被空间所限,尽享舒适高雅领地。
销售状态: 在售
楼盘户型建面:177-249㎡
装修情况: 毛坯
交房时间: 2023年9月25日交付
开盘时间: 2021年12月15日已开盘
售楼处地址: 茶马大道与泾河大道交汇处向西
绿化率: 30%
容积率: 0.65
占地面积: 占地1046亩
建筑面积: 总建筑面积约255万㎡
总户数: 约16000户
车位比: 1:0.8
车位: 地上车位数1607 ; 地下车位数14478
物业公司: 金辉锦江物业
实景图
金辉产品系
[云系]
5C轻奢云生态理想改善人居
[大城系]
荟一城璀璨 纳世界生活
自造城市来来中心
定位“国际大城”醇魅功能区
(君澜A三层平面图)
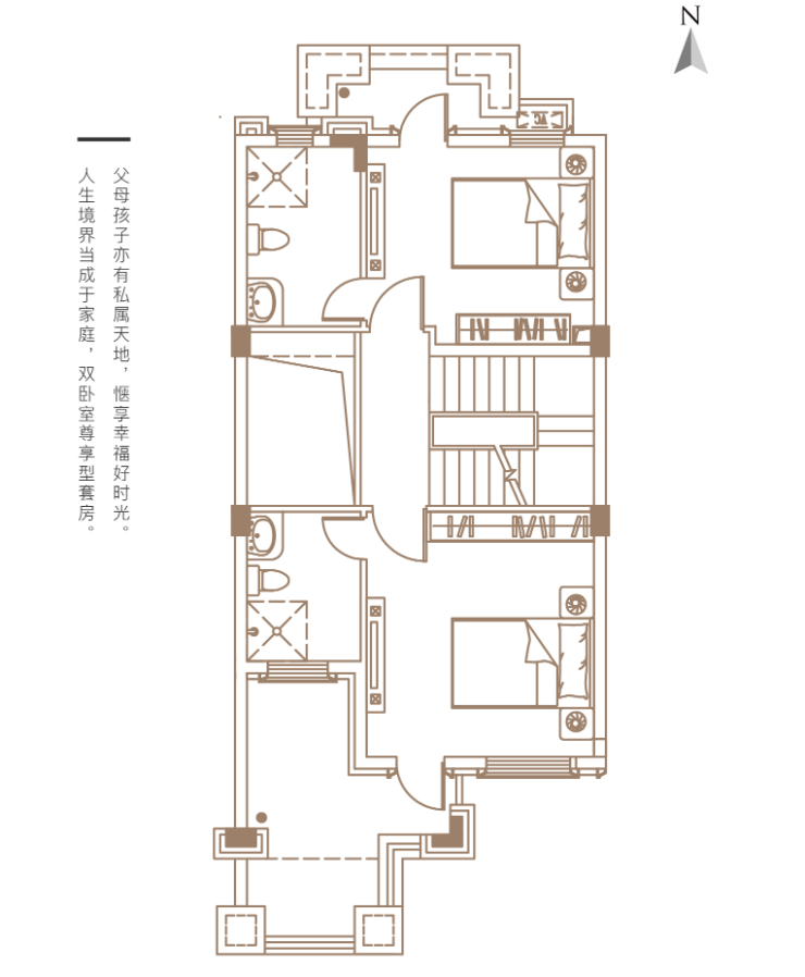
君澜B
建面约182㎡ 三室两厅四卫

(君澜B一层平面图)

(君澜B二层平面图)


【产品价值】
西安北心,城市热土之上
在新一轮的发展中,城市提速更迭,续写一个又一个流动的城市史诗。项目位居西咸新区五大组团之一,大西安北跨战略核心区,2021年一季度区域生产总值(GDP)同比增长26.9%,位列西咸新区第一(数据来源:西咸新区泾河新城)劳动密集型+人才密集型等众多优质企业聚焦,大西安腾飞热土。
文旅高地,执掌一城繁华所向
国家地理坐标经纬度起点和基准点--大地原点,中国第一高砖塔--崇文塔;国家4A级景区--约2200亩茯茶镇,恒大童世界、乐华欢乐世界等大型主题乐园环伺
文旅资源加持,繁华所向,丰盈日常生活。

【金辉城君澜河景别院】售楼处TEL:029-88777792【售楼中心】
了解最新优惠折扣价格——请拨打售楼处