(营销中心)西安四腾科技园-在售楼栋-大型企业办公-空间自由-公园、学校

搜狐焦点咸阳站

2026-01-19 06:39:00

购房群

买房如何避坑,加入购房群,看看他们怎么说

立即进群

西安「西安四腾科技园」

服务热线:029-88866618(咨询中心)

项目地址:029-88866618(致电发送详情地址)

在售户型图丨项目详情介绍丨剩余房源丨项目周边配套丨详细在线解答

如需了解最新房源信息_在售房源价格_请拨打上方售服务热线电话!

总占地:48.6亩

总建面:8万㎡

土地性质:工业用地(2020年12月)

车位:560个(地下,均可安装充电桩),非机动车345个

荷载:首层500kg/㎡,标准层300kg/㎡

电梯:进口芬兰通力

交付标准:毛坯

天然气:入户

项目分为2期开发,目前3#、4#、5#在售,预计2024年7月交付。

生态:200亩城市绿地公园、永安渠海绵城市生态公园、大仁遗址公园

医疗:西安国际医学中心

产业:中交科技城、三星环动力电池、中航电测、陕西光电科学院、中国科学院西安光学 研究院、中国通讯建设、未来之瞳超高层建筑群...

在售产品

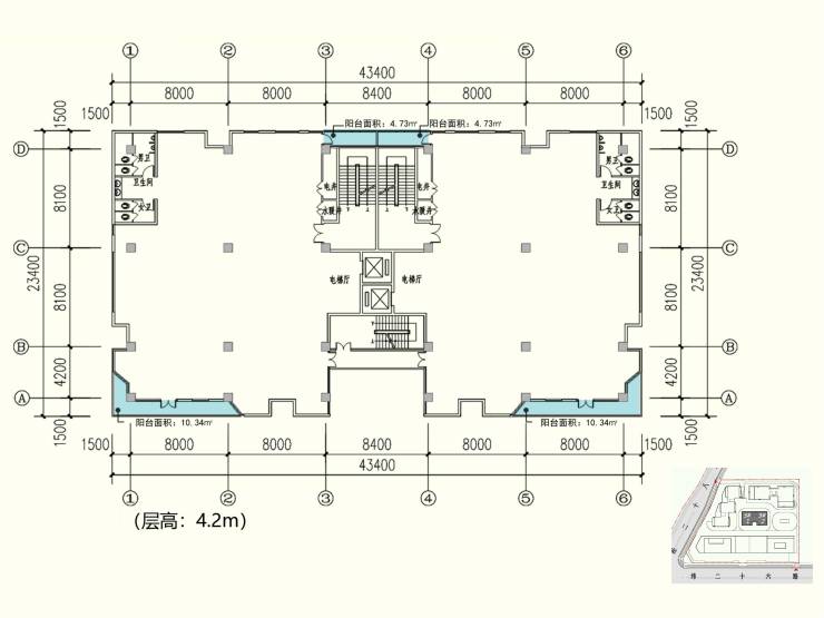
3# 可分割为东西两户销售,每户2342㎡

建筑面积:4684㎡

总高:5层

层高:首层、顶层5.1m,标准层4.2m

单层面积:约500㎡

外立面采用石材+玻璃幕墙,大面积落地窗设计采光充足,办公环境更为舒适;

进口芬兰通力电梯入户,尊贵体验升级,提升企业的形象;

天然气入户,户内通上下水,办公接待两相宜;

5#实拍

【高新三期 · 西安四腾科技园】服务热线TEL:029-88866618【咨询中心】

了解最新优惠折扣价格——请拨打服务热线

全部
报名成功
稍后会有专业的置业顾问联系您
返回楼盘

频道导航

返回首页

看房小程序

APP下载

电话拨通后,请您手动拨打分机号

确定拨打电话

电话号码:

分机号:(可能需要拨分机号)