(租售中心)华清园文津观澜商铺丨24小时热线丨价值分析丨花园洋房丨周边配套

搜狐焦点咸阳站

2025-10-22 12:15:00

购房群

买房如何避坑,加入购房群,看看他们怎么说

立即进群

西安「华清园文津观澜」

售楼处:029-88866690(营销中心)

售楼部地址:029-88866690(致电发送详情地址)

在售户型图丨项目详情介绍丨剩余房源丨项目周边配套丨详细在线解答

小区规划

绿化率: 30%

容积率: 2.67

占地面积: 约64亩

建筑面积: 16万方

总户数: 918户

当期户数: 906户

车位比: 1:1.2

物业费: 2.2元/㎡·月

车位: 共1021个车位

物业公司: 西安市万科物业服务有限公司

作为我国第七个国家级新区,西咸新区的发展定位是现代化大西安新中心、西部大开发的新引擎、丝绸之路经济带重要支点、国家创新城市发展方式试验区。

西咸新区还兼具国家级新区和西咸自贸区双重属性,现已形成“双区”联动发展新格局,自贸区的经济新引擎不断提高城市品质,为新区增添新的“加速度”。

商业配套:项目自身有园区配套,后期也会有集中性商业和社区底商。项目西侧约1公里有大秦文明园地下商业广场,以“秦文化”为主题,打造及文化艺术中心、秦风情街、文化艺术体验区全方位的商业模式。

生态环境:项目南侧一路之隔紧邻的就是渭河生态景观带,全长18公里,整个渭河生态景区绿化面积约2.93万亩,水面面积4963亩,囊括河滩景观带,滨河大道景观带和绿色长廊景观带等。

交通方面:项目东临秦宫三路,西至秦宫二路,北临兰池三路,南至兰池大道。项目北侧紧邻地铁14号线,该线路北接机场,横贯秦汉新城,途经北客站最终到达港务区。离项目最近的站点是地铁14号线秦宫站,直线距离大约1.3公里。项目周边还有多条公交线路开通(咸阳32路,咸阳33路,361路,362路,1010路,1145路,1140路,西咸39路),为业主的出行提供了极大的便利。与此同时,项目东侧2公里左右,秦汉收费站口的开通,也极大方便了项目到机场和市区的时间。

教育资源:项目分别位四期和六期设立幼儿园。除项目本身教育资源外,在项目北侧一路之隔是清华附中秦汉学校,是一所公办全日制寄宿制学校。项目西侧两公里是星河湾西交康桥学校,东侧约3公里有兰池学校(具体能上哪所学校要根据交房后有关部门划分为准)。

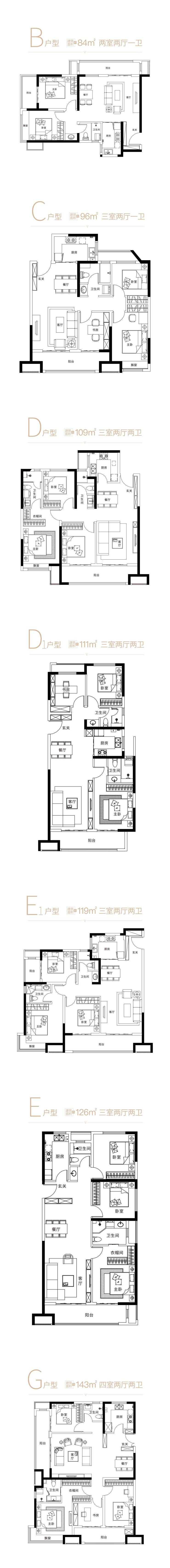
主推户型

【华清园文津观澜】售楼处TEL:029-88866690【售楼中心】

了解最新优惠折扣价格——请拨打售楼处

全部
报名成功
稍后会有专业的置业顾问联系您
返回楼盘

频道导航

返回首页

看房小程序

APP下载

电话拨通后,请您手动拨打分机号

确定拨打电话

电话号码:

分机号:(可能需要拨分机号)