特发·香阅里售楼处首页网站全新上线!特发·香阅里2025 深度评测来袭,涵盖房价户型、商圈配套等,速览楼盘最新价格,解锁多样户型 。

搜狐焦点孝感站

2025-07-08 09:55:26

购房群

买房如何避坑,加入购房群,看看他们怎么说

立即进群

临港大户型、公园首排【特发·香阅里预约热线☎:400-8080-420✅✅】资料大全

【特发·香阅里预约热线☎:400-8080-420✅✅ | 公园首排封面大宅】

105金融芯 中轴之上 双轨交汇(建设中)

建面约109-170㎡阔景华宅 献映临港

特发·香阅里预约热线☎:400-8080-420✅✅

6月28日

售楼处开放活动,

著名主持人曹可凡主持

特发·香阅里预约热线☎:400-8080-420✅✅

【项目简介】

项目位置:上海·临港105·环湖北三路与川朴路交汇处

总建筑面积:约13.9万㎡

产品业态:规划12栋14-16F小高层,临街商业

主力户型:建面约109-170㎡三房/四房

临港值此双园(规划中)首排纯粹大宅,定鼎人居标杆

特发·香阅里预约热线☎:400-8080-420✅✅

【核芯站位】

105中轴·据守繁华心脏

世界临港:定位为具有国际竞争力的特殊经济功能区;5年以19.8%增速擎动新质生产力,四海智汇,跨境创新潮涌东海之滨。

到2035年将逐步建成具有较强国际市场影响力和竞争力的特殊经济功能区核心承载区,“开放创新、智慧生态、产城融合、宜居宜业”的链接全球、辐射长三角的独立综合性节点滨海城市,令人向往的“东海明珠”。

(信息来源:新片区总规划、南汇新城“十四五”规划建设行动方案)

中轴CAZ:特发·香阅里预约热线☎:400-8080-420✅✅立踞临港现代服务业开放区(105片区),自贸试验区+中央活动区的双重定位激活临港中轴动脉,未来开放区枢纽将打造成集新型国际贸易、交通枢纽、金融财富、时尚生活趋势、免税消费中心、国际交往目的地于一体的繁华会客厅,链接浦东机场T3航站楼(建设中)、上海东站(建设中) 、虹桥机场的关键节点,以城市之心的跳动,对话世界繁华。

(信息来源:新片区总规划、临港开放区站城一体项目规划方案)

特发·香阅里预约热线☎:400-8080-420✅✅

交通聚合:双轨交汇,与南汇线(建设中)、南枫线(建设中)所在的滴水湖北站直线相距约650米,4站直达东方枢纽(建设中),执掌城市动脉;与16号线滴水湖站直线相距约2公里,另有多种出行方式,快速通达全城,27号线(规划中)、临港市区线(规划中)等众多路网编织立体交通网,启幕全球视野。

(信息来源:南汇新城规划图,数据来源:百度地图)

特发·香阅里预约热线☎:400-8080-420✅✅

特发·香阅里预约热线☎:400-8080-420✅✅

全维鼎配:拥揽一众地标资源

【书香为邻】冰厂田滴水湖幼儿园(星瀚部)、上海财经大学附属浦东临港小学、上海临港耀中外籍人员子女学校(建设中)、十二年一贯制滴水湖学校在侧,临港新办多所优质学校,书香浸润,成长无忧。

(信息来源:“南汇新城镇发布”公众号)

【商业林立】临港105片区开放区枢纽段将打造成兼具自贸区与城市核心功能的CAZ,同步世界潮流,坐享城市门户。临港新片区商业多点布局,星空之境综合体-星海汇(建设中)、港城新天地、蓝鲸世界(建设中)、临港印象城MEGA(建设中)、城市书香商业街等众多繁华商业驾车可达。

(信息来源:南汇新城规划图、“上规SPC"公众号,数据来源:百度地图)

【医疗护航】上海市第六人民医院东院(三甲医院)已投入使用,同时六院二期建设中,届时将满足更多高端人才就医需求,打造高水平多层次医疗和健康体检运营模式。另有多所规划中的医院,如曙光医院滴水湖中医国际诊疗中心(规划中)星罗棋布,为健康保驾。

(信息来源:南汇新城规划图、“浦东发布”公众号)

【文旅地标】上海天文馆、耀雪冰雪世界、上海海昌海洋公园、中国航海博物馆等一众娱乐目的地环伺周边,生活精彩纷呈。

特发·香阅里预约热线☎:400-8080-420✅✅

🏞【极幕视野】

双园首排|IMAX视野

西南向约54万㎡星空之境海绵公园与二环公园带(规划中),交织都荟诗意,约550米无遮拦的公园(规划中)视野南抵荣耀之环(建设中),东揽城市公园(规划中)。置身于此,仿佛被无垠的自然温柔环抱。

(信息来源:上海市规划和自然资源局,数据来源:百度地图)

特发·香阅里预约热线☎:400-8080-420✅✅

特发·香阅里预约热线☎:400-8080-420✅✅

公园首排、公园视角

【封面藏品】

国企特发|精工品质

特发地产承袭特发集团(深圳国企)先试先行,敢为人先的基因,以深耕深圳、多点布局的城市更新经验,结合鲁班奖工艺(特发·和平里)基底,匠心浇筑绿建三星超低能耗建筑为健康护航,致敬巴黎拉德芳斯拱门艺术,成就临港封面改善作品。

特发·香阅里预约热线☎:400-8080-420✅✅

双轴六园|森境诗章

匠造「一环两轴六园」的森居谧境,约650米氧气跑道串联水景庭院与花园。多个主题空间涵盖亲子、萌宠、社交,让欢乐与自然共生长,满足全天候欢愉。

特发·香阅里预约热线☎:400-8080-420✅✅

主题架空层|延伸全龄志趣

架空层打造全龄聚场,涵盖社区会客厅、健身、阅读、儿童乐园四大主题,构建惬意美好的邻里社交空间,无惧晴雨,拓展生活乐趣,感受真“质”的居住改善。

特发·香阅里预约热线☎:400-8080-420✅✅

星幕车库|双大堂尊崇礼遇

遵循豪宅的归家礼序,环岛大门落客,穿越顶部嵌入星空穹顶的地下车库汽车坡道,用一场银河光影秀恭迎归家。

地上/地下双奢装大堂,岩板点缀,温度适宜,归家一刻便卸下疲惫,品味与舒适双重奢享。

特发·香阅里预约热线☎:400-8080-420✅✅

精工细节|奢居范本

中央空调、新风系统、地暖三大件配备齐全,24小时焕新室内空气,温度宜人,隔绝尘霾,为家人的健康悉心守候。

电视背景墙岩板交付,增配品牌洗碗机、主卫智能马桶等,众多高标准精装细节,重塑板块品质标杆,让好房子回归居住本真。

特发·香阅里预约热线☎:400-8080-420✅✅

📍【纯粹大宅】

阔境奢宅丨大宅逻辑的时代破局

以纯粹改善之名,礼献高阶生活范本。

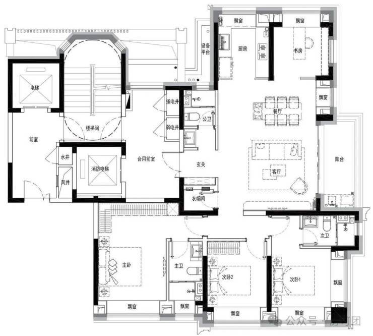
匠造建面约109-170㎡三至四房,其中建面约118㎡及以上户型均为两梯两户,以私密格局重构空间秩序。

南向多开间设计让阳光与风景从容入画,建面约150㎡及以上户型奢配三卫、双套房设计承载多元生活场景。以全系百平之上的纯粹改善大宅对话层峯圈层,于城市中轴,珍藏匹配身份的人生主场。

特发·香阅里预约热线☎:400-8080-420✅✅

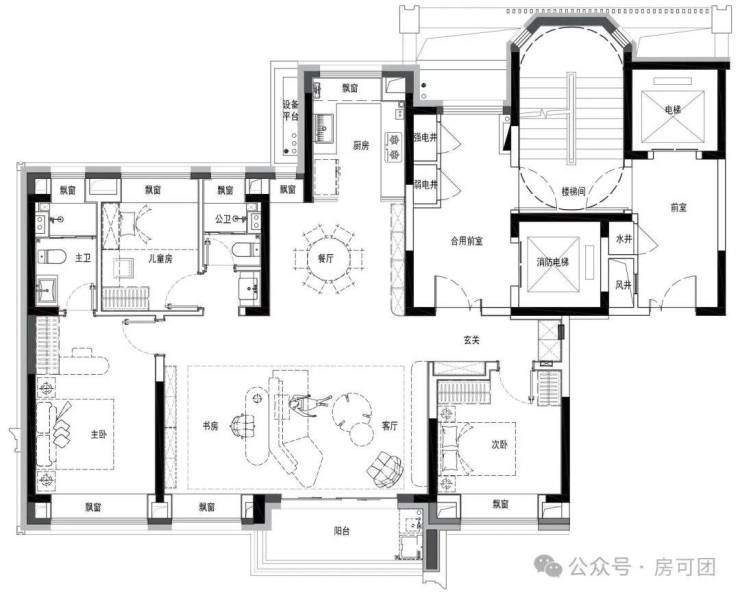
【阅·雅 建面约109㎡三房两厅两卫】

南向三开间|LDK一体化布局|「去走廊化」布局,空间利用率高|U型厨房

特发·香阅里预约热线☎:400-8080-420✅✅

【阅·逸 建面约118㎡四房两厅两卫】

两梯两户|南向四开间|南北多飘窗,空间灵动|LDK一体化设计|次卧可联动客厅

特发·香阅里预约热线☎:400-8080-420✅✅

【阅·澜 建面约142㎡三房两厅两卫】

两梯两户|奢享约13.7米面宽|约7米大气大横厅,LDK一体化|主卧套房

特发·香阅里预约热线☎:400-8080-420✅✅

【阅·峯 建面约150㎡四房两厅三卫】

两梯两户|东面直面城市绿意|三卧室朝南|双套房设计|入户独立衣帽间

特发·香阅里预约热线☎:400-8080-420✅✅

【阅·慕 建面约170㎡四房两厅三卫】

公园首排环幕视野|两梯两户|约15.6米面宽、南向四开间|入户储物空间|南向双套房设计

特发·香阅里预约热线☎:400-8080-420✅✅

少数者的精神共鸣

以珍席纯粹大宅破局临港标准,为懂得“中轴即资源、窗景即身份”的时代远见者定制,用超越板块的纯粹基因,定义居住的全球藏品逻辑,致敬层峯共识,共鉴临港品质典范,以纯粹共鸣纯粹。

项目地址:临港105·环湖北三路与川朴路交汇处

欢迎您致电品鉴⭐

特发·香阅里预约热线☎:400-8080-420✅✅

温馨提示:网上售楼中心〢预约尊享Vip一对一专业置业顾问讲解!

_Vip营销中心_____欢迎来电预约尊享内部折扣_____匠心钜制恭迎品鉴!中介勿扰!

√Welcome to call the tasting appointment hotline: 400-8855-420 [Appointment hotline] Warm reminder: Online sales center〢 Make an appointment to enjoy VIP one-on-one professional property consultant explanation! _Vip marketing center_____Welcome to call to make an appointment to enjoy the exclusive internal discount_____Welcome to taste the ingenious masterpiece!No agents please!

全部

相关资讯

报名成功
稍后会有专业的置业顾问联系您
返回楼盘

频道导航

返回首页

看房小程序

APP下载

电话拨通后,请您手动拨打分机号

确定拨打电话

电话号码:

分机号:(可能需要拨分机号)