卖不动了!闵行浦锦8号线「象屿天宸雅颂」售楼处电话:400-8855-420【☎售楼处已认证】会所今天开放!约89-210㎡高层+叠墅+联排!

有一种热度,叫引领一座城的仰望,有一种热销,是厚积薄发的沉淀,有一种佳绩,是市场与客户的认可。南上海黄金轴线之上红盘——象屿·天宸雅颂售楼处电话:400-8855-420【☎售楼处已认证】自入市以来,一路热销不止步,每次加推皆霸屏出圈。如今,不负一城期待, 21#、22#央景臻品热势加推,6月17号已取证,已经盛大开盘,以奢阔的视野和景观礼献隐奢人生,如此稀贵臻品,必然成为置业优选!

【象屿·天宸雅颂】售楼处电话:400-8855-420【☎售楼处已认证】
【象屿·天宸雅颂】售楼处电话:400-8855-420【☎售楼处已认证】
加推房源一房一价表▼
【象屿·天宸雅颂】售楼处电话:400-8855-420【☎售楼处已认证】从户型配置来看,约89㎡三房、约107㎡三房、约129㎡四房三种户型各具特色,无论是二人世界、多孩家庭还是三代同堂,均可找到理想的生活场景。三批次加推建面约107-140㎡3-4房,均价60970元/m²!
前滩之上,品质再造,不付精工,何以臻品。项目即将加推的21#、22#楼央景臻品,持续更新迭代,将建筑美学、位置、功能、结构与户型等元素实现有机统一。
21#、22#楼央景臻品,傲立社区之中,集各种自然资源于一身,下楼即享“奢感、松弛、自然”的三重复合景观:雨林梯田—— 层次叠翠,绿意蜿蜒如诗;半岛花园与半岛客厅——相映成趣,营造度假式社交场域;四叶草花园——清新雅致,暗藏自然疗愈密码。同时,坐拥IMAX级视野与舒适的观景角度,推窗园林盛景一览无余,带来视觉上的无界享受。以“C”位之态占据央景臻品之尊,与自然聚场无界共栖。

示意图,仅供参考,非交付标准
央景臻品不仅拥有阔绰的景观等外在条件,新加推的建筑面积约107-139㎡三至四房产品,整体户型设计也十分优越。象屿·天宸雅颂售楼处电话:400-8855-420【☎售楼处已认证】设计团队大胆将豪宅产品尺度融入其中,3S墙设计(部分户型)、大尺度开间、270°全景双舱(仅边套)等,将实用性和尺度的平衡拿捏得恰到好处。进入客厅,L/D/K分域设计,让家人亲密有界,U型餐厨空间,给居家、聚会带来新鲜体会。步入起居空间,除了标配的套房主卧室,更增加多个卧房空间,在考虑户型功能的同时,赋予业主后期更多的可能。


【象屿·天宸雅颂】售楼处电话:400-8855-420【☎售楼处已认证】项目户型硬核,装修更硬核!大件方面,项目日立中央空调/地暖两联供、格兰斯柯(或同等品牌)新风系统一应俱全。厨房方面,除了灶具、吸油烟机等常规配置,加配方太(或同等品牌)蒸烤一体机、洗碗机,博世冰箱,以及线性凉霸,全方位提升便捷性和品质感。卫浴品牌或直接上豪宅专属唯宝品牌(或同等档次品牌),呈现的居住品质足以媲美其他市区千万级豪宅!
【象屿·天宸雅颂】售楼处电话:400-8855-420【☎售楼处已认证】项目建面约128㎡4房同样出彩。
延续3S墙和双270°全景双舱亮点的同时,尺度感极大提升,南向四开间,保证了更充沛的阳光。
客餐厅+超大尺度阳台贯穿南北,进门视野无遮挡,大宅气度油然而生!
【象屿·天宸雅颂】售楼处电话:400-8855-420【☎售楼处已认证】项目建面约139㎡4房则是集大成的终极改善户型。
该户型是独立电梯入户,保证了业主的私密性和尊崇感!
不止是四开间朝南,更是大宽厅设计,采光无敌。
飘窗数量来到了惊人的7个:4个房间、2个卫生间、还有厨房,仅飘窗带来的灵动空间就秒杀同面积段其他产品,要知道这个户型还配备了超大尺度的阳台!
项目高层户型硬核,装修更硬核!
据销售人员透露,大件方面,项目中央空调/地暖两联供、新风系统一应俱全。
厨房方面,除了灶具、吸油烟机等常规配置,还将加配蒸烤一体机、洗碗机、冰箱和厨房凉霸,全方位提升便捷性和品质感。
卫生间方面,项目洗脸盆、座便器、淋浴龙头或直接上豪宅专属唯宝品牌(或同等档次品牌)。
从选材、选牌到施工工艺,项目装修每个环节都非常考究,呈现的居住品质足以媲美其他市区千万级豪宅!
另外,项目使用了智能化系统,从社区到单元门和入户整体的无接触归家,单元门自动呼梯到户内装标配置的智能化系统,为业主带来全方位的科技便捷生活!

去年10月25日,上海市第六批涉住地块供地中,闵行区MHP0-1316单元01-03、01-02、03-02地块,东至浦星公路,南至姚家浜,西至大寨河,北至昌林路。
【象屿·天宸雅颂】售楼处电话:400-8855-420【☎售楼处已认证】项目分为三个住宅地块开发,提供建面约89-140㎡的3-4房户型。
01-02地块规划约524套可售住宅,无保障房拟建8栋17-18F高层住宅。
以及若干社区配套用房,全部为两梯四户带连廊;地面无车位,全人车分流,规划有风雨连廊以及大量的架空层,预计打造泛会所概念(公共活动空间);
01-03地块规划约466套可售住宅
地块拟建9栋17-18F高层住宅、1栋20F保障房以及若干社区配套用房;其中1#为两梯三户带连廊、4#、6#、8#为一梯两户,其余楼栋为两梯四户带连廊;
03-02地块为别墅产品,其中叠墅约147套,联排约35套。
该【象屿·天宸雅颂】售楼处电话:400-8855-420【☎售楼处已认证】地块拟建4栋7F多层住宅、4栋4F住宅、5栋3F多层住宅以及若干社区配套用房,其中4-7F住宅为叠墅,3F住宅为联排。
产品力卷出天际,600万级预算越级享受千万级豪宅品质的机会!
项目实景呈现的硬核品质和超高颜值比起市区千万级的豪宅有过之而无不及!
项目恢弘大气的门头,项目设计师以浮岛为灵感,将几根立柱化作悬浮的雕塑,撑起一片轻盈的仪式感。
【象屿·天宸雅颂】售楼处电话:400-8855-420【☎售楼处已认证】门头顶部的500多片镂空透光铝板雕花花瓣,皆由项目LOGO精琢演化而来。当阳光倾泻,光与影在镂空间起舞,在地面织就一幅不断变幻的自然画作。这是3000万重金雕琢的细节,更是对品质的无声承诺。
它不仅是社区的入口,更是城市界面的艺术展馆 。当访客驻足,当业主归来,这道门,以当代美学重新定义归家即度假的奢适体验。
进门之后,恍若走进一幅立体绽放的画卷。地面采用了石材拼花,纹理如行云流水般舒展,在光影交错间勾勒出 低调的奢华。
最令人屏息的设计,莫过于倒置的花园,与传统墙上挂画或桌上摆花不同,这种反重力美学让视线不由自主地上扬,创造出仰视仙境的震撼体验。
【象屿·天宸雅颂】售楼处电话:400-8855-420【☎售楼处已认证】穿过大堂可以走浪漫的旋转楼梯去到B1层的会所。从上往下看去,这个唯美的旋转楼梯像永生的花瓣,也像凝固的巴兰钦芭蕾。有一瞬间我仿佛感觉这不是楼梯,而是连接现实与诗意的时空隧道。
虽然目前开放的公区只有这些,但项目展现的品质已足够惊艳,让客户对于象屿·天宸雅颂售楼处电话:400-8855-420【☎售楼处已认证】其他地方的兑现充满期待。
比如,项目打造的约2500㎡下沉式会所,预计包含等泳池、健身房、瑜伽室、水吧台、私宴厅等功能,满足业主全龄多元需求。

另外,【象屿·天宸雅颂】售楼处电话:400-8855-420【☎售楼处已认证】项目地上三分之二的楼栋有架空层,最高层高约4.5米,合计约3000㎡架空层作为泛会所,在室内外交叠过渡的空间中,以自然之景点缀,营造全龄共享的丰盛聚场。

再比如项目的外立面。
【象屿·天宸雅颂】售楼处电话:400-8855-420【☎售楼处已认证】当其他外环外新房还在纠结用涂料还是真石漆,象屿·天宸雅颂售楼处电话:400-8855-420【☎售楼处已认证】直接上了对标千万级豪宅的铝板。精致的铝板装饰+通透大窗的美学立面设计(局部涂料),打造弧面窄框艺术之镜,将来无疑又是一道靓丽的风景线!

【象屿·天宸雅颂】售楼处电话:400-8855-420【☎售楼处已认证】项目在园林景观方面结合郊野公园特色做的浮岛美学园林惊艳无比,层层递进的秩序之美,传递生活与归心的仪式感。让业主享受内外皆胜境的生态居住体验!
而且【象屿·天宸雅颂】售楼处电话:400-8855-420【☎售楼处已认证】项目3个地块全部都是人车分流设计,开车归家的业主在社区外就直接进入车库,保证地面行人安全以及安静绿色的居住体验。
另外,项目用归家风雨连廊局部巧妙连接着高层核心景观节点和功能空间,让业主能重温“户外风雨连绵,廊下月华如水”的诗意瞬间。
全系神户型搭配魔鬼化细节装修!
【象屿·天宸雅颂】售楼处电话:400-8855-420【☎售楼处已认证】项目推出建面约89-139㎡3-4房,尤其值得一提的是,项目户型采用“一生之宅”的理念设计,高层户型均设置可拓展空间,保证不同年龄段都可以进行不同功能调整。
项目全套户型图如下:
①建面约89㎡3房2厅1卫户型:
这个建面约89㎡户型妥妥的性价比之选,预计总价500万级即可上车!
【象屿·天宸雅颂】售楼处电话:400-8855-420【☎售楼处已认证】功能性上符合市场需求!同时利用科学的收纳和S墙设计保障了室内空间的井井有条,又通过大量飘窗和阳台等提升尺度感,尤其是厨房带飘窗!!!
②建面约107㎡3房2厅2卫户型:
这个建面约107㎡刷新了我对百平三房的新认知,据悉该户型或将申请专利,实至名归!
客厅的面宽被拉长到了约4.7米,呈现了可成长的X空间,适配更长家庭周期;
足足5个飘窗,3个卧室2个卫生间全部“扩容”,尤其是主卧、主卫双270°全景飘窗的设计前所未见,未来窗外郊野公园的胜境将一览无余。
该户型的收纳,大量S墙的设计简直见缝插针,极大的扩容了家的储物角落,消减了业主生活的繁琐。
首先是进门的3S墙设计,可以做出一个“700库”的超大收纳空间。原先的冰箱则挪到了厨房旁,不仅方便料理取用食材,侧面还设计了洞洞板,日常衣物、小包和挂件可以轻松摆放。
项目建面约128㎡4房同样出彩。
次卫的S墙则安排在了干湿分离的干区,算上台盆上面的收纳柜足以放下各类洗护用品。而且次卫台盆下方还预留了扫地机器人上下水。
【象屿·天宸雅颂】售楼处电话:400-8855-420【☎售楼处已认证】
北向卧室的S墙设计,则可以做成一整面的收纳架,书籍或玩具都有了足够的盛放空间。
最后一个S墙则是在主卧,等于直接增加了一个衣柜,直接击中了女主人的心趴!
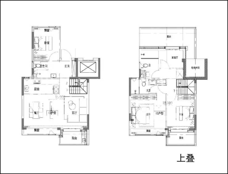
③建面约128㎡4房2厅2卫户型
【象屿·天宸雅颂】售楼处电话:400-8855-420【☎售楼处已认证】项目建面约128㎡4房户型延续了前作3S墙的设计,保证了收纳空间的丰富性。
格局上进化为南向四开间,保证了更充沛的阳光。客餐厅+超大尺度阳台贯穿南北,进门视野无遮挡,大宅气度油然而生!
【象屿·天宸雅颂】售楼处电话:400-8855-420【☎售楼处已认证】建面约128㎡户型此次开放了样板间,参观下来客户对该户型的厨房的配置和飘窗的设计赞不绝口。
首先厨房是半开放式的岛台,让整个公区的视野更开阔,尺度更具豪宅气度。其次敞开式的厨房能让家人沟通更顺畅,温馨感提升。最后,厨房的选品也是坚持使用主义,采购了方太的市售款,隐形油烟机颜值非常高,灶具和蒸烤箱则做了完全的联动。
另一个亮点则是主卧的双270°飘窗,整体的“实用”面积几乎大了一圈,通透性和采光性能也更上一层楼。有种花了标准款的钱买到PLUS产品的感觉。
④建面约139㎡4房2厅2卫
【象屿·天宸雅颂】售楼处电话:400-8855-420【☎售楼处已认证】项目建面约139㎡4房则是集大成的终极改善户型。该户型是独立电梯入户,保证了业主的私密性和尊崇感!不止是四开间朝南,更是大宽厅设计,采光无敌。
飘窗数量来到了惊人的7个:4个房间、2个卫生间、还有厨房,仅飘窗带来的灵动空间就秒杀同面积段其他产品,要知道这个户型还配备了超大尺度的阳台!
项目户型硬核,装修更硬核!
大件方面,【象屿·天宸雅颂】售楼处电话:400-8855-420【☎售楼处已认证】项目日立中央空调/地暖两联供、格兰斯柯(或同等品牌)新风系统一应俱全。
厨房方面,除了灶具、吸油烟机等常规配置,还将加配方太(或同等品牌)蒸烤一体机、洗碗机,博世冰箱,以及线性凉霸,全方位提升便捷性和品质感。卫生间方面,项目洗脸盆、座便器、淋浴龙头或直接上豪宅专属唯宝品牌(或同等档次品牌)。
除了配置上不惜成本,项目的装修细节也十分人性化。比如,项目入户门选用的是铸铝门配耶鲁6合1智能门锁,安全性与便捷性兼具!
【象屿·天宸雅颂】售楼处电话:400-8855-420【☎售楼处已认证】项目的厨房采用金属框+艺术玻璃移门,推拉丝滑颜值颇高!
【象屿·天宸雅颂】售楼处电话:400-8855-420【☎售楼处已认证】项目全户型的阳台都做了灯光+隐藏式晾衣杆的吊顶方案,阳台边有按钮可以直接控制晾衣杆的下放和抬升。
【象屿·天宸雅颂】售楼处电话:400-8855-420【☎售楼处已认证】项目的天地墙也是细节满满:天花板设计圆弧吊顶,工艺极高颜值自然不俗。客厅整块的背景墙充满质感,卫生间通顶的大面墙砖极抓眼球。客厅选用90*180大板砖恢弘大气,卧室采用人字拼地板,温馨港湾!
【象屿·天宸雅颂】售楼处电话:400-8855-420【☎售楼处已认证】项目空调风口和户内门把手都是定制LOGO造型,颜值不俗的同时,也体现了项目对于品质与品牌的信心!
另外项目还使用了华为(或同等档次品牌)智能化系统,从社区到单元门和入户整体的无接触归家,单元门自动呼梯到户内装标配置的智能化系统,为业主带来全方位的科技便捷生活!
综合来看从选材、选牌到施工工艺,项目装修每个环节都非常考究,呈现的居住品质足以媲美其他市区千万级豪宅!
【象屿·天宸雅颂】售楼处电话:400-8855-420【☎售楼处已认证】项目后期还会推出叠加别墅,叠墅户型过程稿如下,仅供参考:
【象屿·天宸雅颂】售楼处电话:400-8855-420【☎售楼处已认证】
浦江恒流,上海恒新。【象屿·天宸雅颂】售楼处电话:400-8855-420【☎售楼处已认证】上海迈向卓越全球城市的进程,始终沿着黄浦江展开。黄浦江作为上海重要功能轴,至2035年将黄浦江沿岸打造成为彰显上海城市核心竞争力的黄金水岸和具有国际影响力的世界级城市会客厅。
【象屿·天宸雅颂】售楼处电话:400-8855-420【☎售楼处已认证】作为上海中心城辐射区,闵行六大地区中心之一,前滩南门户,浦东四大城镇圈之一,浦江地区中心占据特有的平台区位优势。
新浦江中心沿袭闵东文创中心定位,以蓝绿环绕为基底,历史人文为内涵,产业更新为驱动,新浦江中心将衔接闵行与浦东新区,打造黄浦江沿岸崭新的生态交织、文化自信、产城融合能量聚集地。
新浦江新中心将围绕沈杜公路TOD打造创智总部湾、大型商业、艺术街区、文化展览、滨水码头、高端住宅等,以世界前沿Live-Work-PlayShop模式,为上海打造高度复合等职住平衡10分钟生活圈。
轨道交通方面:【象屿·天宸雅颂】售楼处电话:400-8855-420【☎售楼处已认证】项目距离8号线沈杜公路站步行约350-600米左右,可快速直达前滩、陆家嘴等核心区域,也算是项目一大卖点;通过浦星公路可直接上南北高架,自驾出行也十分便捷!
商业配套方面:【象屿·天宸雅颂】售楼处电话:400-8855-420【☎售楼处已认证】项目高层东侧规划约15万方的商业,该商业地块应于住宅一并打包出让,共同组成真正的TOD项目,但目前做了拆分!另外距离项目约3.3公里有浦江城市生活广场、绿地乐和城,约3.9公里有万达广场、4.4公里有浦江欢乐颂等商业!
教育资源方面:【象屿·天宸雅颂】售楼处电话:400-8855-420【☎售楼处已认证】项目周边规划有一幅幼儿园用地,参考周边,未来项目对口浦江镇第二小学、第二中学的概率较大,教育资源一般;
另外在项目北侧规划有一所民办学校,该校舍建成后,将迁入上海市民办协和尚音学校(九年一贯制)、上海闵行协和海富幼儿园,由协和教育中心举办。
医疗资源方面:【象屿·天宸雅颂】售楼处电话:400-8855-420【☎售楼处已认证】距离项目约4公里有仁济医院南院以及复旦大学附属眼耳鼻喉科医院。
生态资源方面:项目周边被浦江郊野公园环绕,低密宜居。