⛪ 江湾鸿玺⛪
➢ ➢ 江湾鸿玺开发商电话:400-8855-420【☎开发商已认证】
➢ ➢ 江湾鸿玺售楼处电话:400-8855-420【☎售楼处已认证】
➢ ➢ 江湾鸿玺营销中心电话:400-8855-420【☎营销中心已认证】
➢ ➢本项目采用预约制,过来营销中心参观样板间请记得提前拨打开发商楼盘售楼处400热线电话在线预约,感谢您的配合!
✨✨ 江湾鸿玺开发商售楼处电话:400-8855-420【☎预约热线】丨详细解答丨在售户型图丨项目介绍丨在售房源丨周边配套丨VR看房丨楼盘图丨沙盘图丨位置图丨配套图丨售楼处销售1V1讲解

——江湾鸿玺——
江湾鸿玺售楼处电话:400-8855-420✔【最新预约】
江湾鸿玺营销中心电话:400-8855-420✔✔【最新认证】
上海江湾鸿玺官方售楼处电话:400-8855-420 VIPLINE✔✔✔【最新发布】
如有问题可来电咨询,线上售楼中心,预约销售专员,一对一为您服务!
想了解江湾鸿玺更多信息?拨打售楼处营销中心热线:400-8855-420 (中介勿扰)【24小时热线】
当下,房地产已步入自住改善的时代。
除了更大的居住空间、更高的居住品质、更好的装修标准等产品力的加强,改善客户想要买入核心地段,那真的要趁早了!
这不,机会来了!
江湾2.0稀缺宽邸大宅!
3号线殷高西路稀缺新盘——【江湾鸿玺】开盘热卖中!

江湾——这片历经千年沉淀的土地,始终是上海城市文明的重要注脚。
南宋初年,江湾镇以“铜江湾”的盛誉崛起,成为商贾云集的繁华市镇,青石板路上回响着岁月的足音。
时光流转至近代,这里又见证了城市发展的沧桑变迁,老厂房、石库门里弄等历史遗存,勾勒出独特的海派风情。
如今,在 “南北转型”的战略机遇下,江湾迎来了 2.0时代的华丽蜕变。
作为上海科创中心主阵地的重要组成部分,这里正以高新技术产业为引擎,吸引着科创人才与资本的集聚。
新江湾城国际住区的生态智慧底色,五角场科创商圈的创新活力,共同勾勒出江湾“历史与未来共生”的独特气质。
【江湾鸿玺】落子于此, 既承接了千年古镇的人文厚度,又坐拥城市发展的时代红利,成为连接过去与未来的人居枢纽。

项目推出32席人居臻品
建面约200㎡新海派宽邸
过会均价7.69万/m²,总价约1420万起!
售楼处/样板房一经开放,每天来访人员络绎不绝,现场人声鼎沸,如此高的热度,妥妥的红盘预定!




为什么项目能受到市场如此的青睐,重要的一点就是超高的性价比!
上海中环沿线新房价格已全面跳涨:
徐汇长桥、杨浦滨江破11万/㎡, 长宁天山近12万/㎡, 闵行七宝10万+/㎡……
未来地王扎堆:静安大宁、浦东北蔡等地块楼面价屡创新高,中环即将进入“全盘10万+”时代!
【江湾鸿玺】建面约200㎡大平层总价仅1500万级,同等面积在内环需3000万+!
上海建面200㎡+二手房占比不足5%, 稀缺性+抗跌性双保险!
“中环旁、装标顶配的大平层,未来再无此价!”
【江湾鸿玺】怎能错过!!!

宝山高境,3号线殷高西路站新盘「江湾鸿玺」即将入市!预计将推出套均200㎡大平层!

户型图如下:
(仅供参考,最终以实际为准)
建面约200m²4房户型

一房一价表如下:

说到高境,作为宝山近市中心的板块,一直以来缺乏新房,上一次主力供应要追溯到2015年的泰禾红御,目前该项目是高境乃至整个宝山标杆,部分房源挂牌价9万+/㎡。
回到江湾鸿玺,项目位于殷高路逸仙路路口,其实就是很多人说的高境欣苑二期,在高境欣苑中又开发了一栋楼。



首层为商业配置,未来将引入运动健身、休闲会馆、便利商超等功能设施,物业提供24H管家式服务。
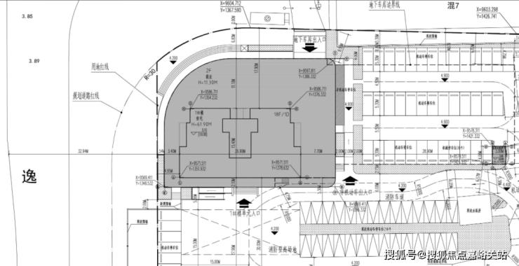
规划设计图:

我们放大看:这栋楼共18层,估计2梯2户,据悉首层为商业配置,将来可能引进运动健身、休闲会馆、便利商超等。
还有两套自持,所以可售为32套,户型为建面约200㎡大平层。

项目距离3号线殷高西路站仅100米,1公里直达18号线殷高路站,双轨并行锋速通达的时间效率;书香萦绕的教育高地,科创引领、产业先行的核心经济圈。此外,通过逸仙路高架,可以提升通行时效,快速连接五角场合生汇、百联又一城、万达广场、虹口龙之梦等中大型商业综合体。
生活配套成熟,项目西侧就是一个商场,吃喝玩乐都能满足,新业坊·源创潮流、精致元素的加持也为板块注入更多活力。
殷高西路上还有永辉、长江国际、景瑞生活广场等,生活很方便。

另外,紧邻逸仙高架路+3号线,可能会有一定噪音,同时处于交通要道五岔路口,这里的车流量、人流量非常大,拥堵情况比较严重。
江湾鸿玺售楼处电话:400-8855-420✔【已认证】
江湾鸿玺营销中心电话:400-8855-420✔✔【已认证】
上海江湾鸿玺官方售楼处电话:400-8855-420 VIPLINE✔✔✔【已认证】
如有问题可来电咨询,线上售楼中心,预约销售专员,一对一为您服务!
想了解江湾鸿玺更多信息?拨打售楼处营销中心热线:400-8855-420 (中介勿扰)【24小时热线】
楼盘项目全面介绍,本电话为开发商提供线上预约售楼电话,楼盘项目全面介绍(包含楼盘简介,均价,房价,现房,期房,别墅,叠墅,大平层,价格,楼盘地址,户型图,交通规划,备案价,备案名,项目配套,样板间,开盘时间,认筹时间,楼盘详情,售楼处电话,最新消息,最新详情,周边配套,一房一价,最新进展等详情咨询)楼盘详情丨价格丨更多优惠丨机不可失丨欢迎致电丨诚邀品鉴!售楼处位置丨特价房丨工抵房丨剩余房源丨户型图丨最新消息丨免责声明:将文章内容综合来源于网络、只作分享,版权归原作者所有!!如有侵权,请联系我们,我们第一时间处理如有问题欢迎来电咨询,专业一对一热情服务,让您用专业眼光去买房.如果您想了解更多楼盘详情,欢迎提前预约拨打
针对房地产市场的复杂形势,全年来看,整体数据再探新低。但在9月26日中央政治局会议明确提出“促进房地产市场止跌回稳”,在系列政策组合拳作用下,四季度以来房地产市场积极变化增多,信心在逐步提振。
总体来说,2024年房地产市场呈现了止跌回稳的良好态势,而这也为2025年房地产挖掘潜力、持续发力、提高效力创造了更好的基础。
2024年全国房地产开发投资同比下降10.6%
1月17日,国家统计局公布的全国房地产市场基本情况显示,2024年全国房地产开发投资100280亿元,比上年下降10.6%(按可比口径计算);其中,住宅投资76040亿元,下降10.5%。
上海易居房地产研究院副院长严跃进指出,房地产开发投资指标连续8个月位于两位数降幅水平,且降幅有缓慢的扩大。稳定房地产开发投资是一项重要工作,其关系到内需提振。不过考虑到最近几年此类指标持续处于偏低位水平,预计2025年此类指标跌幅是可控的。同时在系列金融和财政政策支持下,房地产开发投资指标有结构方面的优化,即积极落实好“严控增量、优化存量、提高质量”的导向。

从房屋施工、新开工和竣工面积三项数据来看,各类指标跌幅相对较大。数据显示,2024年,房地产开发企业房屋施工面积733247万平方米,比上年下降12.7%。其中,住宅施工面积513330万平方米,下降13.1%。房屋新开工面积73893万平方米,下降23.0%。其中,住宅新开工面积53660万平方米,下降23.0%。房屋竣工面积73743万平方米,下降27.7%。其中,住宅竣工面积53741万平方米,下降27.4%。
严跃进表示,当前房地产新开工面积数据跌幅相对大。考虑到最近两年房企优胜劣汰,一些拿地和新开工房企的资金状况是不错的,所以对于2025年房地产新开工指标应持乐观态度,此类同比增速指标有优化的空间。比如,2025年1月份各地出现了积极拿地现象,说明一些优质房企在后续拿地新开工方面动力依然是很足的。
另外,房屋竣工面积指标受开发投资和拿地等指标影响,其出现跌幅较大的现象。严跃进认为,最近两年是持续保交房的关键阶段,也取得了积极成果。2025年要从好房子的角度持续做好保交房工作,同时加大对优秀案例的积极宣传。
从到位资金情况看,该指标已连续9个月出现跌幅收窄态势,资金状况继续改善。2024年,房地产开发企业到位资金107661亿元,比上年下降17.0%。其中,国内贷款15217亿元,下降6.1%;利用外资32亿元,下降26.7%;自筹资金37746亿元,下降11.6%;定金及预收款33571亿元,下降23.0%;个人按揭贷款15661亿元,下降27.9%。
严跃进称,总体上资金状况改善是大方向,也是2025年各地房企要充分利用好的新机会。其建议,将此类资金和地方政府财政资金,尤其是专项债等资金结合,会更好促进项目去化,也更好改善企业的资金状况和现金流状况。
2024年新建商品房销售金额同比下降17.1%
销售方面,国家统计局数据显示,2024年新建商品房销售面积97385万平方米,比上年下降12.9%,其中住宅销售面积下降14.1%。新建商品房销售额96750亿元,下降17.1%,其中住宅销售额下降17.6%。
但从单月情况看,在促进房地产市场止跌回稳各项政策作用下,12月份楼市积极因素继续累积,市场交易较为活跃,新建商品房销售面积和销售额都实现了正增长。根据中房网测算,12月份新建商品房销售面积为11267万平方米,环比上涨37.60%,同比上涨0.37%;新建商品房销售额为11625亿元,环比上涨40.57%,同比上涨2.84%。
严跃进指出,该指标持续性改善,充分说明其是本轮房地产止跌回稳的先行指标。销售向好,对于量价关系、供求关系等调整优化都将产生支撑作用。在“持续用力推动房地产市场止跌回稳”的方向下,预计2025年房屋销售指标将呈现积极向好的态势。

另一方面,重点城市销售也明显改善。根据国家统计局监测的40个重点城市销售情况看,12月当月新建商品房销售面积、销售额同比分别增长了0.3%、4.1%。

此外,在库存方面,根据国家统计局数据,2024年末,商品房待售面积75327万平方米,比上年末增长10.6%。其中,住宅待售面积增长16.2%。
严跃进表示,待售面积数据和销售端数据改善、市场止跌回稳态势有密切关联。2025年各地将严控增量、优化存量,尤其是专项债资金介入,将加快库存去化。而此类供给指标的消化,也将进一步促进供求关系的平衡。
下阶段房地产市场有望继续改善
纵观2024全年房地产相关数据,严跃进认为,市场呈现了“N型”走势,即先高后低再回稳的走向,这说明四季度止跌回稳系列措施积极有效,其也为2025年楼市向好发展创造了非常好的基础。
国家统计局局长康义在国新办举行的新闻发布会上表示,9月26日中央政治局会议明确提出“促进房地产市场止跌回稳”,多个部门抓紧完善土地、财税、金融等政策,取消了限购、限售、限价和普通住宅与非普通住宅的标准,降低住房公积金贷款利率、住房贷款首付比例、存量贷款利率以及换购住房的税率,合力打出来一套政策组合拳。各地区也因城施策、一城一策、精准施策。一揽子政策连续落地,有效降低了居民购房门槛,减轻了还贷压力,居民购房意愿提升,房地产销售好转,政策的效果正在不断地显现。
对于房地产市场今后的趋势,康义认为,随着存量政策和增量政策的有效落实,下阶段房地产市场有望继续改善。从中长期来看,我国新型城镇化还没有完成,刚需和改善性住房需求还有潜力,更多安全舒适、绿色智慧的好房子的需求还会增加,房地产市场发展的新模式也将逐步的构建,这有助于房地产市场平稳健康发展。
此外,严跃进建议,随着房地产拐点已来,各地要把握好新机会,尤其是在2025年要积极落实“开门红”系列工作,巩固和提升楼市“精气神”。
⛪ 江湾鸿玺⛪
➢ ➢ 江湾鸿玺开发商电话:400-8855-420【☎开发商已认证】
➢ ➢ 江湾鸿玺售楼处电话:400-8855-420【☎售楼处已认证】
➢ ➢ 江湾鸿玺营销中心电话:400-8855-420【☎营销中心已认证】
➢ ➢本项目采用预约制,过来营销中心参观样板间请记得提前拨打开发商楼盘售楼处400热线电话在线预约,感谢您的配合!
✨✨ 江湾鸿玺开发商售楼处电话:400-8855-420【☎预约热线】丨详细解答丨在售户型图丨项目介绍丨在售房源丨周边配套丨VR看房丨楼盘图丨沙盘图丨位置图丨配套图丨售楼处销售1V1讲解